项目坐落于山东黄岛时尚产业园的公寓小区的角部,正对着有潮汐变化的大海,是时境建筑的“垂直潮汐”项目的一次延伸。建筑共5300平米,共6层高,首层与外部交通相通,拥有时装发布和展厅的功能,二层与公寓小区相通,和之上的4层都是设计师的联合办公空间。
空间模式重塑面对海边这样的一个特质的场所,我们不希望放置一个城市类型的办公楼,而是考虑是否可以引入一些自由的气息,打破可预想的模式。设计试图从柯布的均质多米诺梁柱空间格局当中发展一个新的空间形态:从时尚的本质话题——”探讨织物和身体之间的关系” 这一充满了空间想象力的领域入手,引入了一系列相切相离的空间曲面,形成了建筑空间的主要的构成元素——巨大的空间几何造型介入到一个均质空间当中产生互动。
与功能互动这个建筑的主要功能有两个,一个是时尚产品的发布和走秀,一个是不同设计师品牌的联合办公空间。这些曲面与原始均质办公空间的互动结合了对崭新的时尚产业办公功能的复杂度的考虑:这里不再是传统办公功能形态的叠摞,而是结合了更加开放、公共的发布空间和需要更多互动交流的设计师办公空间。
在这些几何体接触地面的首层拥有大量的空白,可以用于更加开放的走秀和发布会,并拥有高耸的4层通高的共享大厅;随着楼层上升,开放式的办公功能与附着在空间体表面的各种展示展台、交流空间相互纠缠,不停变化,提供给办公空间更多的品牌展示与设计师之间相互沟通交流的可能。这些功能与空间的相互作用都是雕塑般的几何形体与常规楼板之间的不同空间位置关系造成的。
多维度的空间最后这个形体在水平向与楼板,在垂直向与玻璃幕墙之间形成了若近若远、合而分离的空间剥离关系:从宽敞的空间滑向狭窄锋利的缝隙,或从相切的垂直墙体扭转到水平楼板。空间充满了随时间变化的运动,从外立面的形体开始,滑行到室内,并在垂直方向上和水平方向上在发生变化。最后形成了一座位于海边的雕塑感极强的建筑。
项目图纸
△模型图
△模型图
△模型图
△总平面图
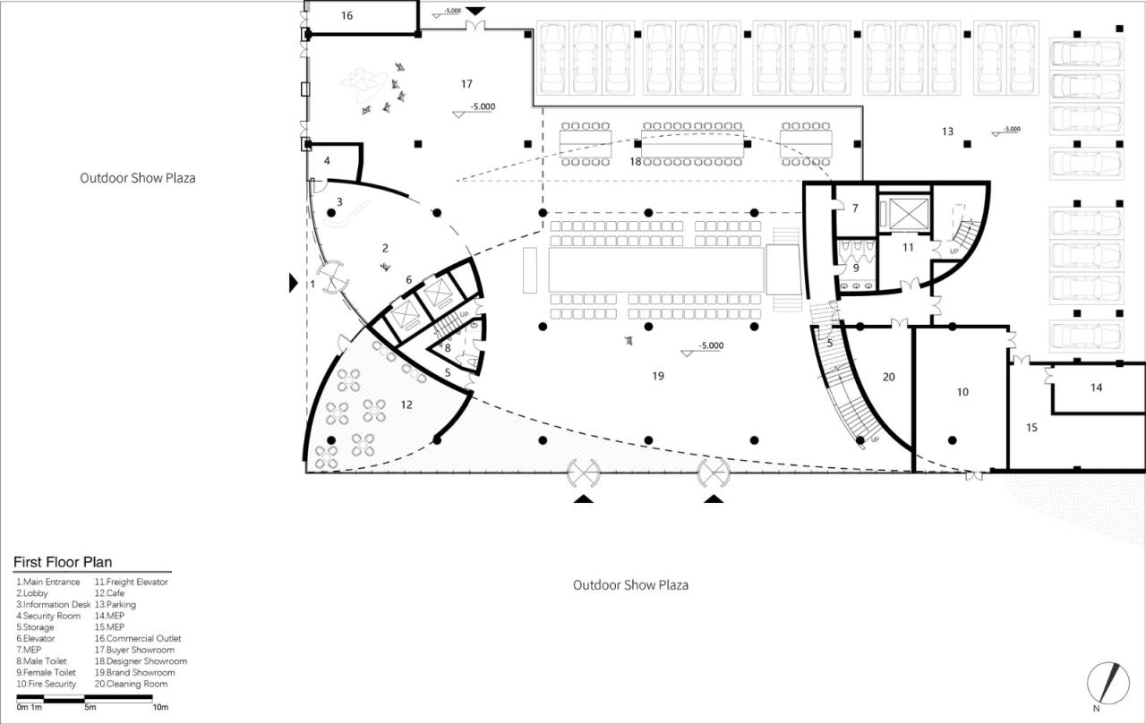
△一层平面图
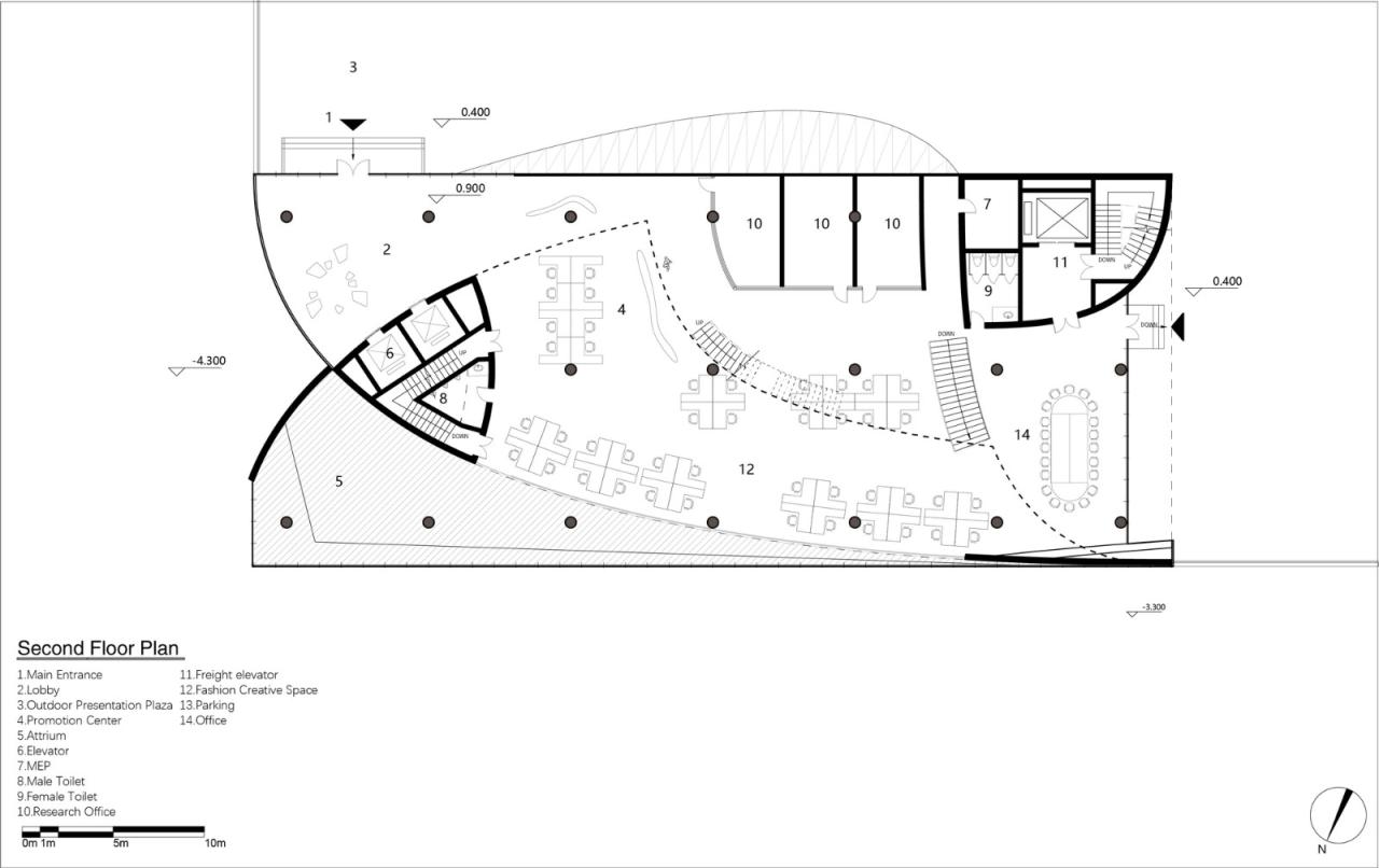
△二层平面图
△三层平面图
△四层平面图
△五层平面图
△六层平面图
△立面图
△立面图
△剖面图
△剖面图
△剖面图
△剖面图
△分析图
△分析图
△分析图
△分析图
项目信息
建筑师: 时境建筑
面积: 5300 m²
项目年份: 2022
摄影师:亮点影像
厂家: 天津北玻, 广东新尚, 艾努巴
主创设计师: 卜骁骏,张继元
合作设计方: 青岛志海工程设计咨询有限公司
幕墙设计:闫有福
委托方: 青岛中纺亿联开发投资有限公司
地点: 青岛

BIM建筑网






































