一块巧克力的乌托邦
斑马与巧是一家可可豆深度高端研发机构,探求巧克力制品的差异化创新以创造其无限可能。作为品牌的线下首店,我们将门店定位为复古未来主义,打造具有未来性的新型零售空间。
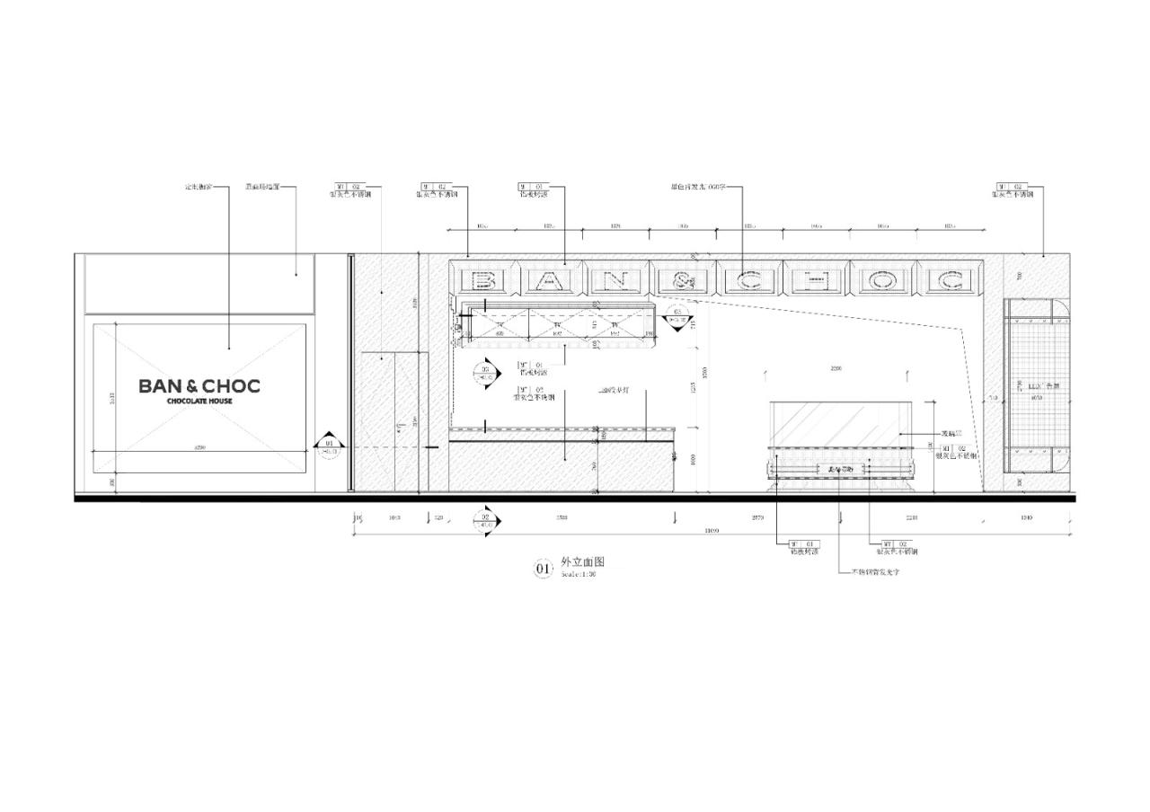
巧克力排块元素依托构成手法,灵活运用于门头、天花及墙面,翻折的体块极具视觉冲击力,赋予空间强烈的构成感。向外延伸的可可排块,让空间呈现出友好开放的店面形象,吸引更多商场人流。
巧克力色与不锈钢本色的搭配,代表着复古与未来的对撞融合,营造既怀旧又前卫的空间氛围。
天花部分的巧克力块采用发光灯膜,作为店内的基础照明灯源。排块缝隙内藏有重点区域照明射灯及喷淋等设备装置,以保证空间造型的完整性。店面转角处的LED屏幕,如同时间胶囊镶嵌在立面上,具有造型感的装置屏幕吸引了商场内部大量人流。
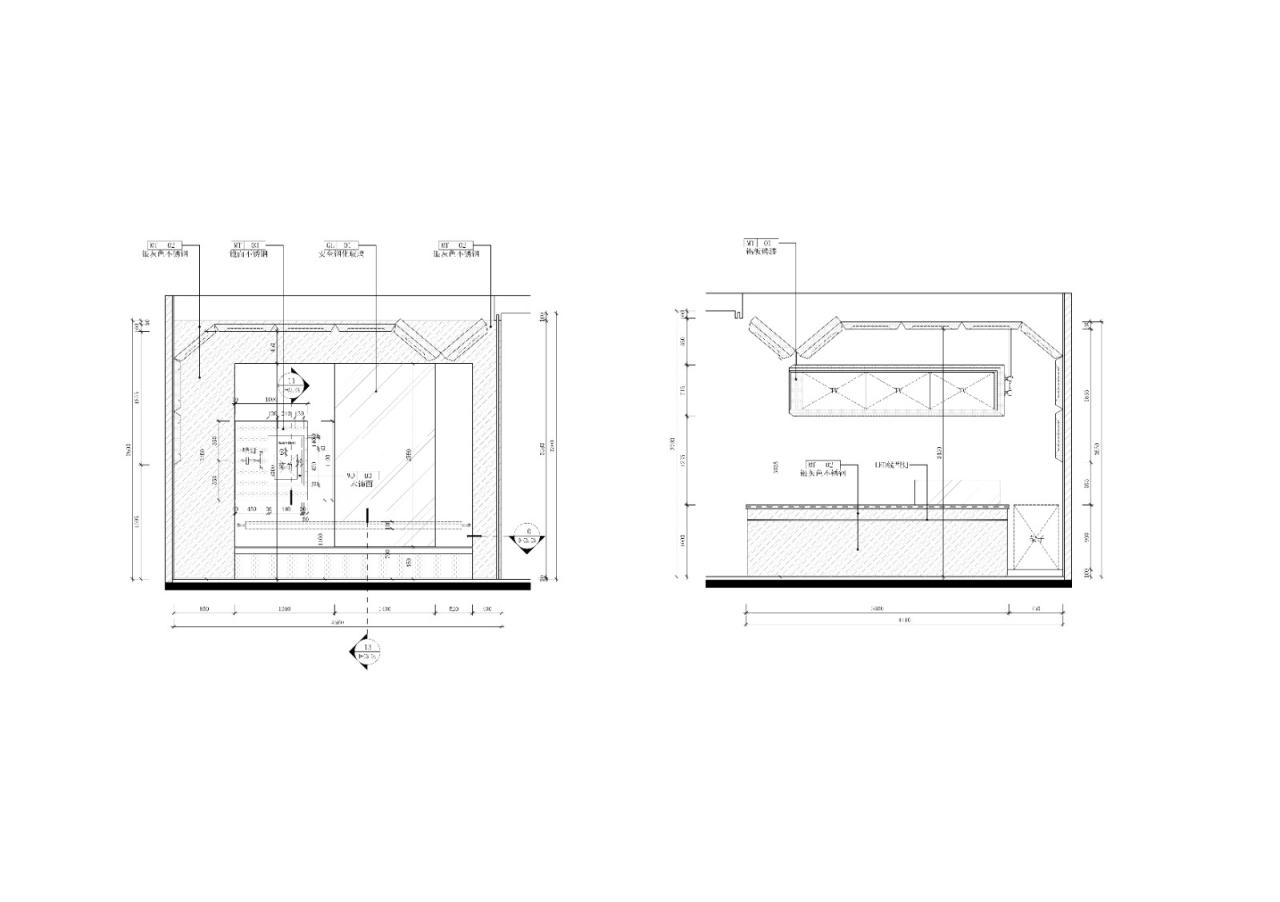
圆形中岛结合品牌的斑马形象,帮助加深顾客印象,强化品牌记忆点。地面与中岛面包柜相接的地方选用同色金属收边,视觉上放大中岛柜台。在岛台右侧设有就餐区,家具的设计继续沿用巧克力元素。流淌的巧克力餐桌与橱窗处流动效果的幕墙装置共同烘托出店内浓浓的可可香气。
项目图纸
项目信息
项目名称:斑马与巧BAN&CHOC上海凯德龙之梦全国首店 空间设计
项目类型:室内,零售与餐饮空间
项目地点:上海市凯德龙之梦A座F1
建成状态:建成
设计时间:2024.8
建设时间:2024.10
建筑面积(平方米):68平米
主创建筑师:张哲
设计团队完整名单:张哲,梁济蕾,王啸宇
业主:斑马与巧BAN&CHOC
造价:35万
微信公众号:xuebim
关注建筑行业BIM发展、研究建筑新技术,汇集建筑前沿信息!
← 微信扫一扫,关注我们+

BIM建筑网































