北仑区地处浙江宁波市,以港口进出口业务和制造产业驰名,与中心城区相比,存在对高端青年人才吸引力不足的问题。基于此诉求,在当地政府的政策支持下,开发商希望能够建设一幢服务于青年人的公寓,吸引年轻人才在此驻留,发展。面对当代年轻族群日益纷繁复杂的需求,公寓除了原本的居住属性以外,怎样才能真正实现人才自我成长与彼此交流碰撞,最终成为一个具有时代精神的场所空间,这也是我们在这个项目中所要探索的重要命题。历经四年,在建筑、室内、景观、幕墙、结构、机电等团队一体化协作下,宁波北仑青创大厦项目顺利落地。
从0到1|定义功能业态客群洞察:亚文化圈层和去中心化调研中我们划定了项目的主要客群年龄在18-35岁,以大学毕业生为主,技校毕业生为辅的年轻人。这批年轻人成长在互联网的环境之下,兴趣爱好呈现出多元与分化的特征,在社交方面更倾向于结交与自己有相同志趣的社群。面对这样的客群特征,建筑也应考虑如何具备对应的空间属性,从而真正满足青年人的内在精神需求,形成社群的凝聚力,加强青年的认同感,进而也有助于增加北仑城市对年轻人才的黏性。
业态梳理:聚焦差异化项目前期研究我们通过对客群的洞察确定了以“亚文化圈层和去中心化”为设计理念,同时在业态布局上我们聚焦差异化,拉开与周边现存商业、娱乐的差距。充分考虑青年真正需要的功能空间,以青年实际生活中的使用场景为依据进行业态打造布局。
从开放到私密|分层级设计结合调研结果,我们提出设计一座兼具城市开放性与居住私密性的公寓建筑,同时结合北仑地区的人才引进目标,提供一处集居住、休闲、娱乐、自我提升、轻度办公等多样业态于一体“青年广场”。这里就犹如一部立体的当代青年生活图鉴一般,每天上演着青年人生活、工作、交流、玩乐等各色各异的场景。
作为开放的景观空间与城市地标崇尚人文精神和场所营造,是未来城市空间设计的核心。建筑需要通过对场所的设计来展示其与场地之间在人文气度上的一脉相连:表达青年广场对于北仑的独一无二,同时也反应北仑城市文化对青年广场不可或缺的影响。建筑主入口面向城市打开,使用者经由一条两层通高的架空廊道到达公寓门厅及其他功能空间。在满足实用性的同时带来满满仪式感。在景观利用与塑造上,将公寓底部架空,形态设计为层层叠落的台地,铺设草坡和台阶,以立体的方式向东南侧河流景观和西北侧城市界面自然垂落,为公寓的使用者提供观景面的同时,又为城市提供趣味性的景观,形成可渗透、可步入、可使用的公共空间。
在城市界面,建筑以一种活力积极的姿态面向城市。精致错落的建筑形体犹如跳动的音符,像青年一样向北仑展现自己的热情与活力。在延续城市文脉的努力中,设计师以北仑本地特色为基础,辅以北仑海洋文化和海港文化,通过形体变化与对比彰显青年的特色,形成兼具地方文化与时代特色的建筑立面,与西北侧千篇一律的城市界面形成对比,也赋予建筑具有标示性的外观。起伏变化的曲面意向取自北仑海岸的汹涌波涛,承载北仑青年远航的未来;集装箱造型的“共享盒子”由低到高密度逐渐变小,象征着北仑青年远方的征途;多彩的颜色与多变的空间则代表着北仑青年的朝气蓬勃。
作为共享的公共客厅:各司其职的功能空间我们将公寓使用者的真实需求划分为生活需求、社交需求、和娱乐需求。与之对应、植入于青年广场的建筑空间分别是休闲娱乐空间、交流学习空间,以及生活服务空间和公共服务空间。一至二层以生活服务空间和公共服务空间构成的业态为主,首先满足青年在衣食住行等方面的基础需求。在北仑青创大厦,采购、落户、登记办证等过去繁琐的程序可以在建筑底层区域“一站式”办理。入住的年轻人甚至可以享受到招聘、培训等定制化职场服务,资源在这样的空间安排下达到了优化配置,成为人才与岗位各取所需的微市场。
中部以交流学习空间为主,满足公寓中的青年人在工作之余的社交需求和“充电需求”。这些共享“集装箱盒子”正是为这些不同兴趣圈层的爱好者们提供一个可以同时向内深耕、向外交流的学习与分享空间。同时,在公寓产品设计中充分考虑了“人”在建筑中的状态以及他们日常生活起居中各种不易被关注到的细微需求,如空调机位,衣物晾晒等问题。并进一步对建筑内外空间、人流动线等做了优化调整。
结语未来,当代北仑青年的活动将在这里每天生动上演。建筑通过空间设计对青年生活进行引导,静水深流地为当代青年提供更契合他们生活习惯的空间,通过场所的可供性和已经发生在场所中的情景,潜移默化地传递积极的生活态度。最终,将在日复一日的互动之中,在青年们之间生长出情感,也构建出他们与北仑这座城市之间深刻的羁绊。
项目图纸
△手绘图
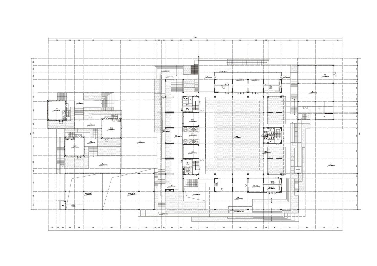
△一层平面图
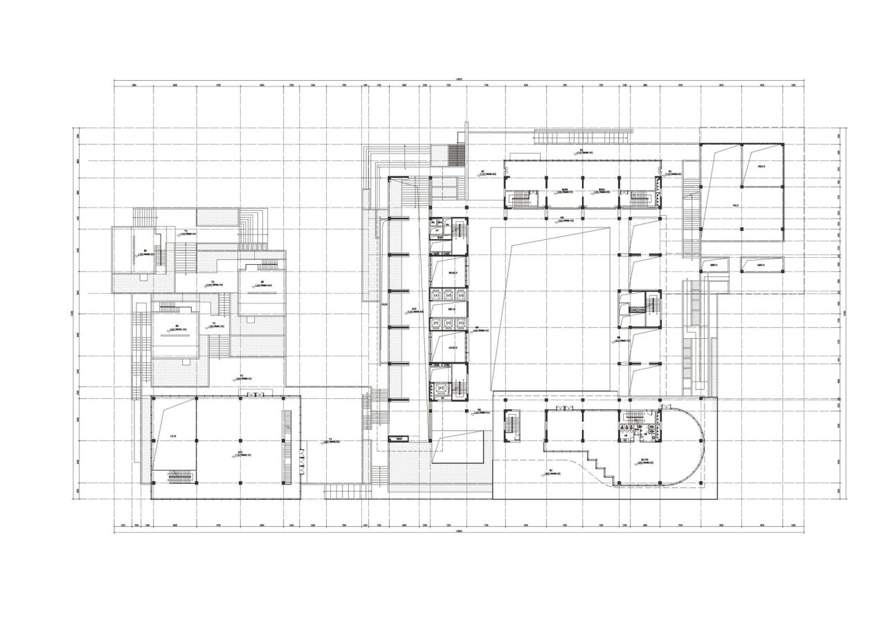
△二层平面图
△标准测平面图
△立面图
△立面图
项目信息
建筑师:DC Alliance
面积:58600m²
项目年份:2023
主持建筑师:崔哲
设计团队:靖伯亚、石祎超、尹致博、许漪琛、张渠、张晏寿、孟繁浩
项目业主:宁波经济技术开发区大港开发有限公司
地点:宁波

BIM建筑网



































