坐落于米雷北部社区的Maïmat 广场,是在1960年盛行的“大型居民区”的模型基础上设计的。停车区域和应对交通流量的道路用的是不可渗透的地面。大型的带状建筑立在基地外围,将基地围合住。在这个贫穷社区里,复合体中心的一个购物中心客流日益减少。
为了振兴这个地区,Promologis提出了一个项目管理团队与米雷镇紧密合作的城市更新项目。从2011起,这个基地属于一项“抽屉行动”中,通过拆除和重建使基地内的当地居民获得新居。第一阶段“南Maïmat”在2014完成,而第二阶段“北Maïmat”在2018年末完成。
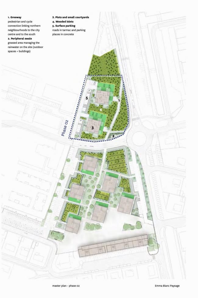
如今,整个项目被大型木质围栏串联起来,围栏内有八栋住宅楼。南面的公共广场容纳了一个露天市场和一排共有产权房屋底层的商铺。曾经完全内向封闭的基地,如今变得开放而可渗透。在居住区周围的木质区域增加了这个新社区的认同感,就像一个木质的有人居住的景观性公共公园。
南北轴上的一条步行小径和自行车道重新建立了旧中心与北米雷的联系。一条新道路让人们可以东西向穿行,并合理地重新组织了从内部到社区外部的交通流线。人行中央广场有每周一次的集市,有商店以及许多协会组织在房屋底层的铺面……一些能使这个居住区生气勃勃的空间。这个建筑项目通过与外部建立一种和谐关系,并与自然紧密联系,来试图回应潜在购买者“对房屋的渴望”。
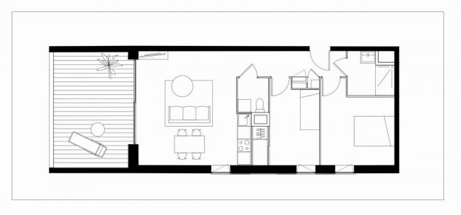
梦想中房屋的样子总是与拥有一个阳台、一个花园或是有能看见广阔天空的视野从而与自然紧密接触的渴望联系在一起。带有植被覆盖的双层高阳台是此住宅的特色,使这个一层层叠加的住宅楼给人一种独立房屋的感觉,创造了类似“楼中别墅”的样式。这个住宅集公寓的优点(实用,经济,舒适)和独立房屋的优点(内外空间连续性,宽敞专用的外部空间,与自然亲密接触……)于一体。
设计图纸:
▲ 区位图
▲总平面一期
▲总平面二期
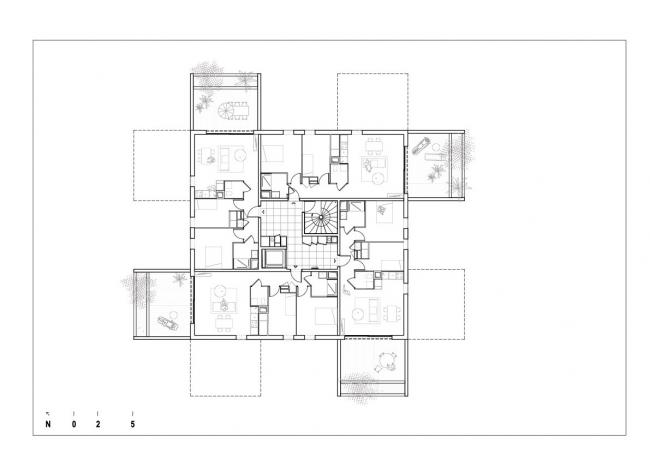
▲楼层平面图
▲单元平面图
▲技术节点剖面图
▲景观剖面
▲草图
项目信息:
建筑事务所:Emma Blanc Pa(BIM培训)ysagiste,ppa architectures
地址:31600 Muret,法国
类别:公寓
竣工年份:2014(第一阶段);2018(第二阶段)
总用地面积:13,300 m2 (第一阶段用地面积)/ 2,826 m2 (第二阶段用地面积) / 5,000 m2 (公共广场面积)
摄影师:Philippe Ruault,Airimage
厂家:Griesser, Autodesk, Technal
(BIM设计)经济工程:Alayrac (phase 01); Execo (phase 02)
施工:MOA
结构工程:Bernadberoy (phase 01); 3J Technologies (phase 02)
流体工程:Ceercé
设备工程:Axes ing. (phase 01); MN’S Conseils (phase 02)
工地监管:Inafa
可持续发展:Albert et compagnie
质量控制:Bureau Veritas
客户:Promologis
道路和景观:Zelidom Le Muretain Agglo/Ville de Muret

BIM建筑网




















