SPARK近期完成了一间面积为132平方米的三居室公寓的改造。该公寓位于一处粗野主义风格建筑的塔楼上,是一个色彩鲜艳,光线充裕的住宅,该公寓的设计理念充分体现了其屋主具有创造性的自我表达。以前由一条黑暗的走廊连接的隔断空间,现在被重新布置为“enfilade”式的连续开放式居住空间,重点面向郁郁葱葱的全景。巧妙的视觉流程引领着您穿过这些空间。这一视觉效果的产生是由色彩的搭配,分层的彩色墙壁产生的透视法和放置在透视中的物体共同构成的,如此巧妙的碰撞才能将您引入这些连续的空间。线条、圆形和色块图案在百叶窗所投下的移动光影的映衬下,显得生动有趣。鲜艳的色彩层板被广泛地用于区分功能区,如厨房和储藏室。滑动的“画廊墙”方便了家居生活的多种模式。公寓是屋主对色彩和设计的热爱的映射,是艺术和精美物品与家具的明亮画布。
设计说明
粗野主义
粗野主义,通常用作贬义词,指的是英雄般的现代主义建筑,以朴素和原始的混凝土饰面为视觉特征。新加坡本土对粗野主义的看法受到欧洲和日本的影响。
这个国家还以其精心修复的‘店屋’建筑和其他英国殖民时期建筑的例子而闻名,以及当代绿色建筑,这些建筑的设计看起来令人惊叹,热带气候下也能节省能源。
与精心修复的殖民地店屋相比,新加坡的粗野主义建筑经常年久失修,因为公共设施的共同所有权问题,许多屋主认为集体出售他们的房屋是比改造升级更好的财务选择。
虽然大多数人可能认为粗野主义建筑可能不像店屋那样传统漂亮,但我们SPARK认为它们是新加坡身份的很好表达,因为它们体现了真正的社会集体建筑。
SPARK对 Sherwood高层公寓的改造是如何成功成为粗野主义建筑的创新标杆的呢?
精神场所
参考勒·柯布西耶精致美学的“新精神”(L’Esprit nouveau)的理念, SPARK避免过度设计,倡导保留视觉和外形上的清晰度。改造的重点是那些将外部世界带入室内,别具一格的外部景观,这样就在视觉上增强了空间感、加强了通风系统、自然光线以及空间的流动性。
大型开放空间通过“柯布式”的矩形线条和平面布局实现了清晰的“普适格式”,这些矩形线条和平面将空间和建筑对象提炼到其几何基础上,消除了视觉混乱和噪音。
空间
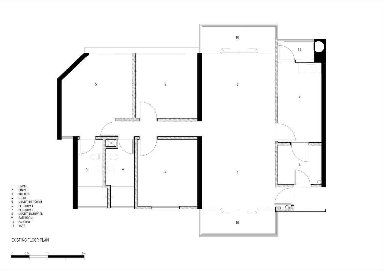
改造公寓的面积为132平方米,起初其中3间卧室在无窗走廊的映衬下显得十分压抑,而后通过将以前的流通空间改造成正对齐的“enfilade” 开放生活空间来实现其改变。
空间规划是根据屋主的要求来塑造的,光线和新加坡的绿色景观应当是充足的。
因此,新空间的设计着重聚焦于框景,现有的剪力墙构成空间框架,配以滑动墙板和旋转门。
新加坡森林的全景日出和日落景观被环抱在别具一格的光影之中,给公寓带来了多样的氛围,这会让屋主在这座房子里的每一天都能享受到不同的风景。
现有的入口被改造成一个引人注目而宽敞的门厅,为内部画廊营造了一个独特的画框。以前厚实的后勤空间现在变成了日光过滤的玻璃墙,保证了厨房的采光。而到了晚上,这个空间又会变成一个散发着和煦、温暖光晕的“灯笼”。
起居空间以瓷砖铺就的岛屿家具为中心,作为厨房的缓冲区。两个存储空间为平面和截面形式的起居空间提供对称、平衡和比例。两个存储体量为起居空间的平面和剖面形式提供了对称、平衡和比例。
与传统的沙发和经典的生活空间相比,松散的家具和地毯被更倾向于使用,以便获得灵活性和持续的调整,这一点也是屋主赞同的,即家是一个创造性的自我表达和自由的空间。
图形与色彩
线条、圆形以及色块图案通过百叶窗投射出不断变化的日光和阴影来表现。通过空间光影的变化形成的有趣的视觉体验从而吸引住我们的目光。这一场景从缤纷多彩的入口处开始呈现,场景设计的特征来自分层的彩色墙壁和在不同透视点精选放置的物件,它们促使来访者沉浸到空间之中。
多姿多彩的“画廊墙”的滑动设计,巧妙的隐藏了电视,展示了艺术品,墙壁将生活空间与书房、卧室、浴室和衣帽间分开。这些可移动元素的变换带来了家庭的宜居模式。
彩色层压板被广泛用于彩色块入口,厨房,书房和衣帽间。乙烯基板可使地板表面看起来无缝隙,使空间看起来更大、更宽敞。
带有圆形图案的入户门设计恰好映衬在室内门上。圆形视觉的面板与纹理磨砂玻璃在不同的强度与条件下会出现不同的光照变化。
公寓是屋主对色彩和设计的热爱的映射,是艺术和精美物品与家具的明亮画布。
SPARK打造了一个抒情和浪漫的空间,将工艺与具有想象力的使用空间结合起来,是新加坡现代住宅理想和当代生活需求之间的一次碰撞。
项目信息
总室内设计面积(平方米):132平方米
室内设计:SPARK
团队成员:斯蒂芬. 平博里,林雯慧,梁仲文,Athira Radakrishanan, Christine Sherin Lim
施工方: Innerview
油漆: Nippon
墙壁+地板: Hafary + Unlimited Enterprises
Laminates: WilsonArt, Panaplast, EDL
Fittings: Sol Luminaire + Buster punch
家具: Owner’s collection

BIM建筑网







































