樱花小镇项目设计理念及特色
新的现象
1,所有大城市的城中村现在有这样一个问题,那就是已经出现很多人坚决反对宅基地流转,坚决反对放弃农民身份(上海北京广州深圳等一线城市),反对拆迁,但是他们的宅基地又非常大,于是就拼命违章搭建出租,外地人集聚垃圾横飞,治安混乱,怎么办?有什么好办法,既能保持他现在比城市户口更值钱的农民身份,保留他宅基地,又让他自愿拆除违章建筑后面积大幅度减少他的收入不降反升,又改善环境?从城市伤疤变成城市之花?这个项目就是解决和示范。她是城市原貌,她也可以是商业街区,她是文旅景点,她是城市公园,她也还是城市里的村庄。
2,纯粹偏远的景致优美的村庄纷纷改造成特色小镇,但是因为偏远只能居住,或者偶尔的文旅,因为不在城市生活圈中,几乎没有商业价值,投资冲动没有。 所以全国很多类似项目大都是网红一下后归于沉寂。
樱花小镇项目整体鸟瞰
樱花小镇总平规划图
樱花小镇是大上海第一个农村宅基房屋原地改造升级进行商业化运营理念的实践项目。她,位于上海南部古镇-南桥镇六墩村。她最大特点是她基本上是一个城中村,这是上海范围内第一个真正的保留了江南水乡原始乡村记忆和祖宅情怀的民居升级改造为商业但是不改变土地性质不改变业主身份的案例。
樱花小镇接龙故道遗址公园
樱花小镇示范段整体鸟瞰
她,不仅仅是一个纯粹的村庄,她是一个和核心城区接壤的城中村(城边村)。她既是城市也是村庄。针对城中村,我们这个项目操作是既不对土地进行收储流转,也不对村民身份进行农转非操作,改造后她虽然身处闹市,其实还是农村农宅,虽然共享繁华但是并没有丢失农民身份。这个项目也是全国第一例大城市城中(边)村改造升级的项目。
在这里,祖宅的回忆儿时的嬉梦完整展现,无需影像寻回;在这里,简单的生活不再是奢望,出则为喧嚣繁华的闹市,入则为安逸静谧的隐居,生活原来可以有另一种味道。她坚守并保持着城市的原来面貌。她使我们的城市灵魂得以续存。千城一面弊端得以避免。
樱花小镇项目实施效果及革命性突破
樱花小镇示范段北立面
1、实施前:大城市和小城市不同,城中村农民并不都是支持房屋拆迁补偿和农转非。相对来说更热衷于违章搭建出租,所以全国的所有大城市的城中村几乎都成为城市的一个疮疤了,违建泛滥、外地人非法集聚,各种治安问题隐患,这也是大城市城中村的通病了。
实施后: 保留金贵农民身份,保留心灵根本的宅基地不变,美化该地、借机拆违、三无人员清场、区域安定、财政增收、增建升级公用设施改善民生。
樱花小镇鸭棚博物馆
樱花小镇功能分区图
2、实施前:市政生活设施不完善,最低端的居住商业使用民生状况不佳。
实施后:有望成为上海(甚至全国)第一个不改变宅基本质的、不违章扩建的、业态更合理,市政服务设施更完备的农宅升级改造成居住及商业化项目开发试点项目丶甚至可能是示范项目。
樱花小镇鸭棚博物馆
3、实施前:原有的城中村改造项目几乎完全是彻底拆迁,完全割裂和抛弃原有城市风貌文化民俗灵魂。
实施后:维持原有江南水乡建筑风貌生活状态,文化脉络,尽量保留和重复使用原来老宅拆下的所有砖瓦柱梁(亦减少(BIM教程)建筑垃圾排放),不出原来老宅的外墙界线和原地基,体现对祖基和祖宅记忆的尊敬(国内还未有做到的,都是一拆就彻底找不原来的“根”了)。
樱花小镇鸭棚博物馆
樱花小镇开发分期示意图
4、实施前:项目投资巨大,拆迁收储周期漫长,拆迁补偿大,规划审批手续行政层级高难度大,意见不统一矛盾激发甚至出现流血冲突刀兵相见。地基开挖运输环境影响大。
实施后:项目投资只有原来的1/3甚至1/5,1/10,不存在拆迁收储漫长周期,拆迁补偿没有,走村民建房通道,几乎没有麻烦,因为环境改善,收入增加(收入比原来违章建设的几倍面积还要高),远期收入更好,村民积极响应支持。项目改造投资金额最大限度控制(花小钱办大事,原墙尽量不拆最起码是小拆),原地基尽量再利用(已经沉降稳定了非常好用)。
樱花小镇示范段从西往东看
5、实施前:就是一个没有任何特色、灵魂的泯然大众的居住小区或者普通商业项目。
实施后:有望成为区域内第一个(本区急缺的,本市其它区都有不止一个)文化旅游热点的建筑群落(可以谈情、游玩、小聚、婚摄、建筑文化展示,甚至成为艺术人士、各类设计师今后参观朝圣之地)。通过集中种植某一观花树种(设计为樱花)约1000余株,有望成为上海第七大赏樱休旅基地。一个包容在农村优美生态环境之中的集农宅(基)升级、总部办公基地、文创基地、餐饮休闲、旅居基地等,以生态田园、共享服务、特色文化建筑为基质,融休闲度假、民宿酒店、总部产业研发培育、传统文化传承等功能于一体的具有国际吸引力的、上海乃至全国上海知名的城市农村社区综合体;成为上海农宅升级改造产业创新文化旅游等为一体的农村可持续发展的地标。为大城市之城中村改造呈现一个新的示范路径。
樱花小镇鸭棚博物馆
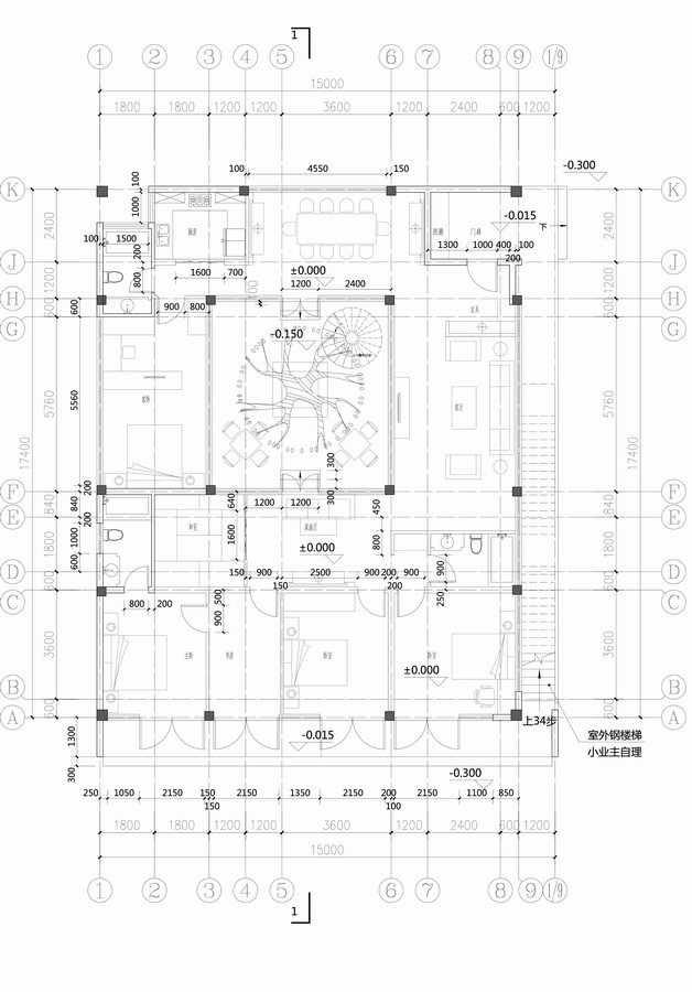
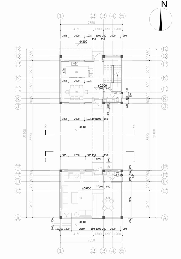
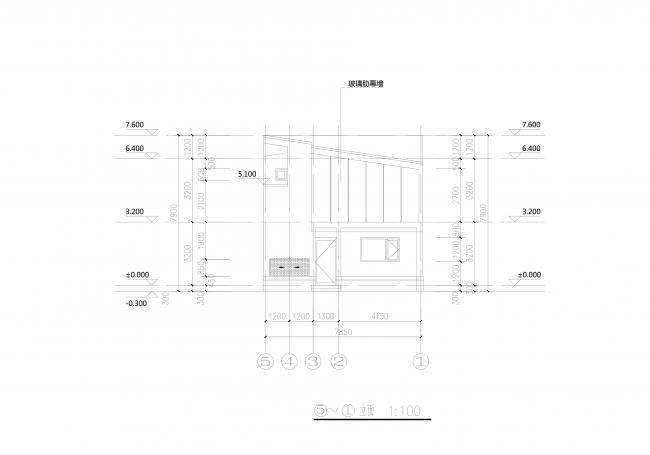
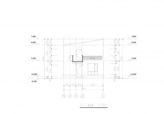
图纸
A房型平面
A房型背立面
A房型东侧立面
A房型剖立面
A房型正立面
B-C房型平面
B-C房型背立面
B-C房型侧立面
B-C房型剖立面
B-C房型正立面
D房型平面
D房型背立面
D房型侧立面
D房型剖立面
D房型正立面
F房型平面
F房型背立面
F房型侧立面
F房型剖立面
F房型正立面
项目信息
项目名称:樱花小镇 Cherry blossom Small town
项目地点:上海-南桥镇
占地面积:约100000方
建筑面积:约15000方(第一阶段)
容积率: 15%
建筑密度:6%
绿化率: 70%
设计单位:唯赢(上海)工程顾问有限公司(UK WinWin Engineering Consultant Limited)
主持建筑师:张延伸
建筑主创:张延伸 马科(意大利) 周永军 范舟强
规划主创:张国良 贾斯汀(喀麦隆)
景观主创:张国良 周志 徐鹏英 何冰

BIM建筑网



































