盒子住宅位于圣保罗市一个低垂直化住宅区,专为一位年轻的建筑师而设计。场地占地为(20 x 10米)大小,指向位于四个立面中的两个沿街开口。体量的天光和内部庭院照亮了位于另外两个立面的周边环境。
从街道的角度来观望,房子就像一个藏匿于围墙后面的未开口的不透明盒子。设计师的用意是通过审慎控制处理隐私度,而创造更多住宅所需要的安全性(这是城市住宅不可忽视的事实)。当您穿过前门时,您将来到一个大厅,您可以通过该大厅首次看到整个项目的体块以及通过选择材料区分的功能区。不透明的盒子,以前看起来很厚重,但是现在底层的玻璃盒子,让它看起来更漂浮轻巧起来。
滑动玻璃门位于底层,人们的视野可与花园景观融为一体。这部分是功能性的分区(生活)。二楼包含套房,电视室,他们共同确定了住宅外层表皮的隐私度:通过调节迷你波浪板开口程度来控制日光,声音和保持一定的安全性。
至此,屋顶花园使得建筑在最终使得建筑变得更为完整统一。并与周围环境建立了独特的对话关系。这就像一个独家私人的眺望台。太阳能采暖(供水系统),花园,通风系统和采用的施工技术(速度)等设备都可以产生具有高效房屋品质空间。从鸟瞰图可以注意到房子在其周边的背景语境之下是一个特殊的存在。该建筑通过对平面布局的组织设计,以及对当地材料的甄选定义等等一系列的细节设计才表达尊重场所的真实条件。
图纸
场地平面图(BIM学习)
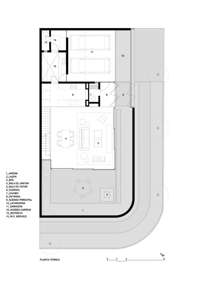
首层平面图
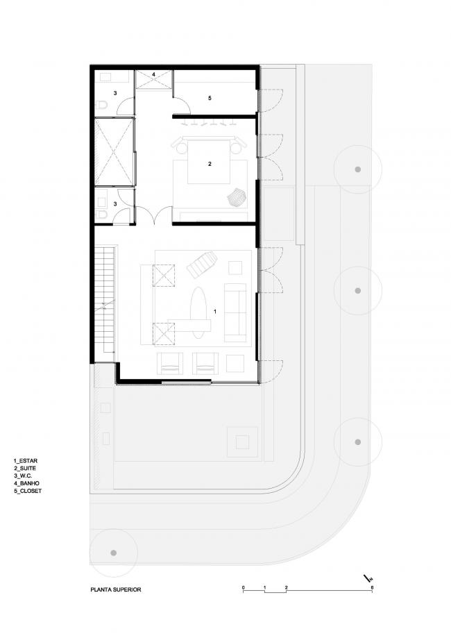
二层平面图
屋顶平面图
正立面图
侧立面图
纵剖切图
横向剖切图
项目信息
建筑师:FCstudio
地点:圣保罗,巴西
主持建筑师:FlávioCastro
设计团队:FlávioCastro,FláviaMarques
基底面积:240.0平方米
项目年份:2017年
建筑摄影:佩德罗角
制造商:FOSCARINI,Grohe,Vibia International,Jacqsa Distrib Vidros,Levitare,Moroso,STR,BD Barcelona,Deca
合作者:Rossin + Tramontina,Useaço,Estudio Bola

BIM建筑网













































