原型与不同物种的胚胎相似:尽管它们起初具有相似性,但它们会各自进行转变和创造。这种创造和转变是由不同的关系力量所导致的。因此,在使用原型时,我们不能忽视这些与生命力相关的关系。否则,我们就会重复一个死气沉沉的对象:一个仅作为自身存在的物体,一个与其他符号进行荒谬修辞斗争的“传统”。
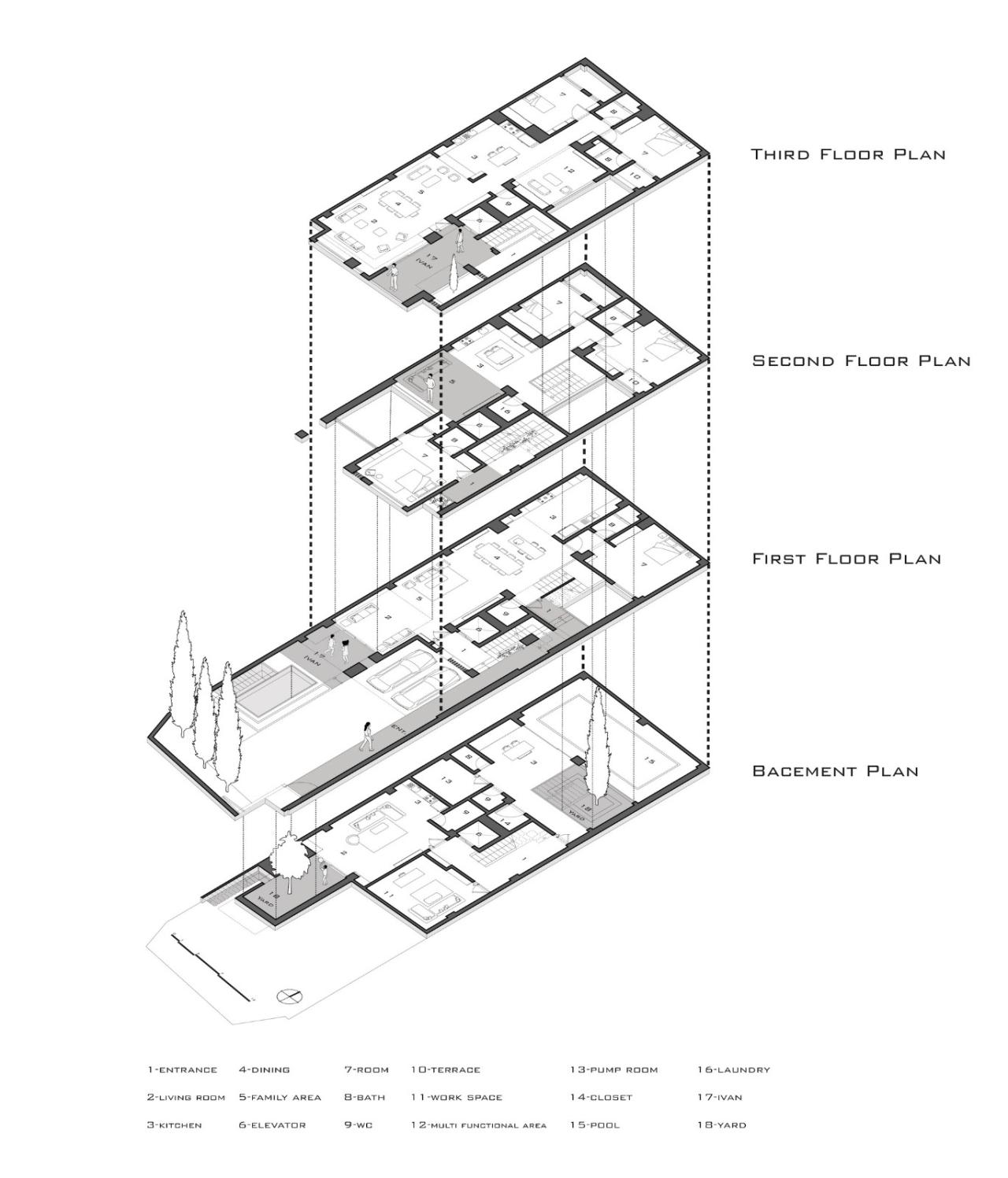
在“2 Ivans, 2 Houses”项目中,Ivan 被作为原型,是对伊朗中部高原典型单Ivan房屋的一种重新诠释。这不仅仅是一个形式问题,更是这种形式所能带来的可能性。Ivan 是一种极简且高效的模式,它回应了房屋迫切需要空间多样性的现状。
在当代房地产空间生产的体系中,空间多样性对于自主房屋来说是必不可少的。这种空间组合很好地创造了一系列连贯的开放、半开放和封闭空间,这些空间适应了伊朗当代房屋所固有的力量。它既不浪费土地,也不受陈规陋习的束缚。它很好地融入了流通空间,为我们提供了景观。它不仅仅具有装饰性。作为建筑师,我们始终在寻找并发展这些所谓的“胚胎”。这始终是一个将这些“胚胎”转化为其直接环境中的生物的问题。
从历史上看,Ivan 创造了许多空间关系,因此它可以应用于当代设计。在项目中,我们在两个层面上有两个“Ivan”。第一个被称为“观景 Ivan”。它位于一楼,为双层房屋提供了与邻居、庭院和树木之间突然出现的视觉联系。第二个 Ivan 被称为“入口 Ivan”。它位于二楼,为第二栋房屋提供了不同的功能,如流通中的移动和停顿。这两个 Ivan 有着共同的血缘关系,但有着不同的表现形式,从而在同一结构中创造出了两种不同的风格和两栋不同的房屋。
Ivan 必须通过对话来融入一个连贯的结构。这是一场关于地球、天空、邻里、内外之间的对话。通过这种方式,Ivan 可以被视为空间延伸。这种延伸将现有树木的景色融入房屋内部的生活空间,并保持了与邻居后院和房屋正面的空间联系。在这个项目中,Ivan 是使这些联系成为可能的关键:它是花园之间的联系、室内外的反射联系、与天空的联系以及与邻居树木的联系。
项目图纸
△分析图
△平面图
△剖面图
△剖面图
△剖透视
△剖透视
项目信息
建筑师:HAMAAN Studio
面积:950m²
项目年份:2023
摄影师:Mohammad Soroosh Jooshesh
厂家: AGT Highglass,Alfam,Handmade Brick,Hermes,Knauf
主持建筑师:Behrouz Shahbazi
委托方:Hamidreza Ziayi
工程管理:Kimia Valiani
设计团队:Kimia Mohammadi, Zahra Shokrollahi
汇报团队:Masih MoshgForoush, Sharareh Pooladsaz, Kimia Mohammadi, Faraz Tahmasbi, Ahmad Mousavian, Fahimeh Mohammadi
结构工程:Eng. Khosravi
电气工程:Eng. Davoudi
机械工程:Eng. Jahangiri
平面设计:Ehsan Agharokh, Zahra Amini
建造团队:Mehdi Abkhofteh & Partners
工程监督团队:Hamaan Studio
地点:伊朗,伊斯法罕

BIM建筑网






















