业主最初受邻近案例的启发,想拆除现有房屋并更换两栋联排别墅。该房屋被当地委员会列为具有重要意义的房屋。在我们对该住宅的更新建议之下,业主们很快就改变了他们最初的想法。令我们兴奋的是,他们打算根据个人需求来更新房屋。
现有的住宅,名为“O'Brianhouse”,是一座装饰艺术风格的房子,于1938年为图书管理员 John Patrick O'Brian 创建。由于非常独特的坡屋顶,不寻常的砖窗罩细节,还有弯曲的入口门廊形成所有设置在角落的场地,所以该住宅意义重大。业主要求更多可用空间,光线,与外部更好的(BIM培训)关系,额外的卧室以及现代化的装修。
我们的方法是创造原有住宅的影子,一个O'Brian house的现代 “副本”, 它呈现出一个简单的具有雕塑感的形式,放置的位置经过精心考虑,以作为原有建筑的补充。房子必须对繁忙的朝南的街道保证私密性,同时接受北方的阳光。因此,新的整体形式对于南侧街道是无窗的,底层退至南侧边界。屋顶沿用了现有的屋顶坡度,第一层设置在北边界(远离街道),以尊重原始的房屋形式,并呈现原始的房屋烟囱。新建筑的外表皮设计经过精心设计和细节处理,确保简洁美观,去除所有多余的视觉元素。
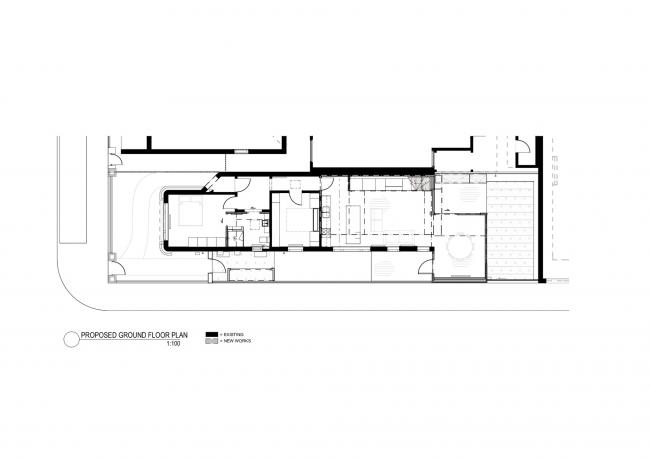
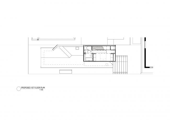
房间的大部分都被保留了下来,只有后面的棚屋,潮湿的家装和一面内墙被移除。一楼起居区被打通,增加了用餐区。现有的浴室被扩大,成为浴室套间。第一层包含第三个卧室和相邻的套房。一楼屋顶北侧有一个4.7米x 0.6米的天窗,为卧室和套间提供照明,同时仍然能保证面向街道/邻居方向的隐私。天窗上方的可伸缩遮阳篷可调节光线和温度。
房子的一个独特之处是“隐藏”的滑动侧门。市政委员会不允许路边或专用十字路口停车。因此,如果需要的话,后侧栅栏可以偷偷地滑进住宅墙中,以便车辆进入。
影子屋,这个位于小型场地上的三居室内城区住宅,对历史敏感的内城生活产生共鸣。
图纸
已建成 平面图
设计 平面图
设(BIM设计)计 平面图
设计 平面图
设计 剖面图
设计 剖面图
细部01
细部02
分析图
分析图
项目信息
地址建筑师:Nic Owen Architects
地址:澳大利亚
建筑面积规划面积:200.0 m2
建筑面积:127.0 m2
摄影师项目年份:2018
摄影师:Christine Francis
厂家:Colorbond, Capral, Miele, Roca

BIM建筑网

























