很少有项目能像建筑师自己的家那样允许如此多的实验,而“互联之家”也不例外。十五年前,建筑师兼客户阿尔伯特·莫(Albert Mo)和他的家人搬进了一座由彼得·麦金泰尔(Peter Mcintyre)设计的20世纪50年代中期的住宅。十多年来,他们一直在思考设计理念,这些理念将成为扩建背后的驱动力。该项目的概念旨在恢复建筑遗产与采用户外连接的新方法以及扩大平面布局以适应青少年子女之间取得了平衡。最终建成的家宅与花园密不可分,日常生活的仪式与自然的互动无处不在——从一棵成熟榆树的树冠下悬挑的休息室,到餐桌旁微观世界般的庭院花园。
位于基尤(Kew)的斯德利公园(Studley Park)是现代主义住宅建筑的熔炉,保持原住宅的街道风貌是对公共领域的一项重要传承。原始的油漆颜色和砖面装饰得到了修复,而新的扩建部分则巧妙地隐藏在街道视线之外。这种建筑形式与周围环境的关系意味着,直到客人深入住宅内部,才能看到第二层。
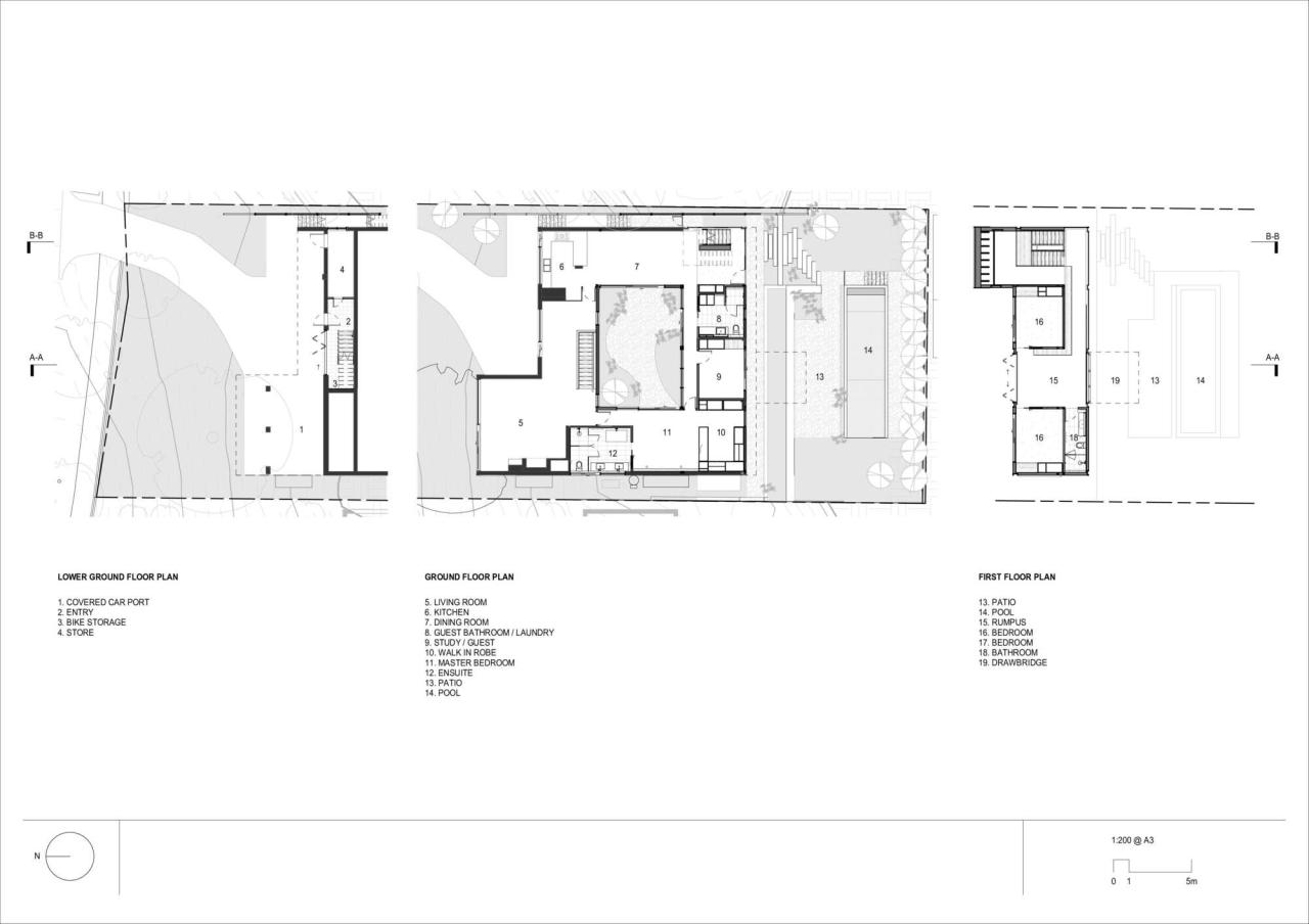
该场地坡度极陡,需要建造大量的台地来创造房屋与后院之间的新关系。为了尽量减少土方工程,扩建部分严格遵循现有房屋的结构布局。平面图在简约的框架内解决新的规划方案。因此,新楼层与原始建筑的占地面积完全相同,从而保持了整个房屋的比例节奏。
在这样陡峭的场地上成功地将新旧建筑材料融合在一起所需的精确度,是各方通力合作的结果。交接后一年完成的吊桥机制就是最好的例证!这需要一位愿意进行数学计算的航空工程师、一位敢于冒险的金属加工师、一位值得信赖的建筑师,以及建筑师/客户的不懈努力——然而,经过12个月的原型制作后,他们发现吊桥仍然太重而无法举起!在吊桥能够正常使用之前,他们又进行了3次尝试。
这座房子将世代相传,可持续性对于确保跨代住宅的长寿至关重要。虽然原始计划具有良好的朝向,但几乎没有任何隔热措施,且全部使用燃气设备。新工程将其改造成了一座全电动住宅(除了原始的燃气壁炉),并配备了重要的太阳能板系统。所有设施都采用了新的双层玻璃窗进行隔热,花园也几乎完全是本土植物。材料维护成本低且耐用,优先考虑当地制造商和供应商。
该项目的成功得益于对场地环境的深入了解——早晨阳光照射的位置、冬季落叶的树木、喜欢在火炉旁阅读的人以及书包摆放的位置。平面布局直接响应了当前及未来家庭生活的需求。
项目图纸
▲基地示意图
▲平面图
▲剖面图
▲剖透视
▲细部大样图
项目信息
建筑师:Albert Mo Architects
项目年份:2023
摄影师:Derek Swalwell
建筑与室内设计:Albert Mo Architects
景观设计:Mud Office
施工方:Block Constructions
地点:澳大利亚,墨尔本

BIM建筑网




























