项目的业主是三兄妹之一。由于兄弟姐妹们都没有孩子,业主打算为母亲和兄妹们造一座住宅,以便住在一起相互照应。在实地考察后,建筑师发现场地十分狭长,造了住宅以后不利通风。考虑到场地的客观条件,建筑师提出了管道住宅的概念,风洞不仅是回应场地的产物,也是维系亲情的纽带。
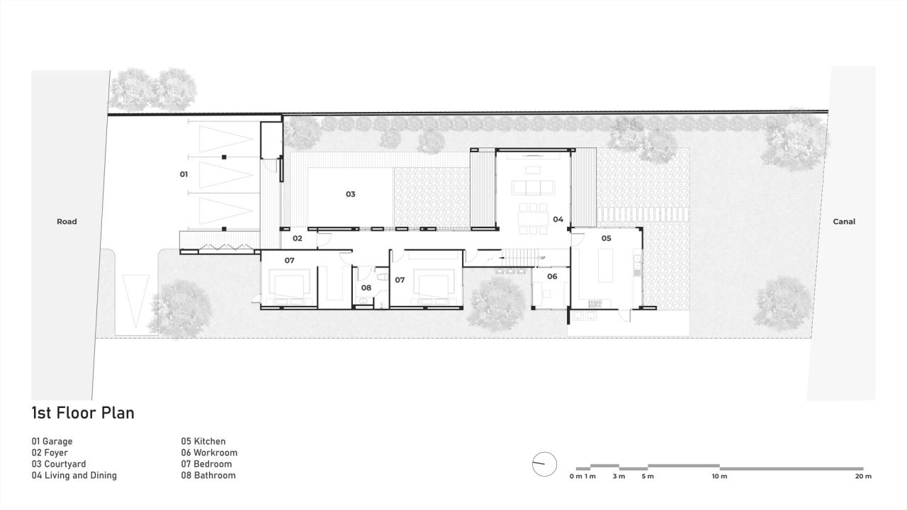
与基地平行的管道空间可以让自然风穿过整个体量进入各个房间,还能创造交叉通风。建筑共有上下两层。业主可以通过管道中的捷径直接进入住宅,但客人则必须先通过鹅卵石铺就的庭院进入客厅。一层的主卧是为母亲准备的,她也是这个房子的核心。
白天的时候,她可以呆在客厅里,面向管道空间享受自然风的吹拂。客厅同时也为各个家庭生活空间创造了视觉上的联系。管道空间是二层主要的交通空间,这里也被用作休闲空间,例如阅览区,或者画廊。除了解决通风问题,管道还能创造回音,无论一家人在房子的哪个角落,都能轻松地相互交流。
在场地设计上,建筑师围绕住宅设置了一系列特色鲜明的口袋花园。前院较为隐秘,同时为主卧提供景观;鹅卵石花园专为迎接客人,同时为客厅提供景观,这个花园在白天处于管道投下的阴影之中,因此非常适合在这里乘凉并呼吸新鲜空气。西侧主楼梯边的口袋花园可以让人在进入客厅时免受直射光的照射,还能为起居空间创造交叉通风。靠近运河的后院全天阳光充足,非常适合种植热带树木。
管道采用具有良好蓄热性能的砖材建造,这样在白天的时候室外温度高于室内,就会有风穿过管道,而在夜晚,砖材会释放白天贮存的热量。管道内外的温差是形成风的主要原因。二层走廊还能直达屋顶平台,这里可以用来举办派对,或是闲坐放松。由于基地远离中心城市,因此晚上还可以在屋顶平台上眺望星空。
项目图纸
△一层平面图
△二层平面图
△项目生成图
项目信息
建筑师: Volume Matrix Studio
面积 : 420 m²
项目年份 : 2020
摄影师 :Spaceshift Studio
厂家 : BPK brick
建筑设计 : Volume Matrix Studio
地点 : 泰国,Bang Phra

BIM建筑网

























