故事背景
星际乘客穿越了广袤空间和无垠时间,为人类寻找新的家园,以便从满目疮痍的地球逃离。 终于,从休眠中被警报唤醒……
爬出坠落的舱体,这个世界无比的熟悉,有着类似地球的植物,和可以呼吸的氧气。一切都那么美好,但是却隐约感受到了一丝异样。
△概念示意图
△舱体式咖啡操作台近景
△露营元素
切开树木,不是熟悉的木质纤维,而是光滑的镜面般金属物质。树木飘浮在空中,诡异的截面反射着这个美好却又陌生的世界。
△镜面长桌
最终发现了这样一个沮丧的现实:这里没有人类,也没有大自然,这不是现实的世界,一切都是虚幻。
△夜晚的咖啡馆
咖啡操作台是由废旧的舱体演变而来,在经过打磨后,它似乎又焕然一新了。机舱盖的灯光使整个咖啡操作区域变得明亮,也增添了一丝神秘的色彩。周边是在废墟上自然生长的植被。
△舱体式咖啡操作台
舱体中间的梁柱作为支撑整个结构,光线通过两个窗口洒进来。
△操作台内部结构
到访的顾客可以坐在舱体内部和外部就坐,看着外面的景色,仿佛驾驶着宇宙飞船在太空中遨游。沉浸式的太空咖啡之旅,将氛围感提升到极致。露营元素提升了沉浸式用餐的体验感。金属材质的木箱和低矮的座椅,让使用者离地表更近了一步,仿佛坐在火星的表面,闪烁的银河系一览无余。
△舱体操作区外座椅区
“悬浮”在半空中的长桌源自于切开的树干,而镜面材质的截面完美的倒映出了窗外高楼林立的世界。举起咖啡杯,从桌面看到外面的世界的倒影,纷纷扰扰仿佛离着万年之远。
△镜面长桌
这是一场时光中的旅行,人们所要做的就是品尝咖啡、放空自己、享受宇宙中片刻的安宁。在设计的同时融入对时间的探索与考量,将人们带离生活的烦恼,在思绪中远航。
△舱体操作台细节
△舱体操作台制作过程
过程分析图
△原始建筑墙体组成的空间十分消极
△移除墙体后,环绕柱子设置操作台,与主入口和大堂均形成良好的关系
△设置球形舱体,以便于设置储物空间和隐藏设备
△施工完成之后,由于业主希望顾客可以进入舱体内部进行体验,所以另外设置了一个操作台
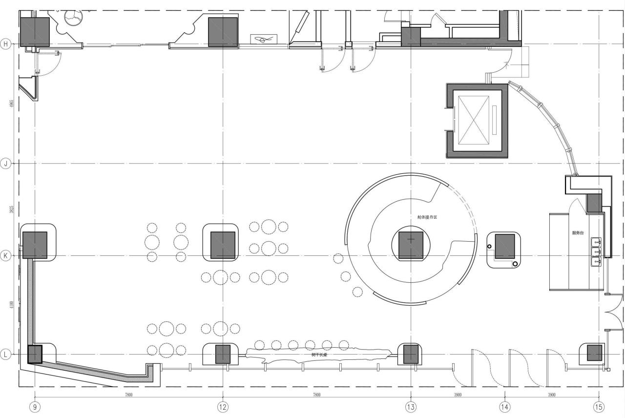
△平面图
项目信息
项目名称:Metal Hands铁手咖啡制造局
设计公司:北京大观建筑设计
设计团队:申江海,张龙潇,王立枫
项目类型:室内设计与改造
建筑面积:90㎡
设计时间:2021年8月-9月
建造时间:2021年9月-12月
摄影师:小枝©ICYWORKS
撰文:孙保宁,张龙潇

BIM建筑网



























