方案构思自打阿那亚最南端这个三角形“边角料”地块被定位成宠物酒店之后,建筑师和业主关于人和狗的思考就从未停止过。一个小酒店的设计模式无非就是低层的廊式、散落的独栋式,或者是非常流行的“一个大托盘一堆小盒子”的复合式。从人的使用角度来说,几种模式都可以。但养过狗的人都知道,狗时不时遇到别的狗的时候,它们会很开心,但人不开心,因为闹的慌。所以,在非必要时间应当尽量避免狗和狗的相遇。于是,在方案初期,就回避了廊式布局,在独立式和联排式之间有些纠结。
后来综合两种模式的特点设计出了一种错开的叠合模式,上下一共三十个盒子,出入口互相独立分开,这样除了解决了这个狗和狗的过多相遇的问题之外,还创造了非常不同的建筑造型,同时拉开的房子之间处理成楼梯并提供地下室食堂的自然采光。在盒子另一侧,因为有进有退,所以部分客房为了避让楼梯就产生了跌级的立面造型,同时也为客房室内的跃层楼梯提供了基本骨架。
由于基地是三角形的轮廓,那同样是为了回避狗和狗的对视,设计将客房的主要朝向面向朝外的三边,次要朝向对内围合,内部的表情则以实墙和设备空间为主,这样非平行布局、开窗较少的内院加强了一个方向的透视感,也成为了建成后最引人入胜的重要视角。
结构设计追求完美的建筑师都对于空间形式的建构逻辑有着近乎洁癖的追求,也就是这样的非框架式建筑造型在最初设计结构的时候最不想出现上下对齐的框架柱,而最好全部是由板式结构来完成(憎恶梁柱而迷恋厚板这个建筑们特有的喜好不知道从什么时候开始的),垂直的剪力墙加斜向的结构屋面板共同形成一个盒子叠合的“板式框架”,这也是最初结构顾问张准建议的。这种上下不对齐的结构体系虽然完美,但对设计和施工要求很高,并且还要进行施工图的结构超限审查,费时费力还不一定能够完全实现。考虑到我并不是接了一个马寅不在乎时间不在乎成本的“小型精神建筑”的活儿,而是一个要考虑时间及成本的商业建筑,所以,犹豫再三,就放弃了建筑师的所谓极致追求,选择了隐藏式的框架结构,利用上下两个盒子的微小的叠合处来寻找框架柱的位置,再用一些建筑手段,让柱子基本消隐在下层客房的空间里。地上的框架部分只在地下室顶板处进行结构转换。
设备管线及排水设计由于上下的客房重叠的部分非常少,又要解决贯通的框架柱,那么提供上下对齐的管线空间就非常狭小了。在这个狭小的空间里要解决带有保温要求的水管竖井,同时为了避免在外立面看到过多的重叠部分,保持上下体量的分离感,我们将管井的外边向内退了一点点隐藏在阴影里,这样会显得上下体量的重叠依然轻描淡写。同时为了在上楼梯的时候也不要注意到这个突兀的管井,我们多浇了一道通长的三角梁,所谓“欲盖弥彰”后反倒就不怎么注意了。
客房采用集中热水供应,但每间客房均设置独立的VRV空调系统,外机的位置一般来说都是越看不见越好,而我们这次反其道行之,就是刻意加大了设备平台,除了散热充分以外还为了方便以后的维修安装等,同时也为底层入口提供了一个雨棚,本身也成为内院空间的一个重要建筑符号。
由于形体的特殊性,我们采用了自由落水的设计,屋面的雨水经由二层通道及楼梯两侧预留的窄沟进行排放,设备平台的冷凝水及化霜水由位于墙角的金属雨水口在不影响人行走的位置自由排放。防雷设计、灯光设计、食堂设备都经过了精确的考量,力争消除所有对建筑观感有负面作用的因素。在客房正下方的管井转换处,也就是食堂的顶板处,根据我们的多年实操经验,预留了在食堂上方环通的一个混凝土综合管廊,以应对今后多种不可预见的管线变更,这个远见在后来客房改为集中供热时起到了作用。
按照商业建筑规范,每一个疏散楼梯都必须有一个消火栓,这个规定在我们这种布局中显得格外无聊,但没办法,十几个消火栓必须想办法,于是在每一个楼梯下口处我们设计了一个照壁,来隐藏那些消火栓,而这个照壁让楼梯空间显得更含蓄,也同样成为了建成后整个内院里重要的建筑构件。
清水混凝土方案初期,关于外立面的材料问题我们一直在做涂料还是清水混凝土之间摇摆。虽然建筑师都有做清水混凝土的欲望,但是阿那亚已经很多了,我们也做好了不做的准备,甚至质感涂料、水洗石甚至白色聚脲都在考虑之列。随着施工图的进程,由于结构的特殊性,能在外立面做填充墙的部位已经微乎其微了,于是,几乎全混凝土的现浇结构已成定局,那么就不装了,还是做清水混凝土吧。只不过在普通夹板模还是小木模之间进行了一些外观和造价的论证,最终选择了更简单更便宜的夹板模。施工总包非常有经验,推荐了一种1.8米长的专用模板,我们按照450模数进行立面分隔,并跟总包一直沟通施工缝的位置、复杂形体转接处的处理等问题。
垂直的墙体浇筑没有问题,但斜屋面的振捣会比较复杂,经历了几个实样的浇筑实验,最终还是解决不了混凝土表面少量的气泡问题,我后来建议总包不要在意,只要程序完全做到位,出现气泡没关系——既然不影响任何结构、抗渗等问题,那气泡也是客观真诚的。
为此我们还做了一个大比例的混凝土实验,位置在阿那亚南门,这个实验品就是概念化了的一个客房盒子,房子不会浪费,未来可改做南门的门房。等浇到尖屋顶的时候,我们发现我们低估了这种非横平竖直的造型浇筑的难度,比如那个屋“尖儿”就很难浇,只能抹。经过是否预制等技术措施的讨论,我最终放弃了尖顶,改为留有一个小平面的梯形屋面,所以最终犬舍客房有两个屋顶形状,一个是大平顶,一个是小平顶。后期所有的混凝土修复、防水抗渗以及内保温、门窗实样、空调百叶及栏杆都在这个一比一大样上过了一遍,并且在后面正式施工的一年多时间里还继续接受着时间的检验。
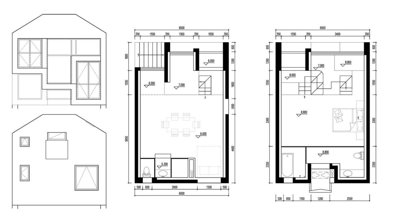
客房设计
由于初始设计中就限定了每个客房盒子的尺寸为6米×9米的基本型,所以30间客房基本上是在这个尺寸控制下,由入口方向及外立面跌级的不同影响而衍生出来各不相同的室内空间,总共分为四个基本型。在设计过程中,加上四个基本型之外由于位置和进退的不同而产生的微小变化,最后导致了更多的设计结果。前面说过了,室外楼梯对客房形体的影响,基本决定了室内楼梯的走向,所以后来的室内楼梯设计基本上是在几个标高上找公约数算尺寸,这样楼梯变成了室内的一个装置,不但成为了上下的交通核心,还串联了几个供人和狗产生趣味停留的几个小空间。
床的布置也经历过靠边布置还是居中布置的纠结,最终还是选择了靠边布置的常规做法。除了楼上的大床以外,楼下也布置了一个榻榻米空间,提供多种家庭结构和人狗关系使用。两层客房都有卫生间,但是二楼由于坡屋面的原因,一些现场尺寸和图纸不会完全一致,所以在竣工前还调整了浴室和马桶的位置,以保证人的正常使用。
外窗的设计变化过程最复杂,从最开始的满开窗,到后来考虑窗帘的安装而拉齐的开窗,再到后来由于上部室外楼梯防火间距2米的规定导致窗的一部分位置需要改为阶梯状实墙产生的小窗,一切“形式追随规范”。最终的呈现是根据节能、消防、成本、运营多方面因素自然而然的进化结果。外窗采用三玻两腔超白玻璃,除了玻璃部分,外窗的设计中还有一个为了配合外立面300模数的一个铝板开启扇设计。
防水设计坡屋顶的清水混凝土建筑,需要坡顶和墙面的视觉连贯,这样就把屋面防水的难度大大提高了,因为最保险常用的卷材防水已经失效。那么常用的做法就是在内保温的前提下对外立面混凝土使用渗透结晶防水剂,加上本身的坡度的话,如果在南方这样的屋顶防水基本没有问题,但是北方冬季的冻胀会使得混凝土开裂,那么防水剂就会失效。在甲方项目经理的一再提示下,我开始寻找可能的新材料。
透明哑光聚脲防水涂料被找到后,我们做了很多实验。从混凝土小样块到混凝土墙,最后在门卫上做整体实验,最终确定了这个从未在建筑外墙上使用过的防水材料。我们决定将整个混凝土盒子通体喷涂及涂刷,只是部位不同厚薄不同,这样除了防水,还能防止海边腐蚀性的空气对混凝土寿命的影响,并且也可以防狗尿。当然聚脲的施工必须是在所有的混凝土修复及装饰工作完成以后。
施工开始上墙之前,大家还是慎重的先从不容易被看见的屋顶开始的,在其他的文章里我写过聚脲发黄的故事,这里不再赘述。最后在所有混凝土修复的硅树脂面漆做好之后,聚脲还是达到了我们初始设定的结果。在处理楼梯部分的时候,由于施工工艺复杂,我们为了保险起见,先在聚脲之前刷了一遍聚氨酯防水涂料,砂浆保护层做一遍后再上聚脲与墙面连贯成膜,最后再铺石材。竣工后,还用涂刷的方式在两侧窄沟里的漏水点进行了增补涂刷。
其他设计栏杆设计往往是容易被忽视的部分,那些一不小心就被设计院引用了锃亮的不锈钢栏杆详图并且没人觉得不好的故事在以前政府项目中屡屡发生。这次我们考虑海边的特殊气候,全部采用了拉丝不锈钢材质表面氟碳喷涂,而且为了清水混凝土的完美,全部采用了后埋件的做法,为此我们也为每个埋件做法绘制了详图,并且栏杆段充分考虑了标准化的设计,这样可以减少工人的犯错概率。
还有遮挡空调外机的不锈钢瓦楞穿孔板、为清水混凝土定制的不锈钢伸缩缝盖板、完工后整改的一些小五金件、以及由于铺装导致标高不合适的地漏做法,甚至还有为总包在淘宝上购买的不锈钢材质的和犬舍风格匹配的排风口——在落后的没有任何设计感的标准图集之外,一些非常规节点都只能由建筑师来完成。
总结建筑物最终呈现后,大家往往是对方案构思进行高谈阔论,恨不得能联系上人类学、社会学、文学、现象学等你知道的各种学,有时候“名人名言,依次出场”、“除了设计,什么都谈”。其实相较于理念,设计中的技术也很值得谈,甚至这些关乎技术的枯燥过程才是设计的开始,这过程让方案变得丰富且饱满。学术就得有“学”也得有“术”,不谈技术,建筑学就属于“不学无术”。建筑师的职业本就应该是个技术活儿,技术也是让建筑学迭代发展的重要条件,而技术本身就产生美。
建造也是一个多方合作的行为,建筑师在独享荣誉的时候还不能忘记甲方、设计院及施工方的协助配合,没有他们的支持,建筑师就是一个画画儿的。建筑更重要的还关乎人的使用,在2021年的国庆,也是犬舍试营业期间,我带着我的老狗呆萌,来回驱车2700多公里,在阿那亚犬舍住了五天,以用户的角度来审视我设计了三年的建筑。最后,我跟呆萌,对犬舍的设计、施工、管理、运营等方面基本满意。
项目图纸
△手绘图
△交通分析图
△空间分析图
△整体平面图
△一层平面图
△二层平面图
△屋顶平面图
△地下室结构
△整体结构
△管井示意图
△地下综合管廊示意
△地下综合管廊断面
项目信息
建筑设计:高目建筑
面积:4682m²
项目年份:2021
摄影师:CreatAR Images,在野照物,郑慧瑾,苏圣亮
主创建筑师:张佳晶
设计团队:徐文斌、张启成、徐聪
施工图设计:北京中外建建筑设计有限公司, 陈斌、赵荣
酒店室内设计:上海大匀空间设计
餐厅室内设计:明懿空间设计
灯光设计:倘思照明设计有限公司
景观设计:深圳泛宇境筑园林景观有限公司
外墙涂料:深圳泛宇境筑园林景观有限公司
地点:中国,秦皇岛

BIM建筑网


























































