尤里卡大厦坐落于澳大利亚墨尔本,毗邻CBD,共九十层,总高度近300米,于2006年竣工,直到2020年Fender Katsalidis建筑事务所的另一超高层建筑Australia 108建成之前,尤里卡大厦一直是墨尔本最高的建筑,可谓是重新定义了墨尔本的天际线。
其间的583套公寓在开售后的6个月时间里便售出了大部分,受欢迎程度远高于预期。
尤里卡大厦位于雅拉河(Yarra River)对面,占据城市艺术和文化区的整个街区,其在第五层区域设有酒店、办公空间、精品公寓、商业停车场、酒店设施和零售租赁等,南北拱廊与相邻的花园广场则将雅拉河和墨尔本CBD区相连。建筑结构内还融入了艺术元素,例如具有纪念性的理查德·斯金格雕塑和大胆制作的空间营造图形。
大厦的不对称肩部与东西方城市形态的规模相关,位于建筑物高耸的金冠中心部分的醒目棱角、异形凹槽与倾斜面形成了黄金呼应。其纤细的轮廓既有利于减少大风的影响,又可向南部街道及其他建筑物释放光线,并投下优雅的倒影,形成一道别致的城市景观。
尤里卡大厦如同一个三联体,不但为墨尔本创造了一个不断处于变化状态的标志性雕塑,其高占比的超高层公寓又为沿河区域增加了艺术细胞,还提高了城市的文化品味。
另外, 88 层被合并为一个公共观景平台,向游客充分展示了墨尔本的全景风貌,实现了“与社区建立广泛联系”这一设计目标。毫无疑问,自落成之日起,尤里卡大厦便已成为墨尔本的新地标。
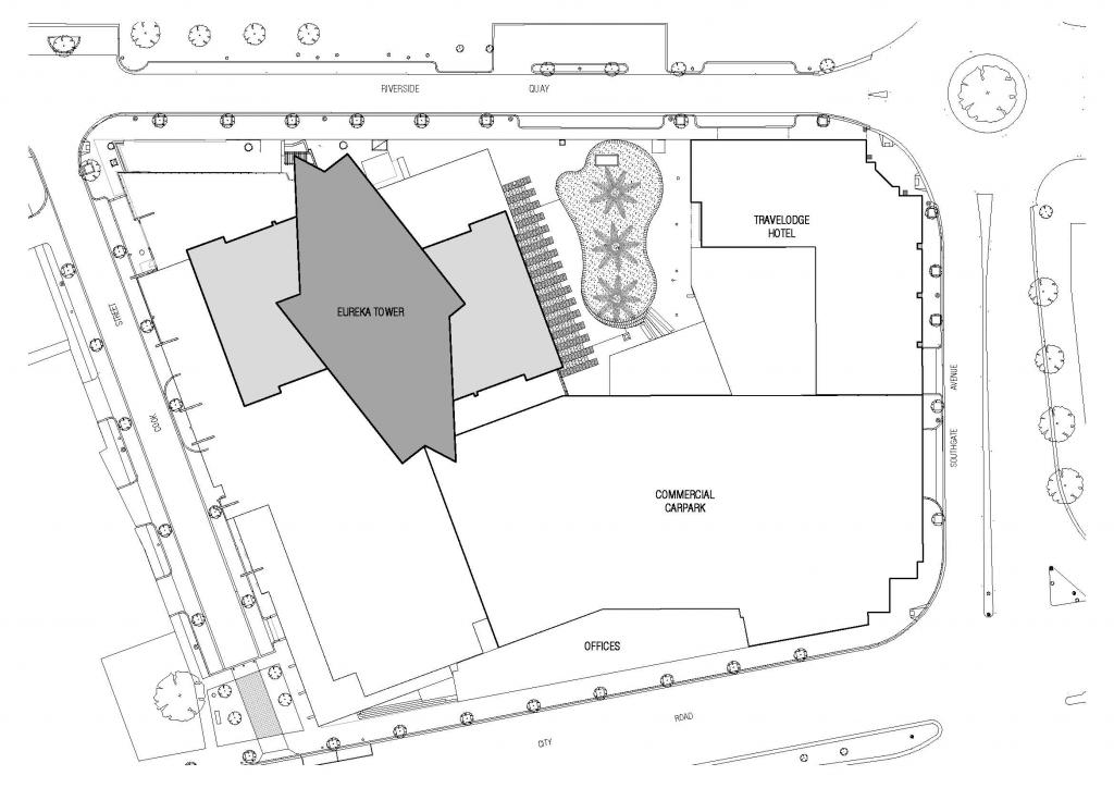
项目图纸
△基地地图
△基地地图
△基地示意图
△26-52层平面图
△53-65层平面图
△66-68层平面图
△立面图
△立面图
项目信息
项目情况:2006年竣工
地点: 澳大利亚,墨尔本
时间:1999-2006
客户:Eureka Tower P/L
建筑面积:123,000平方米
立面材料:玻璃
类型: 商业、公寓住宅、高层
项目功能:公寓、酒店、观景台、办公空间、商业停车场、酒店设施和零售租赁
设计总监:Karl Fender, Nonda Katsalidis
设计团队:Gerard van Beek, Michael Fazzino, Rainer Strunz, Kathie Hall, Anne Clisby, David Lee, Nigel Fitton, Davin Smith, Joseph Lebbos, Glenn Purcell, James Rutt, Wayne King, James Mills, Falk Peuser, Barde Gregory, Annie McIntyre, Frank Rog, Jeremy Holloway, Andrew Gelson, Katy Roach, Edward Hosken, Jessica Lee, Andrew Ta, Minh Le
Project Team
施工单位:Grocon Pty Ltd
结构工程:Robert Bird 集团
摄影:John Gollings

BIM建筑网























