这栋住宅建筑位于一块113平方米大的场地上,其目的是为了打造外部极简、内部现代且功能齐全的空间。这栋建筑清楚地展示了业主真实的性格,因此,空间中充满了自然的绿植和原始的材料元素。
这栋建筑的功能区域分为6层:
● 1层:车库及用于出租的商店
●2层:3间用于出租的小型公寓
●3层:3间用于出租的大型公寓
●4层:1间主人房、2间小型公寓和1间客厅
●5层:厨房+用餐区
●6层:业主个人的办公室
建筑所在的场地位于当地的市场附近,因此她希望将一楼空间作为商铺出租,并希望其它层的空间可以与外界有所区别,因此H2建筑事务所用绿树和通风墙体将整栋建筑包裹了起来,通风墙体本身则由铁质框架及水泥板打造。
业主本身住在西贡,并有着十分繁忙的日程,因此她希望她的家可以有一处真正充满度假风格的房间,以此让其成为拥挤集市城镇中的一处温暖的亮点。也因此,所有的卧室、厨房、工作间和洗手间都以黄色暖光灯装点,并各自带有不同的绿植景色。
除此之外,她在5层空间可以看到整座城市的景色,这样的设计也让这层的开放式厨房空间融入了自然的氛围之中。花小姐的起居空间都隐藏于弧形的混凝土墙壁之后,并被菜园和果树所包围。宁静的生活空间也与充满烟火味的开放式厨房形成了鲜明对比。
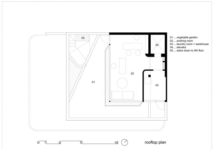
顶层则是业主个人使用的办公室。这一空间中有着小厨房,紧挨着它的则是一个较小的阶梯式露天楼梯,两者共同打造了这栋建筑中更为柔软的空间。
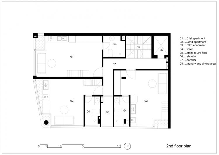
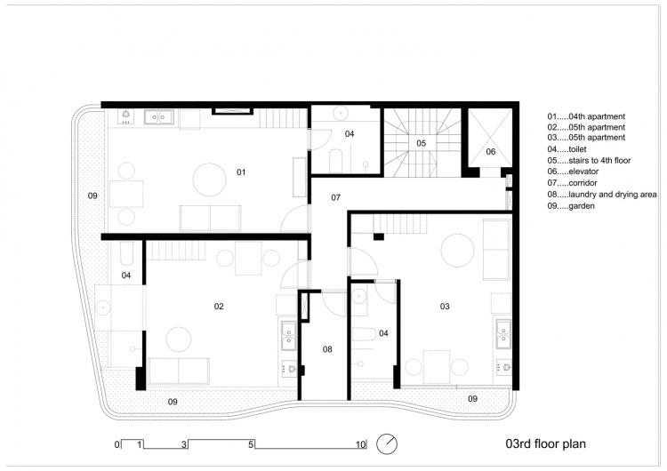
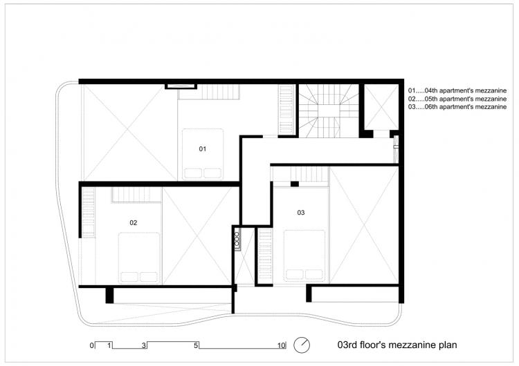
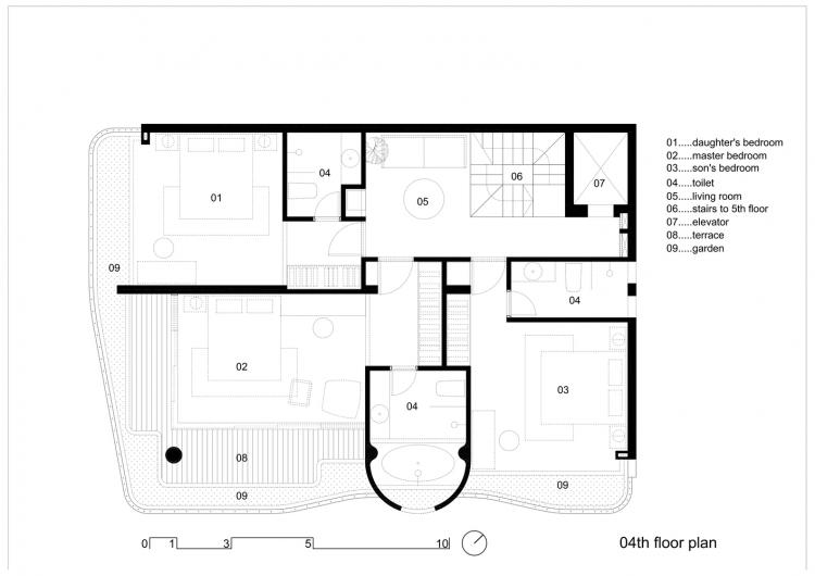
技术图纸
△ 一层平面图
△ 二层平面图
△ 二层夹层平面图
△ 三层平面图
△ 三层夹层平面图
△ 四层平面图
△ 五层平面图
△ 屋顶层平面图
△ 屋顶平面图
△ 立面图
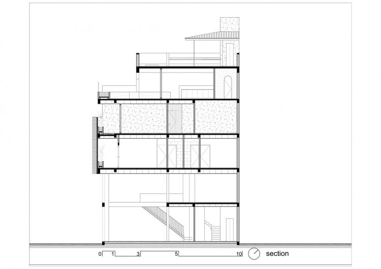
△ 剖面图
项目信息
项目类型:独立住宅
项目地点:胡志明市,越南
建筑设计:H.2
面积:113m²
项目年份:2020
摄影师:Quang Dam
厂家:Toto,An Cuong,Jotun,Megan Man,Xingfa
主创建筑师:Trần Văn Huynh, Nguyễn Thi Xuân Hải, Nguyễn Đức Khánh, Nguyễn Văn Hóa, Đỗ Trọng Nhân Kiệt, Nguyễn Văn Trung
业主:Ms. Hoa
铁制品:Mr. Vân
窗户制造商:Mr. Duy
室内设计:KAA Studio
施工方:AT Cons.

BIM建筑网









































