平和图书剧场是OPEN设计的“聚落校园/上海青浦平和双语学校”中的核心建筑。一个大型图书馆、一个500座的专业剧场和一个150座的黑匣子剧场,在一栋建筑中创造性地结合在一起。有的孩子说它像一头蓝鲸,也有的说它像一艘巨轮。独特的建筑形态和充满自由的空间,不仅可以培养孩子们对阅读和表演的兴趣,也让他们的想象力在知识的海洋里尽情遨游。
图书剧场位于聚落校园重要的一角,靠近一条城市主干道和一条古运河的交汇处,从远处就可以看到它醒目的蓝色和倾斜的屋顶。一个个有机形态的天窗、舷窗和圆洞,组合成生动的表情,将这个K12学校的天真与童趣引入城市界面。
为了避免孩子们常年待在一栋房子里的枯燥乏味,我们摒弃了近年流行的校园巨构建筑,将原有设计书中的功能进行拆解并重新组合,形成一个个单体建筑组成的聚落。将图书馆和剧场放在一起,是因为我们认为广泛的阅读、思考和通过表演来表达,都是早期教育的重要组成部分,而在应试教育中是常常被忽略的。两种行为一静一动,不同的空间气质和需求,激发了独特的设计策略。
△ 模型图
上与下
专业剧场和黑盒子剧场需要最少的自然光和最好的隔音效果,于是它们被放置在了建筑的下半部分和中心区域。图书馆则占据了建筑的上半部分。
△ 分析图
OPEN充分利用了剧场观众厅与台塔之间的高差,将图书馆的各个空间楔入其中,并将不同高度的空间用阶梯阅览室串联起来,组成环状的空间序列,这一序列在一个沉浸在光与书包围中的圆形阅览室达到顶峰。
内与外
阅读是一种内向且私密的体验。我们为不同的年龄段的学生,从幼儿到青少年,都创造了丰富而舒适的阅读空间,让他们自由自在地找到属于自己的角落。
阶梯阅览室中间还设有户外阅读区,天气好的时候,下沉的屋顶花园可以让孩子们在室外享受新鲜空气。
另一方面,舞台表演的体验则是外向且兴奋的。因此空间也做了更加戏剧化的处理——剧场的主入口是直接斜切建筑而形成的夸张开口;剧场中的暖色木板和深蓝墙面形成了强烈的视觉冲击;首层的咖啡厅还为家长们提供了阅读和交流的空间。
明与暗
光线对于图书馆至关重要,不仅满足功能需求,也赋予了空间形体和韵律。倾斜屋面上的大量天窗可以让自然光柔和地洒入,提供静谧、亲切的阅读氛围。中央阅览室垂下来一个巨大的鼓形天窗,把位于中心位置的环状共享阅读区照亮,让整个空间充盈着一股强大的凝聚力。剧场则完全地隔绝了自然光,通过精心设计的人工照明来满足演出需求。
广义来说,图书剧场是一个综合性的文化中心,它不仅仅是学校的“精神核心”,也可服务于周边社区。这座建筑被特意放置在校园的次入口,可以在不影响学校管理的情况下单独开放,希望能起到凝聚师生、家长和社区的重要作用。
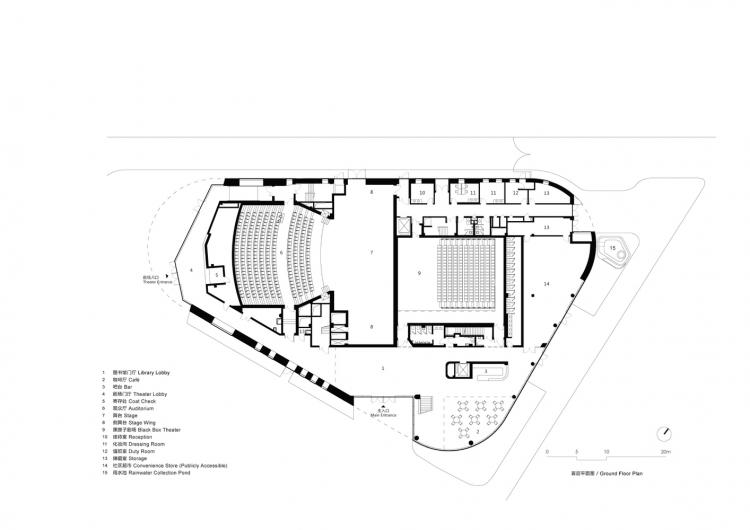
△ 首层平面图
△ 剖面图A
项目信息
项目地点:上海,中国
建筑师:OPEN建筑事务所
面积:5372m²
项目年份:2020
摄影:雷坛坛,吴清山,陈颢
室内设计:OPEN建筑事务所
主创建筑师:李虎,黄文菁
设计团队:叶青,史冰洁,杨玲,谭庆君,卢笛,Daijiro Nakayama,林碧虹,陈修远,周亭婷,邹晓薇,刘浔风,李凌娜
合作设计院:上海原构设计咨询有限公司
结构机电:建研科技股份有限公司
幕墙顾问:建研科技股份有限公司
剧场及声学顾问:上海网音文化发展有限公司
照明顾问:上海现代建筑装饰环境设计研究院有限公司
甲方:上海题学教育科技有限公司

BIM建筑网


























