在建筑设计与规划中
人,才是主角
房子,是生活的容器
设计,是生活的载体
人生几何与自然共生
建筑是空间的艺术,也是几何的艺术。
中华文明,肇始农耕
手中有粮、心里不慌
一粒稻谷,积蓄天地的灵气
满足雀鸟们的一点食欲
种得心田一蕊香
劳作中享乐,瓜果鱼水相伴
二十四节气晓应天理
触类旁通得灵感创作
智慧和艺术永远是生活的命题
唯有两者结合方可寻梦,塑造灵魂
诗与空间,黄河之水天上来……
让曼妙飘逸的垂纱幻化为装置艺术点出设计的初心
波澜起伏的流动造型宛如黄河入海流滚滚向前
也隐喻着艺术和智慧不断向上永无止境
展品为云南本土艺术家杨伟能油画(精灵系)
同时满足社会精英、艺术界朋友共同交流
艺术展厅的功能引领艺术设计创作
是谁来自山川湖海
却囿于昼夜 ……
厨房与爱
一起围坐餐桌 《菜根谭》
感受到设计师对生活本身的态度
也是厨师对美食的态度
餐厅所传达出来的文明
在饭菜的天长地久里,在一箪食的朝朝暮暮里
空间设计以木质的温润
色调雅致平和为述求
办公区大面积开敞为主
让外界的光与景深入室内贯穿空间
活动工位有效增加企业内部会议及讨论空间需求
自然纯净的原木色,延续企业文化展示
荣誉墙记录着企业砥砺奋进的丰收成就
休闲书吧培养设计师兴趣翻阅考察资料
两座楼空间布局上打造一条中间地带
天井把自然风景光线引进空间
整体错落丰富建筑的层次
偷得浮日半日闲
任风儿吹过云儿飘过
一方美景一盏茶
坐看庭前花开花落
闲观天边云卷云舒
艺术到这里变得需要贴近生活
本质所蕴藏的理性一面载入情感
落地窗外一片树林,鸟儿和松鼠是我们的常客
看尽四季变换,心如风一般自由荡漾
实现工作艺术化,艺术工作化
一方空间 心有所栖
契合精致、稳重的空间需求
注入美学品味的同时富有创造力
爱马仕橙Tiffany蓝
火与水交融、温暖与冷静相触
感官调性同步延伸到每处空间
满足精神慰藉之后
设计才能创造价值
白墙、木色、原生态
光 是空间最好的组成部分
以纯净之态渗透进廊道
光影韵律变幻出肌理漫反射
目光所及,平和、温暖
过渡空间 创建和谐观感
一把躺椅、一张茶几、一杯清茶
全是静谧的优雅
少即是多空间带来的想象和放松
用物质形态去表达思想
煮茶听雨,诗词歌画
修心,冥想,感悟,体验
斯是陋室,惟吾德馨可以谈笑鸿儒
可以调素琴可以阅金经品德茗
设计图纸
△ 一层平面图
△ 二层平面图
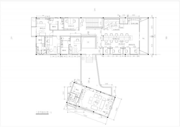
△ 三层平面图
△ 正立面图
△ 背立面图
△ 左立面图
△ 右立面图
项目信息
项目名称:长空创作办公楼
项目地址:云南 昆明
项目面积:1000㎡
设计机构:长空创作
企业官网:https://www.ckcz.cn/
设计主创:张宝华
设计团队:周林华刘思唐 靖旭初 蒋应强 王春艺 李泉江
项目摄影:靖旭初
项目主材:大理石,实木地板,玻璃
设计时间:2018年12月
竣工时间:2020年2月

BIM建筑网






























