深圳正处于城市转型发展的关键时期,为建设国家低碳生态示范市,深圳在光明新区建设绿色生态新城区,创造宜居、宜业、宜人的田园理想城市。
招商局光明科技园位于深圳招商局光明科技园A地块,基地为招商展示中心用地,南侧为停车场,东侧为A3厂房,西侧为得润电子公司,北侧为城市绿地及道路,南北侧景观视线较好。
招商局光明科技园作为凤凰片区的重点项目,们的设计策略是以“生态理念“为核心,拒绝传统整齐的产业研发空间,让人文活动与自然空间相互融合,打造绿色、舒适、新型的高层厂房,与光明新区建设绿色生态新城区的规划设想相匹配。
充分考虑建筑与城市的空间关系,将北侧沿河景观、东侧园区景观引入建筑当中,逐级退台,延续现有景观轴线,将建筑与景观相融合。
建筑形体如雨后春笋般生长,建筑与景观相融相生,层层叠叠的绿化向上攀升,每层退缩都露出郁郁葱葱的景观,让研发、办公人员可以走出建筑,走进绿意盎然、花香鸟鸣的自然办公环境。
传统的单一工厂转变为多元化、重叠的绿色生态新研发,以“生态理念”为核心,植入大量立体绿色,丰富空间使用感受。
深圳招商局光明科技园为产业园区塑造新的标杆,设计出有效的、实用的、促进城市发展的、人与自然共享的城市空间,产业与生态共生,建筑不再破坏环境,让人与自然、生产与自然结合,这将是未来的产业空间模式。
项目图纸
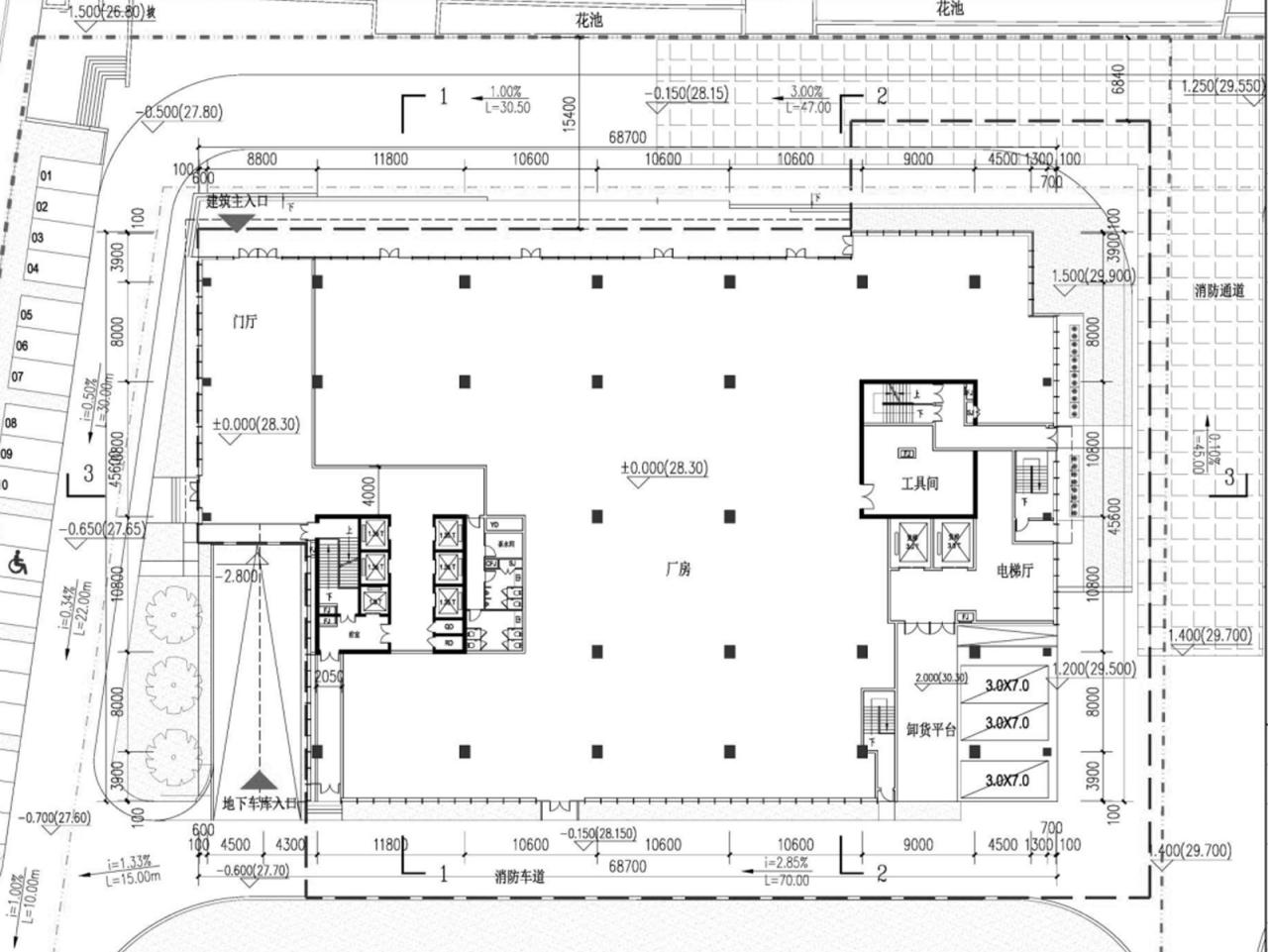
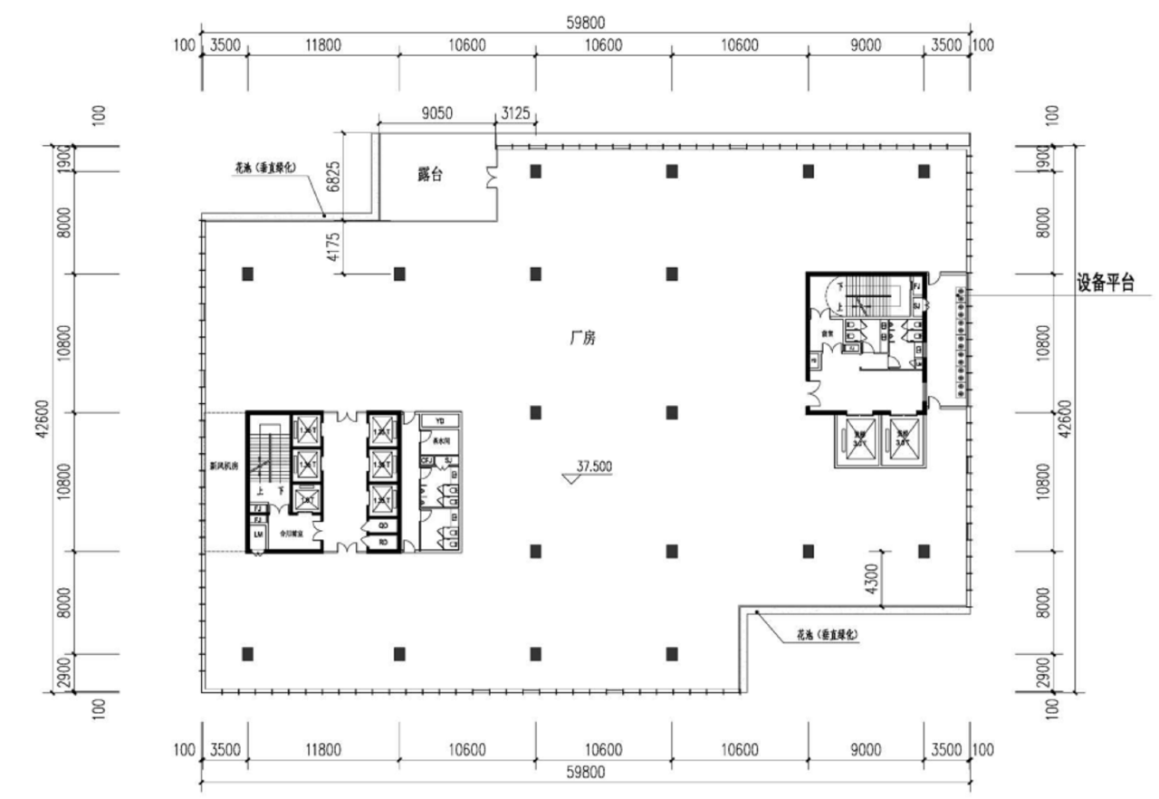
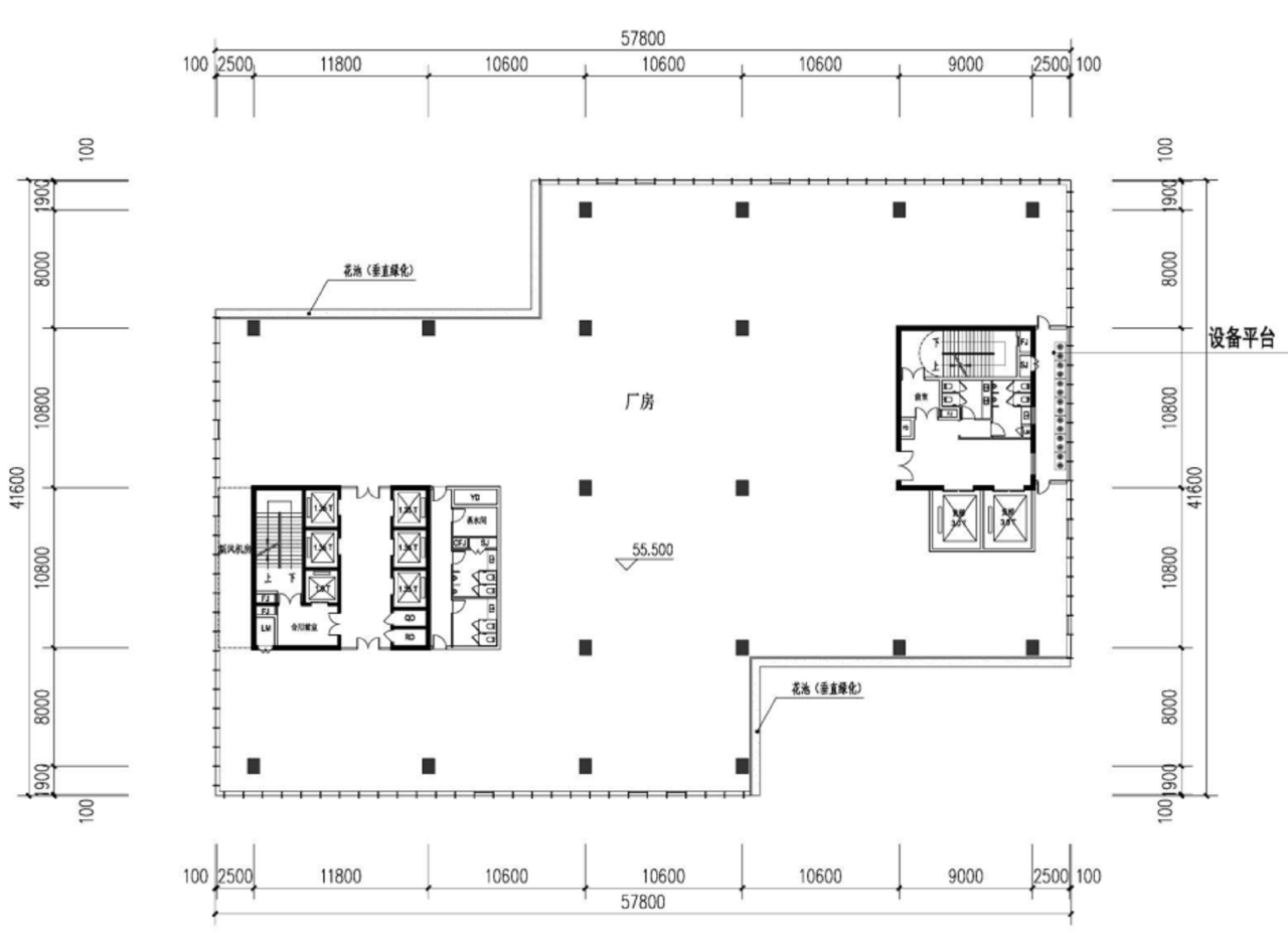
△一层平面图
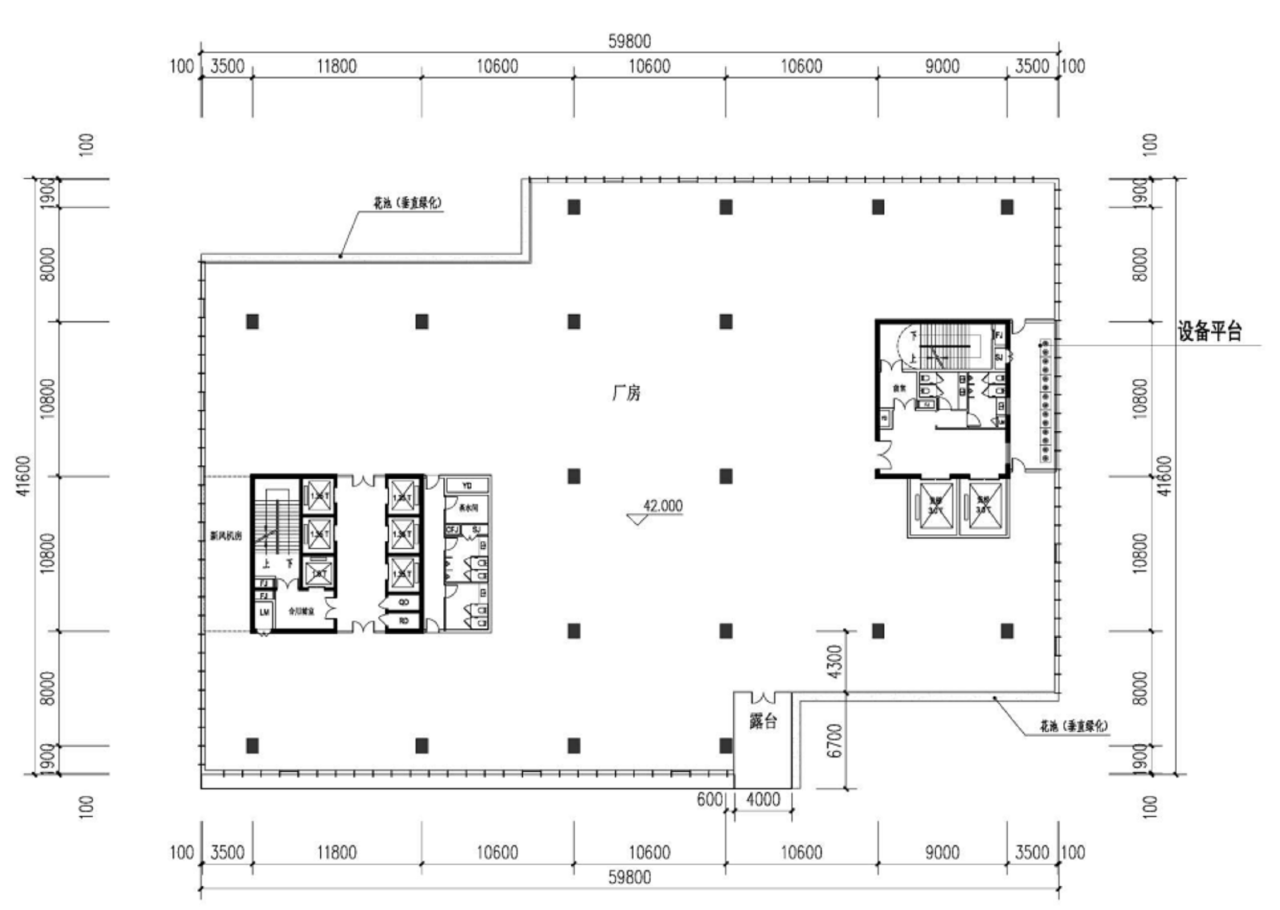
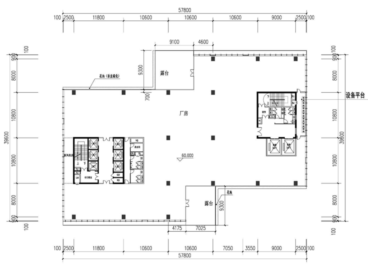
△二层平面图
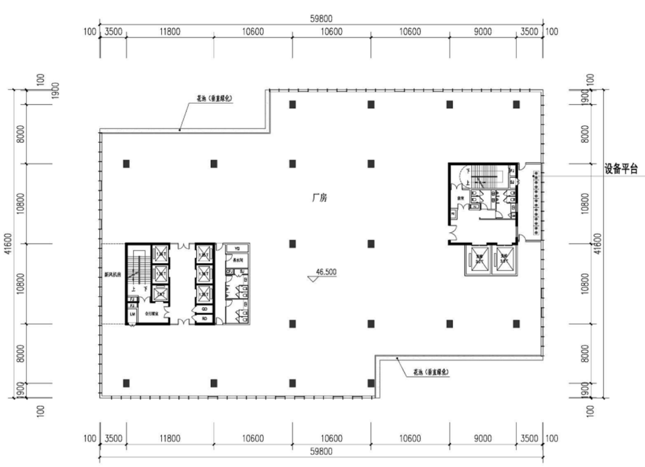
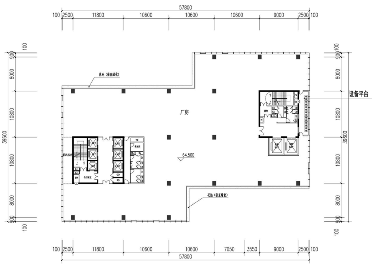
△三层平面图
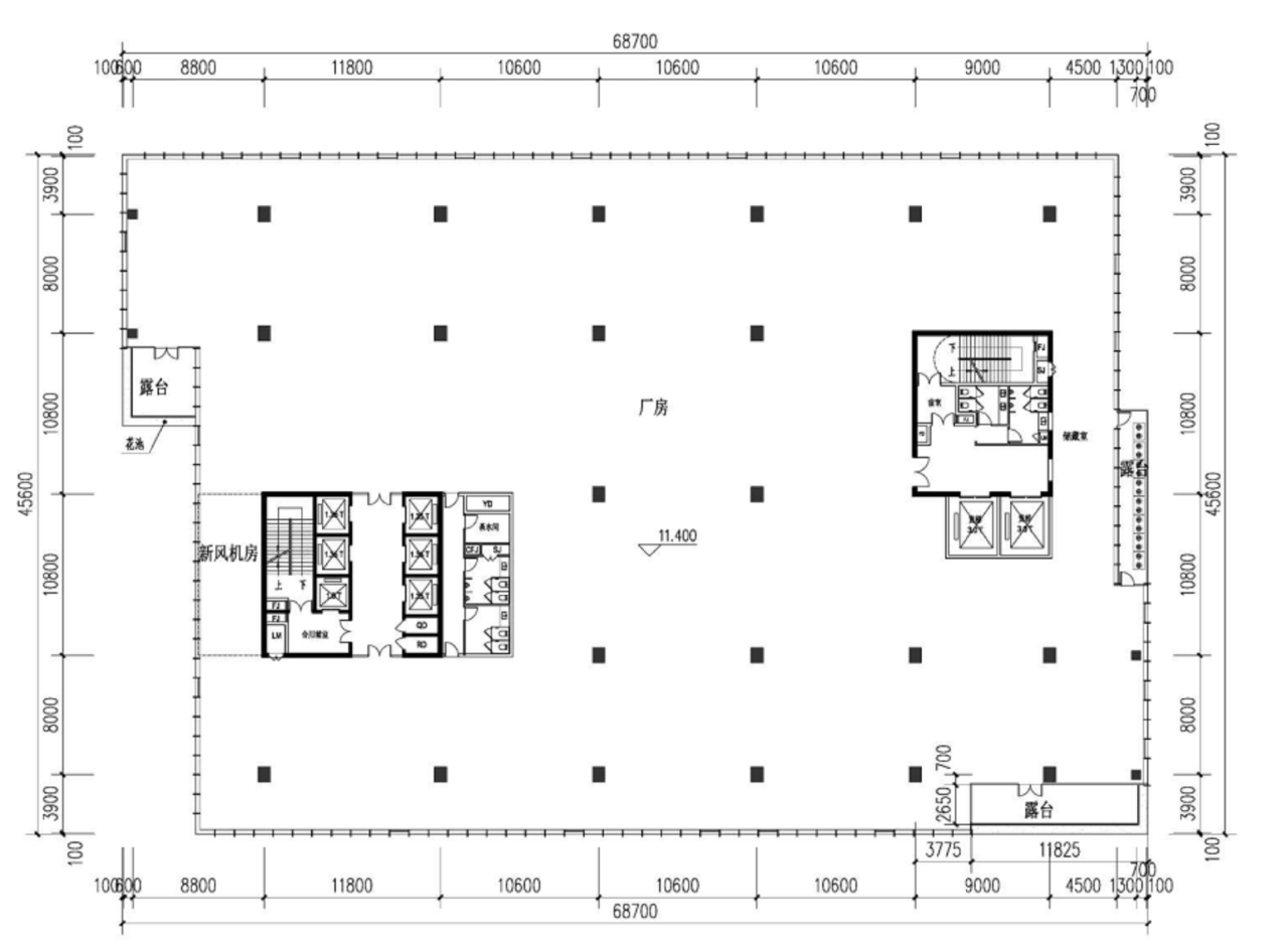
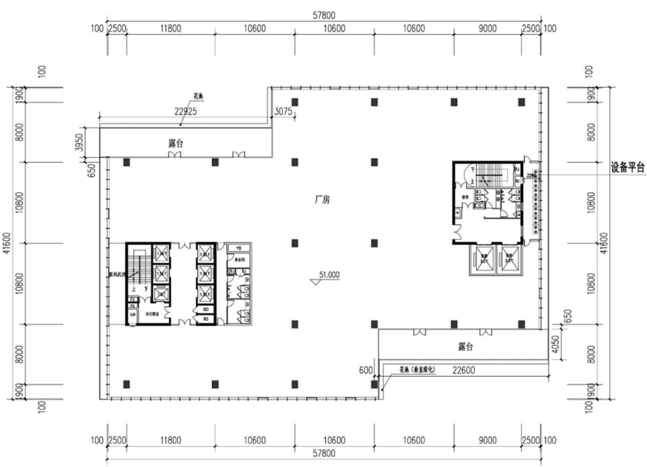
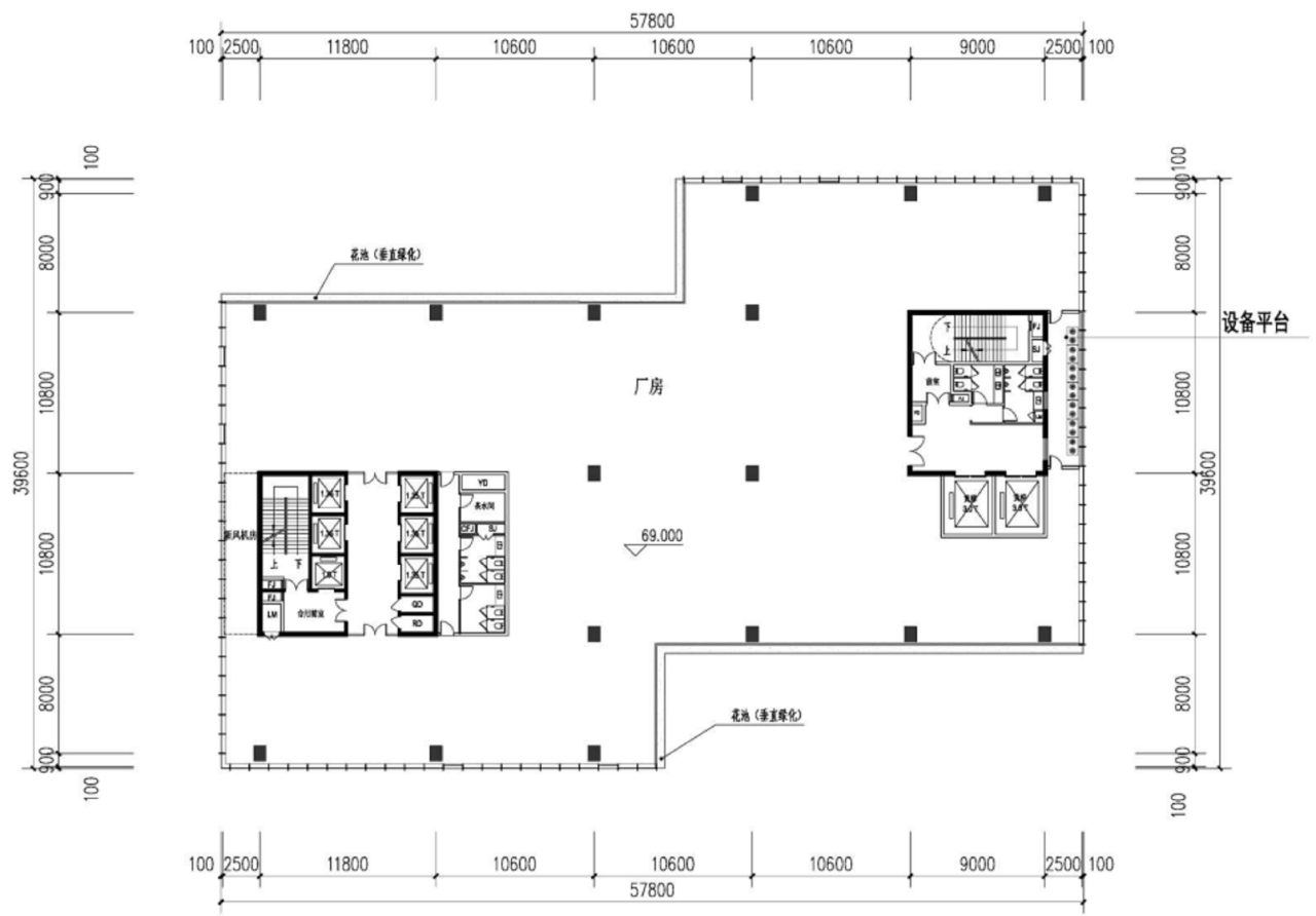
△四层 平面图
△五层平面图
△六层平面图
△七层平面图
△八层平面图
△九层平面图
△十层平面图
△十一层平面图
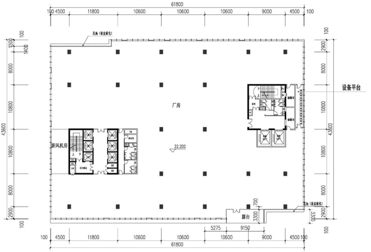
△十二层平面图
△十三层平面图
△十四层平面图
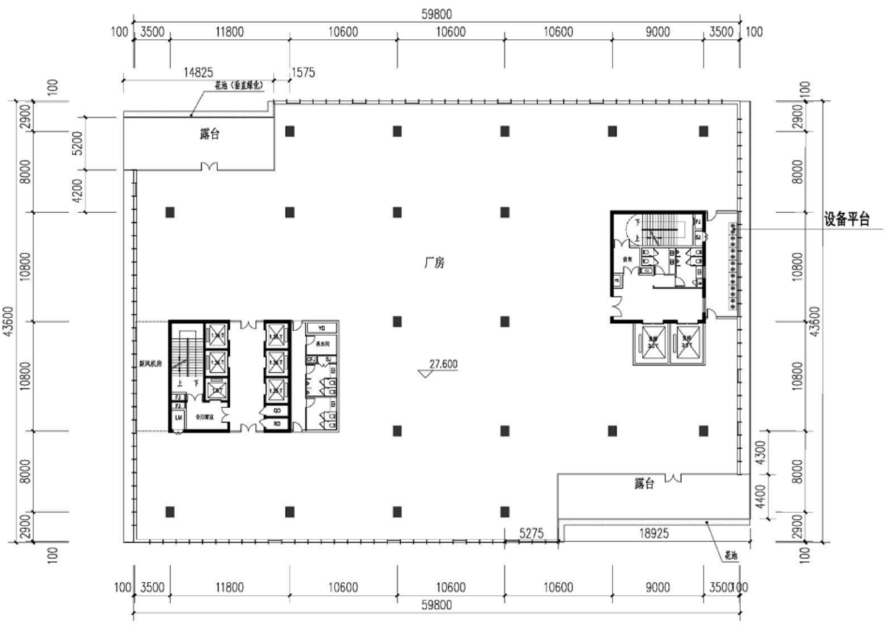
△十五层平面图
△十六层平面图
△屋顶平面图
△立面图
△立面图
△剖面图
△剖面图
项目信息
项目名称:深圳招商局光明科技园
建筑事务所:梵朴(深圳)建筑设计有限公司
是否在建:已建成
建成年份: 2021年7月
建筑面积: 40913.88㎡
项目地址: 深圳
主创建筑师: 王聪
效果图公司: 深圳梵朴建筑设计有限公司
设计团队: 深圳梵朴建筑设计有限公司
委托方: 招商局光明科技园有限公司
结构设计: 深圳市清华苑建筑与规划设计研究有限公司
景观设计: 深圳市奥斯汀生态环境设计建设有限公司
施工方:中国二冶集团有限公司
合作方: 深圳市新山幕墙技术咨询有限公司

BIM建筑网






































