本案的设计概念启发于在现场对围绕着基地的自然环境与山景的一种最直接的感受,与被赋予的感动,基地坐落在新北市新店的山区,面对一片绵延不断的山景。这让人让人沉醉的环境,让我们在这住宅中重新思考生活空间中垂直向度的关系与联结的方式,还有自然如何被引入室内与生活互动的可能性,透过捕捉窗外自然的变化来丰富生活的场所。
三层楼的住宅坐落于山坡地社区的一偶,前后高低差的地势使然,住宅的入口是由建筑的中间第二层延伸到室内。
人与空间互动的动线由路面而来的水平移动到建筑后侧靠近山景的区域开始翻转而垂直阔散的延伸到上下楼层的空间中。
中间层是完全开放的交谊空间,提供居住者使用上最大的自由度,生活的空间与场域紧密的延伸并衔接着窗外的自然。空间顺着一片优雅而柔软的曲墙,垂直蜿蜒往楼下的起居空间以及蔓延到楼上的卧房空间。
这片曲墙是室内的地景呼应着窗外的山景, 是生活的动线,也是建筑的结构,它重新界定着室内的垂直关系,是空间的介面也是收藏自然光景变化的容器。透过映射山峦间最美的山岚起伏以及变幻无穷的光影色泽,在室内创造随时间变色的生活场景。
流动的时间围绕着空间, 将生活, 时间与自然交织在一起。空间中自由流动的人的动线, 创造出生活场景的使用弹性, 借此提供使用者一个可以被重新定义使用的生活场域。
△ 分析图
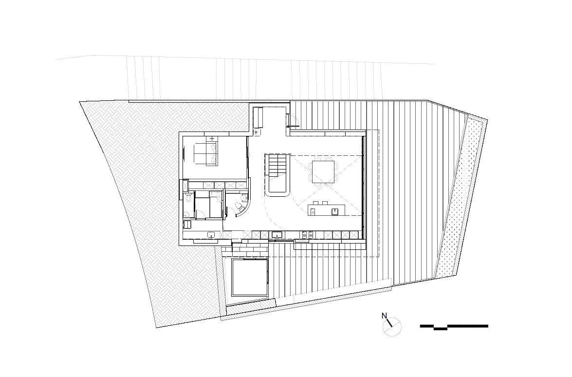
△ 一层平面图
△ 二层平面图
△ 三层平面图
△ 立面图1
△ 立面图2
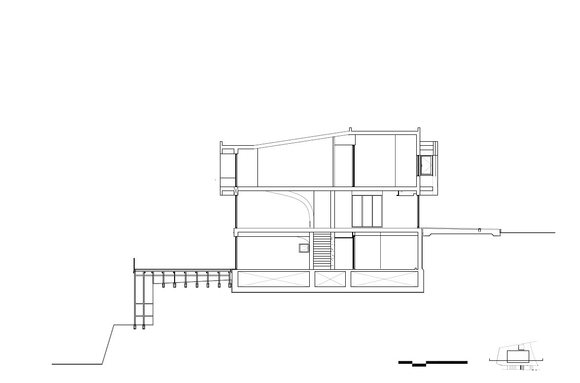
△ 剖面图1
△ 剖面图2
△ 轴测图
项目信息
项目类型:独立住宅
项目地点:中国台湾
设计方:行一建筑
主创建筑师:彭文苑
面积:111m²
项目年份:2019
摄影师:Yi-Hsien Lee and Associates YHLAA
微信公众号:xuebim
关注建筑行业BIM发展、研究建筑新技术,汇集建筑前沿信息!
← 微信扫一扫,关注我们+

BIM建筑网

































