这座红砖住宅由巴塞罗那的Mesura建筑工作室设计,住宅位于西班牙阿里坎特,绵延的曲拱形成了圆齿状的屋顶轮廓。
摄影师Eduardo Iborra Wicksteed和其妻子Belinda请Mesura建筑工作室扩建他们的住宅,取名为“IV住宅”。住宅位于埃尔切市郊的乡村。
该地区的湿热气候促使建筑师设计一座具有拱形屋顶的延展的红砖住宅。屋顶在新休息室、卧室和天井上方绵延伸展,为下方创造了荫蔽。
“原有建筑位于场地中央,保留了未定义的周围环境:低质量的空间和室内外关系的缺失。”建筑师说道。“一个拱形顶篷遮盖下的新空间赋予了这座住宅新的生机。”
屋顶绵延“圆齿”之间设置了宽大的半圆形窗户,红砖墙将自然光引入内部空间。室内材料以裸露的砌筑砖墙,平滑的陶瓷片地板和粉刷成白色的墙面为主。
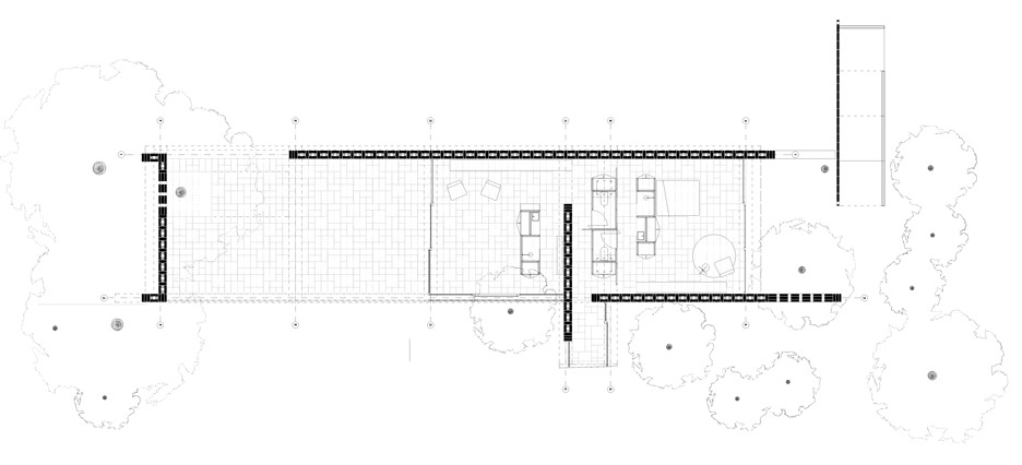
四个拱形下方分别是空间的不同部分。设计致力于通过赋予平面同等的重要性来打破室内外空间的等级次序。
“目的是划分与气候、太阳方位、视线、地形和绿植之间有关系的私密生活空间。”建筑师解释道。
住宅扩建部分尽端带有独立浴室的卧室对着网球场旁的私人庭院。镂空砖墙避免了视线穿过滑动玻璃门侵犯卧室隐私。
在住宅体块的另一侧,装有玻璃的休息室向天井打开,天井内原场地上一棵树被保留了下来,枝杈穿过弯曲屋顶轮廓的间隙向上生长。
浴室体块将建筑体分成了两部分,通过一个狭窄的走廊与原建筑连接。原建筑中包括三个较远的卧室和一个大厨房。
△ 总平面图
△平面图
△概念剖面
△细部剖面
图片摄影:PedroPegenaute
微信公众号:xuebim
关注建筑行业BIM发展、研究建筑新技术,汇集建筑前沿信息!
← 微信扫一扫,关注我们+

BIM建筑网















