佩斯卡多尔14号住宅位于坎昆南部的一处住宅区,项目场地已被毗邻的建筑所限定。从场地上可望见一片独有的绿地,我们希望在不牺牲客户隐私的条件下,从建筑的所有角度捕捉该绿地景观。
住宅被设想为一个在不同区域打孔的坚固体块,在立面、露台、阳台和庭院之间产生错动。
建筑具有向公园打开的轮廓,轮廓下的结构通过灰空间和格架联系起内外空间。在内部,双层高空间被视作两层之间的连贯元素,产生出更强烈的空间感,同时在功能和视觉上联系起两层。
一条同时为东立面提供采光和通风的服务走廊将建筑与场地边界分隔开来。
建筑的材料必须反映该地域的传统。因此,所有的材料颜色都使用了暖色调,天然的和上过色的竹节,木材,水洗混凝土以及石板被用于砌体表面。
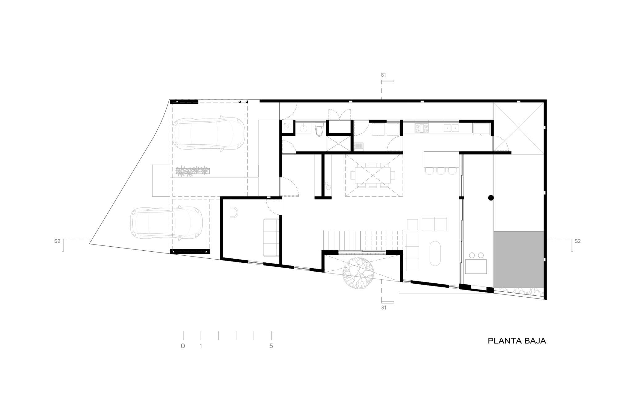
△ 一层平面图
△ 二层平面图
△ 正立面 & 背立面
△ 侧立面
△ 剖面图
△ 剖面图
项目信息
项目类型:独立住宅
项目地点:坎昆,墨西哥
设计方:Franca AdC
面积:2475ft²
年份:2020
摄影师:César Béjar Studio
制造商:AutoDesk,Carpintería Acuario,Interceramic,R+O Canceleria,STRNG,kimikolor
主创建筑师:Viridiana López, Nora Sevilla
设计团队:Viridiana López, Nora Sevilla
微信公众号:xuebim
关注建筑行业BIM发展、研究建筑新技术,汇集建筑前沿信息!
← 微信扫一扫,关注我们+

BIM建筑网

















