这是一个涵盖室内外展厅,以及一个位于卡拉杰郊区的Aptus混凝土砌块制造厂的行政部门的综合设计。
设计过程是通过思考郊区中不同建筑类型之间,主要指工业、农业和劣质住宅结构的长期对峙关系所激发。这种战斗的赢家通常是低档住宅开发,输家是景观和农田,它们通常难逃被拆除,被密集和低质量的建筑所取代的命运。
△ 轴测图
设计标准是创造室内景观与建筑双赢的格局。关于外围开发的另一个问题是提供具有成本效益的建筑方案,同时也要符合最新的标准。考虑到对成本效益的要求,整个建筑内部和外部的装饰层被舍弃,取而代之的是使用公司的混凝土块作为构成整个建筑围护结构的单一材料。
根据最初的设计标准,创造建筑体量的同时形成了外部和内部景观。比起创造一个被绿色植物包围的巨大 "盒子",将体量分解成一个个小盒子,小盒子是相对独立的,并根据它们的功能来确定其特点。在盒子之间创造的空隙形成了渗透到建筑中的绿色空间。
盒子之间的透视形成了室内和室外的层次关系。将建筑材料限制在单一的块体上,增强了外部气氛的感知,并在白天创造了不同质量的自然光。
在Aptus工厂附近还有一些其他的混凝土砌块厂家。这个项目可以为这个城市结构定义一个简单的模式,不仅成本效益高,还能增强建筑环境和绿地之间的关系。
设计图纸
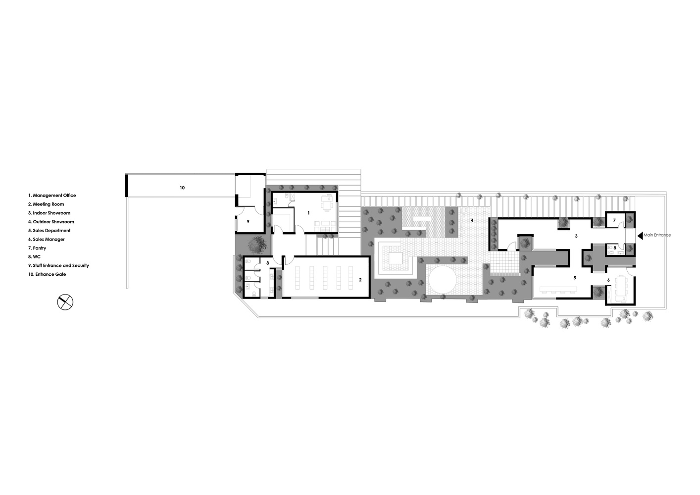
△ 平面图
△ 长剖面
△ 3D剖面图
△ 分析图1
△ 分析图2
△ 分析图3
△ 分析图4
△ 分析图5
△ 分析图6
项目信息
项目类型:展厅
项目地点:KARAJ,伊朗
建筑设计:Hooba Design
面积:320m²
项目年份:2020
摄影师:Parham Taghioff,Mohammad Hassan Ettefagh
主创建筑师:Hooman Balazadeh
设计团队:Hooba Design
项目经理:Saeed Farshbaf
施工经理:Rasool Azhdari
展示:Ehsan Lessani
3 D 渲染:Saeed Farshbaf
客户:Aptus Iran Industrial Complex

BIM建筑网






























