房子的设计是基于业主的愿望:既是一个周末休闲的宁静场所,又是一个充满绿色、光线和绝对隐私的区域。因此,设计团队决定采用分层的方式将房子分成两个部分,既创造了私密性,也优化入口内部的空间。由于很多活动和移动都发生在这个区域,所以每个阳台和每组楼梯都是特别定制的。每层楼之间的不同性,避免了人的重复行走,最大限度地提高了空间利用率。
△ 剖透视图
考虑到在这样快速发展的城市中,房屋屋顶的利用效率不高,以及房屋到公共公园的远距离,设计团队提出为房屋搭配一个 "露台公园 "的想法。家庭成员可以待在家,体验他们的清晨活动,比如做操或在房顶上的树荫下休闲。由于有很多空余的空间,露台公园还可以改造成一个植物园,种植蔬菜和植物以供食用。
阳台部分用红砖压成了大大小小的植物容器。它们以无序排列的方式,让种植实践活动能在屋子的许多地方进行。这样一来,屋子里总是布满了绿色,使人放松并减压。
设计图纸
△ 总平面图
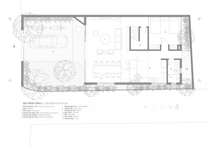
△ 一层平面图
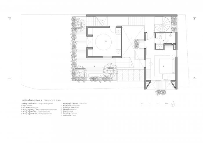
△ 二层平面图
△ 三层平面图
△ 屋顶露台平面图
△ 剖透视图
项目信息
项目类型:独立住宅,别墅室内
项目地点:TÂN THỚI NHẤT,越南
建筑事务所:MDA Architecture
面积:450m²
项目年份:2019
摄影师:Quang Tran
厂家:Adobe,AutoDesk,Eurotile,Gachcoviet,Jotun,Trimble Navigation,VinaLED,Xingfa
设计团队:Vu Ha Anh, Than Tien Hoang
负责人:Vu Van Minh
微信公众号:xuebim
关注建筑行业BIM发展、研究建筑新技术,汇集建筑前沿信息!
← 微信扫一扫,关注我们+

BIM建筑网

























