业主是一位年轻、没有子女,喜爱旅行与现代建筑的企业家。这位客户挑战我们,让我们设计一栋电影住宅——字面意思,因为他带给我们一张用作科幻电影场景的房屋的照片作为参考。我们接受挑战!功能需求十分精简,非同寻常,但是与客户的生活时间成比例,这就给出了项目设计的前提。
定容分析由三个体块相交确定,彼此间互相缠绕并根据阶层创造出空间。由预应力楼板构成的平面显示出建筑的运动,界定安定区域——阳台与美食区的座位,并标记出环绕主体块的步行小道。
金属结构填充了楼板间的连接,创造出维持重要平衡的元素,并转变为藤架,为烧烤区与泳池露台提供阴影。其结果是,正立面同时获得了更加醒目与流畅的特征,整体上产生了轻盈感。
同样的金属元素构成了位于房屋后部被覆盖着的车库空间。房屋整体面向地坪最好、景色最佳的部分,就算是背阳的北立面也是如此。
我们在一层设置了一个多功能室,起居、厨房、家庭影院以及酒窖,通过集成在墙内的滑动面板与阳台连接,营造出100%的开放度。
在上层,是一个大号更衣室与两间浴室的大套间。面朝卧室、由阳光房庇护的露台大平台,充当Goiânia城市天际线的冥想环境。
项目中使用的材料,通过该事务所一种很有特点的语言,协助标记了建筑的平面与体量。版条状混凝土、木板条、粗石料与钢筋制的水泥楼板以及框架中大量的玻璃元素,形成了一种独特、和谐、模仿着它周围的自然环境的构造物。
设计图纸
△ 总平面图
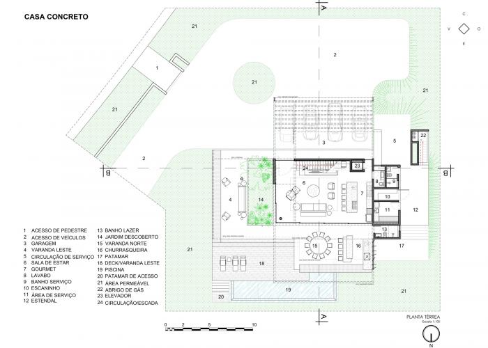
△ 一层平面图
△ 二层平面图
△ 屋顶平面图
△ 剖面图
△ 立面图
项目信息
项目类型:独立住宅
项目地点:CONDOMÍNIO ALTO DA BOA VISTA,巴西
建筑事务所:Costaveras Arquitetos
面积:393m²
项目年份:2020
摄影师:Edgard Cesar
厂家:Aj acabamentos,Aldeia,AutoDesk,Bontempo,FERROARTE ESTRUTURAS METÁLICAS,Gruta Mármores e Granitos,Interpam,Multipedras,SERRALHERIA DIAS,Tabriz,Trimble Navigation,WORD ESQUADRIAS
主创建筑师:Bruno Veras Pinto Cordeiro, Juliano da Cunha Costa
项目团队:Nilo Martins, Lara Alecrim
客户:Rafael Barsch
工程师:Arte Construtora

BIM建筑网



























