这栋位于斯里兰卡郊区的房子是为一对年轻夫妇设计的,他们希望有一个僻静的居所,以在繁忙的工作之余消磨时间。项目预算有限,他们委托Chathurika Kulasinghe在科伦坡郊区的霍坎达拉(Hokandara)设计一栋私人住宅。项目位于街道尽头的死胡同处,因而命名为“死胡同”住宅,其以与相邻街道的弧形转角相匹配的弯曲形式来呼应周边环境。
Chathurika Kulasinghe致力于在整个房子中创造一种积极的空间体验,以回应新奇的场地格局。房子内向的设计使它背对着街道,裸露的砖墙庇护着内部包含起居室和餐厅的花园。平面的庇护部分置于花园两侧,种植着郁郁葱葱的本地植物。
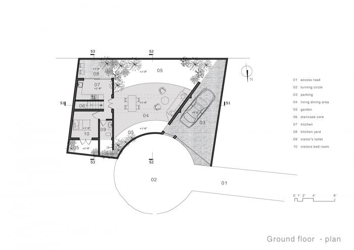
在内部,一层包含一个厨房和一间卧室,两者都邻着户外庭院。楼梯通往带主卧的上层。从这里,居住者可以进入被植物围绕的户外露台,露台漂浮于下方的户外起居空间之上。整个住宅使用的质朴材料与绿植相得益彰,为房子的每个角落带来了生机。
设计图纸
△ 一层平面图
△二层平面图
△剖面图1
△剖面图2&3
△立面图
△草图
项目信息:
项目名称:the ‘cul-de-sac’ residence
建筑事务所:chathurika kulasinghe – architect
项目地点:thalgaswatta road, hokandara, 斯里兰卡
完成年份:2019
结构设计:sarath bandara
原始项目说明:nadia firdous
摄影版权:ramitha watareka photography
微信公众号:xuebim
关注建筑行业BIM发展、研究建筑新技术,汇集建筑前沿信息!
← 微信扫一扫,关注我们+

BIM建筑网


















