该项目位于越南古镇会安市。这座建筑具有优良的自然和文化背景,因为会安以它成百上千年的沿河古老房屋和其周围独特多样的植物群落而闻名。所以我们设计的理念是基于全面渗透和推进该地区本土的自然和文化价值而实现的。具体来说,建筑形态是由对当地植物的印象而演变出来的,与此同时建筑空间是由本土的住宅空间演变而来的。除此之外,我们也非常注重材料使用和空间设计以及形态学的多样性。我们所做的一切都是为了创造一个崭新特殊的房屋建筑,与此同时它也同样适应于当地的气候,融入当地的居住环境。
因为项目投资者经常接待大量的亲朋好友,所以他们要求这个房屋建筑设计不仅仅要保证日常的使用,同时还要有一定的突破和创意,以此让来宾对居住于此留下深刻的印象。围绕着这一特殊要求,我们设定了设计目标。我们除了要满足房主自己的舒适体验,这个建筑也必须显示一些当地建筑的特征,并且在房屋形式上要有一定的突破来营造出宾客良好的印象。
这座房屋位于会安市金城,这片区域拥有大量的椰子树和尼帕棕榈树。尼帕棕榈林冒险是当地的一项重要活动,所以椰子树和尼帕棕榈树也成了当地的一个重要标志。我们利用椰子树和尼帕棕榈树叶子和树干的形态为出发点展开特殊的结构设计。于是基于这一目标的斜柱结构诞生了,特殊的斜柱结构不仅仅创造了强有力的视觉冲击力以使人们留下深刻印象,它还创造出了新的但是熟悉的空间,这样的空间类似于椰子树和棕榈树下的空间。
至于整体的空间布置,我们参考了会安古镇的古老房屋的空间布置形式,利用一些小的花园将相对较长的房屋分割成三个组团,这布置形式将和古人当时的做法一致,它一定程度上将提升光照和通风效果。根据对当地未来走向的预测,该房屋在将来极大可能两侧会有其他毗邻的房屋,所以这一措施既适用于当下也适用于将来,该房屋将会一直拥有对于人类日常生活来说充足的阳光和通风条件。
结构元素以粗糙的混凝土颜色来显示,一些砖墙保留了原始材料,并没有进行额外的抹灰或者涂漆,这样的措施也有利于营造出粗糙感,紧密感以及多种视觉效果。与此同时,室内根据相对简单的趋势进行了设计,以确保既丰富又不会造成混乱的和谐效果。室内和室外空间都安置了许多树木,以此来增加丰富的效果。除此之外,这些树木遮挡了西边的光照并为屋主营造了凉爽生活空间。
入口与户外泳池区:
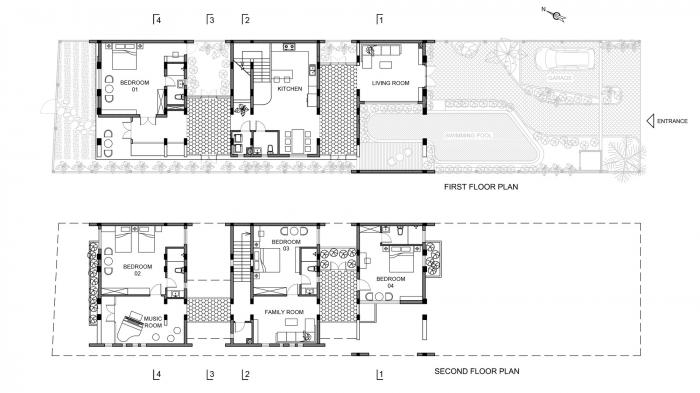
一层:
二层:
树木掩映的西立面:
项目图纸:
▲ 草图
▲总平面图
▲楼层平面图
▲立面图
▲剖面图
项目信息
项目类型:独立住宅
项目地点:会安,越南
建筑事务所:VRA Design
面积:450.0m²
项目年份:2020
摄影师:Ha Phong Dang
厂家:Häfele, Viglacera, Xingfa Aluminium, Philipps
主创建筑师:Duc Vien Le
客户:Khanh An Nguyen & Thi Anh Huynh
项目经理:Minh Tuan Tran, Huynh Quoc Viet Tran
结构设计:Cong Ban Phan, Van Hao Nguyen
电气设计:Van Li Tran
工程师:Van Trung Vo, Thanh Long Nguyen, Van Loc Nguyen
合作方:Duy Du LE, Van Thoi Tran, Van Di Nguyen, Nhan Tran, Duong Cong Quoc Phan

BIM建筑网



































