BF之家位于一块特殊的土地上,位于城市中有山的地带,其地形非常平坦。考虑到这种情况,业主想建一栋单层住宅,并最有效地利用花园的优势。为了保留花园,我们决定建一个地下车库。同时为了欣赏花园景观,房子呈“L”形,花园与房子背面相当大的山地空间相邻。
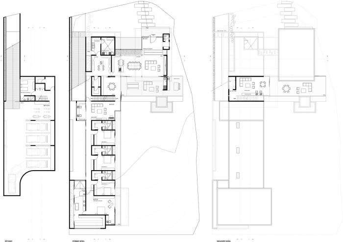
▲ 平面图
主要设计概念是拥有功能和视觉通透性。社交空间是开放布置的,并且相互之间清晰地连接,在其它点则微妙地连接。
卧室被线性布置在“L”形地长边上,临近末端的主卧。位于另一个平面上的是不常用的家庭房,所有它被排除在有活力的日常生活之外。
设计构想是社交区的垂直表面(墙体)是透明的,或者,如果需要保持私密性,它们就被设计成不透明的,那么上部和底部边缘将安装玻璃以保持室内与户外花园,以及室内外空间的延续性。
项目图纸
▲ 立面图1
▲立面图2
▲剖面图
项目信息
项目类型:独立住宅
项目地点:危地马拉
建筑设计:Paz Arquitectura
项目年份:2019
摄影师:Andrés Asturias
制造商:Aluver,Chaos Group,Duravit,Hansgrohe,Nemetschek,Parklex International S.L., Ferco, Adobe, Autodesk, Trimble
主创建筑师:Alejandro Paz
设计团队:Axel Mendoza, Daniel Escobar, Awner Alarcón
微信公众号:xuebim
关注建筑行业BIM发展、研究建筑新技术,汇集建筑前沿信息!
← 微信扫一扫,关注我们+

BIM建筑网




















