MHS住宅位于泰国北部的Mahongsorn省,周围群山环抱。该小型住宅是由ASWA为一对德裔泰国夫妇而设计的。建筑师产生一种想法,即让建筑看起来像场地上的一座雕塑。
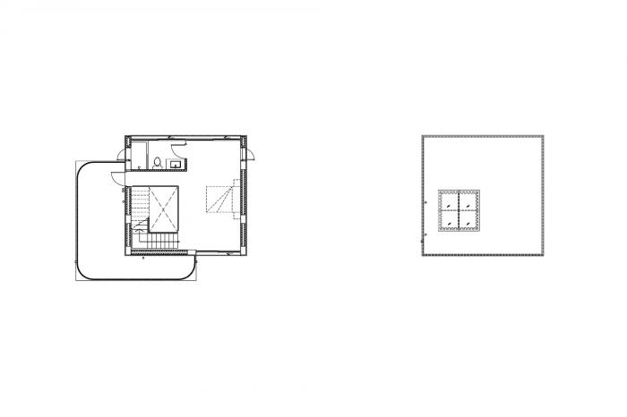
房子由三个相互错位堆叠的混凝土盒子组成。一层是起居室,带有小型食品储藏室和盥洗室。二层是工作室,在与一层重叠的部分创造了一个露台,露台上放置了一只按摩浴缸。
而主卧和主卫位于最上层,通过透明的玻璃窗可以眺望周围的山脉。二层和三层外立面都覆以人造木材,以创造一种温暖轻盈的体量,而一层则采用了石膏水泥墙体,营造房屋地基的厚重感。
三个盒子有着相似的规模,即都是6.6米*6.6米*3.45米,房屋总建筑面积约135平方米。自然通风这栋住宅的能源效率所考虑的主要因素,屋顶使用了太阳能电池板,提供热水电能。
项目图纸
▲ 一层和二层平面图
▲ 三层和屋顶平面图
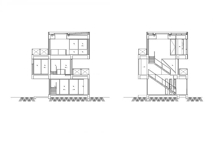
▲ 立面图
▲ 立面图
▲ 剖面图
项目信息
项目类型:独立住宅
项目地点:泰国
建筑事务所:ASWA
面积:135.0m²
项目年份:2018
摄影师:Skyground
厂家:TOA, Thai Asahi, Thaisun
主管建筑师:Phuttipan Aswakool, Chotiros Techamongklapiwat
设计团队:Phuttipan Aswakool, Chotiros Techamongklapiwat
业主:Florian Witulski
结构工程师:S.P.C. design
MEP工程师:Forward Design
微信公众号:xuebim
关注建筑行业BIM发展、研究建筑新技术,汇集建筑前沿信息!
← 微信扫一扫,关注我们+

BIM建筑网


























