初见九华,是个阴天,只见山形清晰,但不巍峨,略失望。忽而云开天晴,才见山外有山,层峦叠嶂,不负“东南第一山”之美誉。
地藏铜像就这样静静的站立在山峰之下,与山、水、村庄一起,经受着岁月的洗礼。唐开元末年,金地藏卓锡九华,1600多年以来,地藏道场声名远播,九华的奇峰峻岭与佛教文化融为一体,独具风格。
摄影:是然建筑摄影
莲花小镇,就坐落在地藏铜像旁。说是小镇,更像一个村落,以自然肌理为脉络,建筑三五成群,形成聚落,既是旅客登山礼佛后的驿站,也可聚三五好友在青山绿水间煮酒夜话。
▲ 分析图
摄影:是然建筑摄影
摄影:是然建筑摄影
摄影:张骑麟
正清和雅禅院是莲花小镇的第一个建筑,也是小镇的村口。“一棵树、一口井、一只打鸣的公鸡”这是中国人脑海中的“村口”画面,也是思乡情愫中强烈的暗示。我们给予小镇的是充分的广场、广阔的水面、一口钟和那棵树。
摄影:是然建筑摄影
摄影:是然建筑摄影
摄影:是然建筑摄影
摄影:是然建筑摄影
建筑并没有选择碎片的方式来消隐在自然之中,而是以完整的形态放置于水面上,似将四时之景纳入院中,又似院中岁月溢出山水天地,空间由人所创,禅境由心而生。
摄影:是然建筑摄影
禅院就以这样一个拙朴姿态展现出来,然后交由漫长的岁月去填补,就像村庄、佛像的出现,是不同时期人类在自然中活动行为的结果,最终又必然与自然融为一体。
建筑的屋顶是一个回旋向上的坡屋面,最高点定义在场地的东南角,同时也解决了局部两层的功能设定。
摄影:是然建筑摄影
▲分析图
完整的屋面之下,功能被进行了切割和完全的拉开,庭院嵌入其间,内外界限随之模糊,院内院外皆为水面,倒影中,可由外见禅院生活,又可由内见山中风雨。
▲分析图
建筑采用两种色调,灰色与木色,灰色在外木色在内,饰面砖以空斗砖墙的形制进行拼贴,其上覆以小青瓦屋面,于乡村的界面中,显拙朴与沉稳。
摄影:是然建筑摄影
摄影:张骑麟
摄影:张骑麟
内(BIM工程师)院则采用大量的木色铝板和玻璃,在阳光的作用下格外温暖。内外的材质在檐口之下进行过渡,吊顶的木色延伸至室外,倒影于水中,灰砖则转入走廊及小院四周,流动与延伸是空间的主题。
摄影:是(BIM教程)然建筑摄影
摄影:是然建筑摄影
小院的打磨依靠工人的智慧,陡峭的屋面可以更好的营造光影,但对于固定小青瓦是个不小的挑战,天井采用进口菠萝格原木,打造徽居中典型的四水归堂,建造过程,仿佛是一场古今的对话。
摄影:是然建筑摄影
摄影:是然建筑摄影
摄影:是然建筑摄影
建筑的基本功能是一个酒店,房间设置在南面及东面,可望山敬佛。二层的部分,将房间横向布置,从而产生了一条内走道,天窗也自然而然出现,顶部的采光延伸到楼梯的位置,形成方形矩形若干窗井,随着光线的变化,这是一个意外生动的空间。
摄影:是然建筑摄影
摄影:是然建筑摄影
摄影:是然建筑摄影
摄影:是然建筑摄影
摄影:是然建筑摄影
结语
建筑给予场所、使用者去定义功能。正清和雅禅院,取自于中国禅和茶的文化,空间的创作在高度、广度上给予足够的尺度,将自然山水人文穿插进建筑,而放松生活状态的停留或是感悟禅理哲学的升华,则交由不同的使用者去体验,小镇的意义也正在于此。
摄影:是然建筑摄影
项目图纸
▲一层平面图
▲二层平面图
▲南立面图
▲西立面图
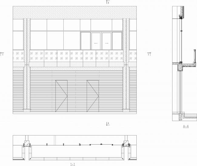
▲节点大样
▲入口节点大样
▲天窗节点大样
项目信息
项目名称:正清和雅·禅院
项目位置:中国安徽·池州·九华山
项目性质:酒店
业主单位:当代置业(安徽)
业主团队:涂礼军,魏世兴,王起,盛进
建筑设计:上海日清建筑设计有限公司
设计总负责:宋照青熊星
设计团队:林琼华 魏一鸣 王军 章志武
建筑施工图设计:安徽地平线建筑设计有限公司
景观设计:广州山水比德景观设计有限公司
室内设计:PAL设计事务所
软装设计:HDESIGN(旋木尚艺)
建筑面积:2850㎡
竣工时间:2019.5
建筑摄影:是然建筑摄影Schran Images; 张骑麟

BIM建筑网




































