这是一栋居住办公相结合的建筑项目。坐落于优(BIM培训)美的自然景观之中,该环境入选了日本百大樱花景点,建筑的外部采用了自然石材作为地基,融入周边自然环境。
为了反应独特的、偏爱自然材质的日式审美,设计强化了内部平坦与空白的空间。因为内部空间和外部世界的分界线是模糊的,连接之处和深度的重要性从而得以体现,这导致了高质量的居住和工作环境,这增强了一种延绵的印象。
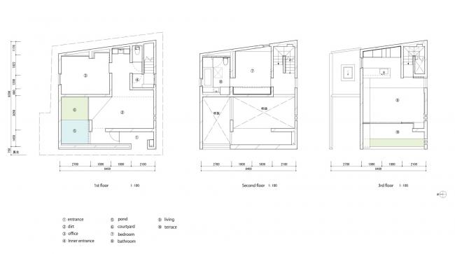
Doma 指的是一层中一块可供人们穿鞋踩上去的铺砖的区域,有一个双层高度的天花板并且向内开放朝向私人庭院,以及一处可以在植被上体现微妙季节变化,利用水声提升时间存在感的水景。随着高度上升,空间也变得越来越向外界开放,为用户们与自然同步并且置身周边景观提供了机会。
我强烈希望这座居住办公集合体能够再一次将我们与祖先代代传下的自然智慧与(BIM工程师)精神文化相连接,同时也能悄悄地反思我的生命。
▲ 平面图
项目信息
设计方:GOSIZE
地址:Nishinomiya,日本
类别:独立住宅
建筑面积:61.0 m2
项目年份:2018
摄影师:Nacasa & Partners,Akiyoshi Fukuzawa
厂家:Hunter Douglas, Grohe, Vola, Flos, ModuleX
微信公众号:xuebim
关注建筑行业BIM发展、研究建筑新技术,汇集建筑前沿信息!
← 微信扫一扫,关注我们+

BIM建筑网





















