头顿(Vung Tau)是一个旅游城市,地理位置优越,位于越南东南地区中最发达的城区,旅游业和服务业蓬勃发展。为了在这一个年轻而充满活力的市场中保持竞争力,业主希望H2能够在9 HoQuy Ly, Thang Tam ward, Vung Tau city, Ba Ria – Vung Tau province 这一块约100平方米的土地上同时解决经济,功能和美学问题。
第一个要解决的问题是经济方面上的。在确保每个房间的面积和功能的前提下,有条理地、整洁地分配和利用每个空间。由于当地对层高和楼层数的限制,我们在建筑的前部使用阁楼来增加房间空间,在建筑的后部采用多种层高的设计来增加层数。
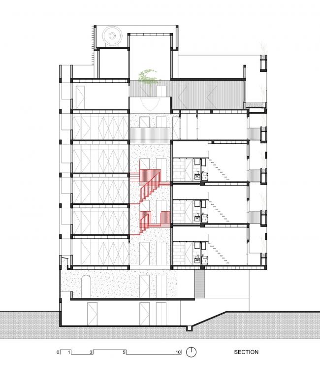
第二个要解决的问题是功能方面上的。地下室用于停车和放(BIM建筑)置设备。首层是门厅和公共设施。第二层到第五层是出租房间:建筑前部空间是厕所,厨房,客厅和工作室与卧室一体的小型房间;后部空间是普通的出租房,一个可以灵活打开关闭的帘子分隔了客厅和卧室,厨房和卫生间也布置得很漂亮整洁。
建筑前部空间和后部空间拥有不同种类的房型也是十分经济的。顶层6层是一整套豪华公寓,有客厅,厨房,两间卧室和两间厕所。客厅和厨房相连,提供了更宽敞的空间,住户能够看到前面和天井的景色。我们使用衣柜和书柜来优化空间。
所有的房间都通过建筑中心的楼梯和电梯相连接,太阳光和风可以通过天井进入建筑。天井中有铁楼梯连接(BIM学习)小型房间和普通出租房,这个楼梯的尽头是顶层公寓的悬挂的绿色盆栽。建筑的前部还有配备了木百叶窗的阳台,在保温,通风的同时,也提供了休闲的绿色空间。
第三个要解决的问题是美学方面上的。我们在建筑物正立面的设计了一个种树的大空间,保护住户的室外空间的隐私。顶层公寓使用了混凝土天花板和木墙。门厅的设计采用了木材和水磨石台阶,使整个空间更加和谐舒适。其他室内材料使用了天然木材和白色或橡木贴面的HDF来让室内更加温暖和明亮。从建筑的前部和后部空间我们都能够享受到城市的景色。
设计图纸:
▲地下一层平面图
▲一层平面图
▲二层平面图
▲三~五层平面图
▲六层平面图
▲七层平面图
▲屋顶平面图
▲屋顶
▲立面图
▲剖面图
▲细部图
项目信息:
建筑师:H2
地址:Thành phố Vũng Tàu,越南
类别:独立住宅
主创建筑师:Tran Van Huynh, Le Hoang Tam, Nguyen Thi Xuan Hai, Do Trong Nhan Kiet, Nguyễn Đức Khánh
建设面积:100.0 m2
项目年份:2018
摄影师:Quang Dam
厂家:Toto, Philip, TAICERA
建造商:Mr Dũng
铁艺:Mr Thanh
室内木结构:H2
合作方:Mr Tien
业主:Mr Thanh

BIM建筑网





























