这所位于塔尔卡中央山谷附近的住宅几乎是如何在拉丁美洲实现结构体系的典范。
设计和建造过程很不稳定,基地定位在一个几乎不可能实现的陡坡上,同时预算有限制,一个非常基本的网格配置进化到更多方面的成果:简单而又复杂。
其现代金属质感的建筑框架被洋溢着暖色调的木材和玻璃幕墙包覆着,不仅是对周围环境的一种修饰,同时还将壮观的景观囊括进来。
屋顶为前卫的平顶设计,以承载一个屋顶花园。该住宅通过脚柱折成着非常安全的屹立于智利中央大峡谷陡峭的山坡上。
另外,自然通风通过开放的玻璃天井和外立面使得规定的温度处于一个被动的模式。意外的是,几何数据与附近的丘陵地形几乎吻合。
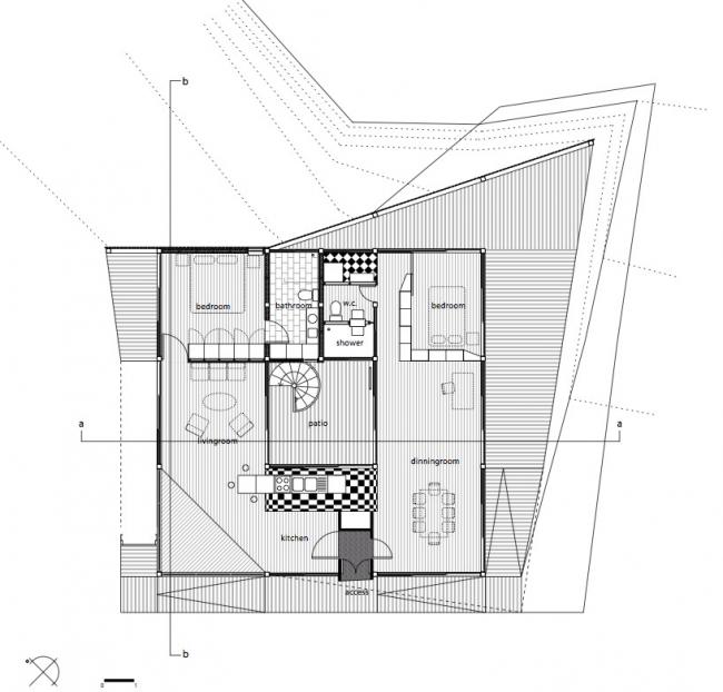
除了要求技术问题,项目的空间组织是这样的——它从来不是确定的——在一个院子里的开放空间里,这里有厨房可以随意布置,也可以变换成餐厅客厅或任何其他实例。一个更稳定的空间是主卧,这里有私人浴室和阳台,可以享受在清晨和深夜的美景。另外,一个可选的工作室或客房在的(BIM建筑)另一方是“公共”淋浴、厕所和洗衣设施。所有空间不到104平方米,不过所有空格在外部或内部相互连接:一个连续没有死角的步行系统整合了所有的空间品质和良好的景观,更不用说5分钟就可以到城市了。
在设计修建的过程中,包括方案、外墙、建筑许可证、施工商等一切因素都处于不断的变化改进中。它是基于不断的错误尝试而来的,而不是确定的方案。
最终这个前卫设计就像是杂交的产物一样,这在智利语言中被称为“Kiltro”。
设计图纸:
一层平面图
二层平面图
屋顶平面图
剖面图
剖面图
轴测图
屋面结构分析图
概念演变图
功能分析图
因素分析图
项目信息:
建筑师:Juan Pablo Corvalán, Gabriel Vergara
地址:塔尔卡,智利
类别:独立住宅
项目团队:Pablo Sepúlveda, Miguel Angel Reyes
工程师:Cesar Moreira / Sigma Ingenieros
预算:U$80,000
建筑面积:104.0 m2
项目年份:2008
摄影师:Cristobal Palma / Estudio Palma

BIM建筑网
































