BIM建筑网
更专业的BIM技术学习网站!


装配式|走进信达泰禾·金尊府项目,领略装配式建造风采!

编者按:日前,全国住房和城乡建设工作会议提出了十项重点任务,其中第八条再次提装配式住宅到要大力发展钢结构等装配式建筑。这无疑为装配式建筑发展增强了信心和动力。最近,深圳信达泰禾·金尊府装配式住宅项目在朋友圈狂刷屏,经小编综合整理,现带大家一同去领略它的装配式建造风采!

项目概况

信达·泰禾金尊府项目位于深圳坪山区锦龙大道与同裕路交汇处,该项目采用国内先进的PC构件工艺(混凝土预制件),系深圳坪山区首个住宅类型的装配式建筑。项目用地面积36911.51㎡,总建筑面积为236147.46㎡,其中计容建筑面积166101㎡(含45000㎡保障房),容积率为4.56,包括:9栋高层建筑、1栋幼儿园、2层地下室、沿街商业及配套用房。

装配式|走进信达泰禾·金尊府项目,领略装配式建造风采!

该项目采用国内先进的PC构件工艺(混凝土预制件),每个标准层37块预制构件,其中预制外墙板15块、预制楼梯2跑、预制叠合板20块,预制率16.10%,装配率59.27%,开启了深圳市装配式建筑发一体化装修展的序章。

装配式|走进信达泰禾·金尊府项目,领略装配式建造风采!

建设单位:

深圳信润房地产开发有限公司

设计单位:

深圳市华阳国际工程设计股份有限公司

施工总承包单位:

中建三局第三建设工程有限责任公司(一标段)

中国建筑第二工程局有限公司(二标段)

构件生产单位:

广州永万预制构件有限公司(一标段)

远大住宅工业集团股份有限公司(二标段)

监理单位:

深圳合创建设工程顾问有限公司

风采1:标准化与一体化

1.户型模块标准化

项目商品房户型平面设计采用五种标准户型,分别为90A户型、90B户型、110A户型、110B户型、140A户型。保障房户型平面设计采用二种标准户型,分别为70户型、80户型。户型平面规整,采用统一模数协调尺寸,符合现行国家标准《建筑模数协调标准》GB/T50002-2013的要求;结构主要墙体保证规整对齐,使结构更加合理,同时减少PC构件转折。

装配式|走进信达泰禾·金尊府项目,领略装配式建造风采!

装配式|走进信达泰禾·金尊府项目,领略装配式建造风采!

装配式|走进信达泰禾·金尊府项目,领略装配式建造风采!

2.预制构件标准化

本项目共使用26种外墙构件(15对镜像),5种阳台构件(1对镜像),使用3种楼梯构件,对应3种标准核心筒。在为户型设计和施工周期服务的前提下,将模具的周转次数做到了最大。

装配式|走进信达泰禾·金尊府项目,领略装配式建造风采!

3.机电设计一体化

该项目机电设备管线系统采用集中布置,管线及点位预留、预埋到位:预制外墙预留预埋线盒、设备管线、空调留洞等;预制楼板预留电气线盒,预制叠合阳台预埋线盒、预留立管留洞、地漏等。

对管线相对集中、交叉、密集的部位,比如强弱电井、表箱、集水器等进行管线综合,减少平面交叉;竖向管线集中布置,并满足维修更换的要求。

装配式|走进信达泰禾·金尊府项目,领略装配式建造风采!

4.装饰装修一体化

本项目外墙饰面为面为铝板装饰或涂料,实现外围护墙、外饰面、防水、保温一体化设计。

门窗系统采用性能更高的成品系统,采用工厂生产、现场干法安装的施工方式。

预制楼梯预留预埋栏杆扶手配套埋件、预制防滑条建筑功能;预制阳台预留预埋栏杆扶手配套埋件、预埋板底线盒、预留防水套管、立管、地漏等内容。

各户型采用相同的装修方式、材料、部件,协调好建筑、结构、强弱电、供排水、燃气及室内装饰装修设计,实现各专业之间的有序、合理同步进行,减少后期返工,从而达到节约成本,节省工期,保护环境的目的。

全面家居解决方案设计,最大化利用室内面积,提高空间效率,实现造型与户型的完美统一,提升家居舒适度。厨房设计精细化,实现吊柜、洗菜盆,实现空间利用最大化。

装配式|走进信达泰禾·金尊府项目,领略装配式建造风采!

风采2:装配式建筑技术运用

本项目按7度抗震设防,设计地震分组为第一组,设计基本地震加速度值为0.10g,特征周期为0.35,高层住宅及高层保障房采用剪力墙结构体系。高层住宅标准层预制构件采用非承重预制外墙板(含凸窗)、预制楼梯、预制叠合楼板;高层保障房标准层预制构件采用非承重预制外墙板(含凸窗)、预制楼梯、预制阳台、预制叠合楼板。

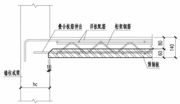
1.预制楼板

本项目1栋3~30层,2栋、3栋A座、3栋B座4~31层,4栋A座、4栋B座、4栋C座、5栋A座4~32层,5栋B座4~34层部分房间等位置采用预制叠合楼板

叠合板预制板厚度为60mm,现浇层厚度为80mm;

根据机电专业要求,预制板上设置预埋线盒,电气专业在叠合层内进行预埋管线布线,保证叠合层内预埋电管布线的合理性及施工质量;

2.预制阳台

5栋B座高层保障房3~34层采用了预制梁式叠合阳台;

预制阳台悬挑梁及封边梁为全预制,楼板为叠合,预制厚度60mm,现浇厚度为70mm。

装配式|走进信达泰禾·金尊府项目,领略装配式建造风采!

3.预制外墙板(凸窗)

本项目各栋标准层厅房凸窗采用预制外墙板(其它外墙采用混凝土结构),以解决复杂墙体施工问题、减少门窗渗漏,凸窗顶部与梁叠合现浇,侧面与剪力墙构造连接,底部与反梁或反坎构造连接,预制外墙接缝采用MS密封胶防水密封。预制外墙洞口内预埋钢副框,实现铝合金门窗干法安装。

装配式|走进信达泰禾·金尊府项目,领略装配式建造风采!

4.预制楼梯

本项目创新性采用梁板式预制楼梯板,比传统板式预制楼梯构件自重减轻20%,更便于现场施工及吊装。预制楼梯上端采用2个插筋固定,下端设计为铰支端。

装配式|走进信达泰禾·金尊府项目,领略装配式建造风采!

PC构件在工厂里加工,又快又环保,只需塔吊轻轻一吊就成形了。该项目为了能有效保护叠合楼板及控制漏浆情况,亦采用叠合板与现浇结构相结合,铝模板面上嵌入橡胶条,搭接处粘贴双面胶,连接为柔性连接。

装配式|走进信达泰禾·金尊府项目,领略装配式建造风采!

叠合板与现浇外墙连接接点

装配式|走进信达泰禾·金尊府项目,领略装配式建造风采!

叠合板与叠合板之间连接接点

装配式|走进信达泰禾·金尊府项目,领略装配式建造风采!

叠合板与铝模体系加固图

5.铝合金模板施工

本项目外墙全部采用混凝土结构(部分为PC预制外墙),通过PC预制外墙构件与现浇承重结构结合,形成装配式建筑骨架,为了保证PC外墙构件与现浇铝模体系结合紧密又漂亮,施工前对它们结合节点进行深化设计。

装配式|走进信达泰禾·金尊府项目,领略装配式建造风采!

不仅结构更加坚固,而且全面取消墙面抹灰,门窗采用干法施工,彻底解决了传统砌筑抹灰造成的外墙渗漏、空鼓、开裂等质量通病问题。取消外墙砌筑抹灰,也减少了建筑垃圾的排放。用可回收的铝合金模板全面代替木模,一方面节约了木材资源,另一方面成型的混凝土精度可达到3mm,墙面可直接进行装饰面层施工。

装配式|走进信达泰禾·金尊府项目,领略装配式建造风采!

PC外墙与现浇外墙结合平面图

装配式|走进信达泰禾·金尊府项目,领略装配式建造风采!

PC结构与现浇结构铝模加固节点图

6.机电工业化体系和BIM应用

本项目通过管线预制、成品支架、综合管线布置、设备房标准定型化等技术措施,建立完整的机电工业化体系。

装配式|走进信达泰禾·金尊府项目,领略装配式建造风采!

同时结合BIM进行深化设计、施工模拟等技术应用,将各专业设计与施工进行融会贯通,减少设计的错漏碰缺,提前发现施工难点,制定完善的施工措施,从而达到提高质量和效率的效果。

装配式|走进信达泰禾·金尊府项目,领略装配式建造风采!

7.无附墙爬架体系

本项目项目在外墙取消砌筑抹灰基础上采用自升式外爬架技术,整体装配式外爬架直接与建筑主体连接,架体随着主体结构进度采用机械提升,爬架采用金属网全封闭维护结构,让安全更加有保障。

装配式|走进信达泰禾·金尊府项目,领略装配式建造风采!

主体封顶,外爬架在上部直接用塔吊拆除。在主体施工期间下部室内外装饰装修、室外管网和园建工程可同步进行,可缩短建造工期3-6个月。

装配式|走进信达泰禾·金尊府项目,领略装配式建造风采!

装配式建筑标准层施工工序流程

风采3:装配式建筑标准层施工工序流程

通过BIM软件创建结构、建筑、爬架等三维信息模型,运用施工模拟从吊装预制外墙板、墙柱钢筋绑扎、铝合金墙柱模板拼装、搭设楼板满堂支撑架、非叠合楼板梁板模板拼装、预制叠合楼板拼装、现浇梁板钢筋绑扎、楼板浇筑混凝土、安装预制楼梯,完成后楼梯上端灌浆、外墙板打胶等10个施工工序进行施工模拟,对施工过程进行全过程的施工模拟、全方位的施工指导。

一、吊装预制外墙板

1.放线在楼板上根据定位轴线,放出预制外墙的定位边线;

装配式|走进信达泰禾·金尊府项目,领略装配式建造风采!

2.抄平,将螺栓拧至下层预制构件的预埋套筒内,并将标高调至相应标高;

装配式|走进信达泰禾·金尊府项目,领略装配式建造风采!

3.安装斜支撑,调整墙体垂直度,直至符合设计要求;

装配式|走进信达泰禾·金尊府项目,领略装配式建造风采!

4.矫正墙体定位和垂直度,脱开吊钩;

装配式|走进信达泰禾·金尊府项目,领略装配式建造风采!

5.继续按顺序安装其他墙板。

二、墙柱钢筋绑扎

装配式|走进信达泰禾·金尊府项目,领略装配式建造风采!

三、铝合金墙柱模板拼装

四、搭设模板支撑架

装配式|走进信达泰禾·金尊府项目,领略装配式建造风采!

五、梁板铝模拼装

装配式|走进信达泰禾·金尊府项目,领略装配式建造风采!

六、预制叠合楼板拼装

装配式|走进信达泰禾·金尊府项目,领略装配式建造风采!

装配式|走进信达泰禾·金尊府项目,领略装配式建造风采!

七、整体钢筋绑扎

装配式|走进信达泰禾·金尊府项目,领略装配式建造风采!

八、浇筑混凝土

装配式|走进信达泰禾·金尊府项目,领略装配式建造风采!

九、外墙板打胶

装配式|走进信达泰禾·金尊府项目,领略装配式建造风采!

十、安装预制楼梯。

放线,根据定位轴线放出预制楼梯梯段定位,预制楼梯上端注浆。

装配式|走进信达泰禾·金尊府项目,领略装配式建造风采!

风采4:新技术运用后凸显的优势

PC构件施工

装配式|走进信达泰禾·金尊府项目,领略装配式建造风采!

这些PC构件真是又帅又靓。

PC构件在工厂里加工,又快又环保,只需塔吊轻轻一吊就成形了。

装配式|走进信达泰禾·金尊府项目,领略装配式建造风采!

PC外墙构件与铝模组合

PC外墙构件与现浇承重结构结合,这是装配式建筑骨架,为了保证PC外墙构件与现浇铝模体系结合紧密又漂亮,施工前对它们结合节点进行深化设计。

装配式|走进信达泰禾·金尊府项目,领略装配式建造风采!

PC外墙与现浇外墙结合平面图

装配式|走进信达泰禾·金尊府项目,领略装配式建造风采!

PC结构与现浇结构铝模加固节点图

叠合板与现浇结构结合

铝模板面上嵌入橡胶条,搭接处粘贴双面胶,连接为柔性连接,能有效保护叠合楼板及控制漏浆情况。

装配式|走进信达泰禾·金尊府项目,领略装配式建造风采!

叠合板与现浇外墙连接接点

装配式|走进信达泰禾·金尊府项目,领略装配式建造风采!

叠合板与叠合板之间连接接点

装配式|走进信达泰禾·金尊府项目,领略装配式建造风采!

叠合板与铝模体系加固图

无附墙爬架体系施工技术

在有预制外墙位置设置爬架附着,是装配式建筑一个难题,因为预制外墙为非承重墙,爬架附墙件不能直接附着在预制外墙上。因此项目设计了一个神器,将爬架附墙件附着在楼板结构上。

装配式|走进信达泰禾·金尊府项目,领略装配式建造风采!

PC外墙处爬架挂点设计图

BIM模拟指导现场施工技术

通过BIM软件创建结构、建筑、爬架等三维信息模型,运用施工模拟从吊装预制外墙板、墙柱钢筋绑扎、铝合金墙柱模板拼装、搭设楼板满堂支撑架、非叠合楼板梁板模板拼装、预制叠合楼板拼装、现浇梁板钢筋绑扎、楼板浇筑混凝土、安装预制楼梯,完成后楼梯上端灌浆、外墙板打胶等10个施工工序进行施工模拟,对施工过程进行全过程的施工模拟、全方位的施工指导。

装配式|走进信达泰禾·金尊府项目,领略装配式建造风采!

施工模拟

那么这些新技术是如何体现精益建造理念的?在项目策划阶段,在铝合金模板深化设计时,综合考虑门窗压槽、剪力墙上水电管线压槽、门窗企口、飘板滴水线、门洞过梁、反坎、构造柱、电梯井隔墙等部位进行优化,减免现浇剪力墙二次抹灰。

装配式|走进信达泰禾·金尊府项目,领略装配式建造风采!

现浇剪力墙免抹灰

在主体结构施工同时穿插铝合金外窗、栏杆、给排水管等管道施工,提前插入预制隔墙板、砌筑墙体的施工,充分利用主体结构施工的时间,有效的进行了多道工序的穿插施工,节省工期。

装配式|走进信达泰禾·金尊府项目,领略装配式建造风采!

-工程品质-

带飘窗外墙、楼梯、楼板采用预制方式,将复杂结构PC化,提高了工效,保证了质量。利用BIM技术对施工过程进行模拟操作,规范了作业流程,使作业人员充分掌握新工艺,新技术的运用。

装配式|走进信达泰禾·金尊府项目,领略装配式建造风采!

预制外墙临时支撑

采用铝模、爬架、PC构件技术综合运用,有效提高了主体施工速度,充分发挥铝模、爬架、PC构件在装配式高层住宅项目技术优势。通过铝模深化设计,减免现浇剪力墙抹灰工序,节约了工期与成本。

– 节能环保 –

通过PC构件应用,使建筑构件制作产业化,减少能源消耗和环境污染。

装配式|走进信达泰禾·金尊府项目,领略装配式建造风采!

预制楼梯和预制叠合板

装配式|走进信达泰禾·金尊府项目,领略装配式建造风采!

预制构件堆码

结语

信达泰禾·金尊府项目采用预制外墙、预制楼梯、预制阳台、预制叠合楼板、铝模板+爬架、机电工业化及全装修,形成了先进的装配式建筑体系,颠覆了传统的建筑工艺和生产方式,减少了现场湿作业,不仅提高建筑质量,而且大大改善现场施工作业环境,减少建筑垃圾排放。可以预见,越来越多装配式建造项目的成功实践,必将对装配式建筑的持续健康发展产生良好的促进作用,并将在迈向“美丽中国”建设进程中有力提升人民的幸福感和获得感。

微信公众号:xuebim
关注建筑行业BIM发展、研究建筑新技术,汇集建筑前沿信息!
← 微信扫一扫,关注我们+
赞(0) 打赏
BIM建筑网 » 装配式|走进信达泰禾·金尊府项目,领略装配式建造风采!

BIM建筑网,更专业的BIM技术学习网站!

关注建筑新动态,分享建筑新技术

联系我们关于BIM建筑网

觉得文章有用就打赏一下小编吧

非常感谢你的打赏,我们将继续提供更多优质内容,让我们一起创建更加美好的网络世界!

支付宝扫一扫打赏

微信扫一扫打赏

扫码登录

微信「关注」,快捷登录
扫码关注后会自动登录
注册登录代表您已同意《用户许可协议》
账号登录 | 其他登录

|登录

找回密码

|账号登录注册