又见敦煌剧场位于甘肃敦煌市郊,建设用地面积为65000平方米,总建筑面积为19900平方米,是为一部戏剧演出专门订制的一个剧场。建筑师必须更多地考虑戏剧的内涵和外延,使戏剧表达的主题与建筑、环境、历史相统一,才能创作出独一无二的作品。
又见敦煌剧场通体湛蓝,坐落于无尽的戈壁荒原之中,恰如沙漠中的一滴水,以其珍贵无比的含义,隐喻着敦煌对于世界文明的意义。建筑最终自然地发展成为场地的一部分,并与当地的自然和文脉产生有意义的对话。建筑与场地之间对比所产生的强烈反差,甚至会使观者产生时间停滞的感觉。这种体验超越了过去与未来,引发了自然、建筑、人这三者的时空共鸣。
项目用地受到莫高窟景区的区域高度限制,并且南部贴临一个大型下沉广场。根据这一(BIM设计)特殊场地条件,设计将建筑造型处理成由北部主入口广场地面逐渐升起,将建筑功能空间依场地高差变化、逐渐沉入地面以下,很好地解决了控高与剧场体量需求的矛盾。同时,利用玻璃将建筑边界模糊处理,让庞大的建筑体量消隐在茫茫戈壁沙漠之中。而在入口处折叠往复的之字形下沉坡道,让观众在进入剧场的过程中,其心境也随之慢慢沉静下来,逐渐浸入到戏剧的情景里。
建筑的屋顶与外墙被四种蓝颜色的玻璃马赛克,依从规律的几何化图案排布。屋顶上层层叠叠的玻璃立板,采用3米模数控制,其顶部为山浪形的曲线,全部节点隐于马赛克屋顶之下。蓝色和绿色对应着莫高窟壁画、雕塑中大量使用的石青和石绿矿物质颜料,让观众联想到与敦煌石窟艺术的关联。层层玻璃的绿色与斜坡屋顶上马赛克的蓝色混合成浮动的(BIM培训)奇妙景象,使建筑与辽阔的天地对话,进而引发时空共鸣,产生动人心魄的力量。
图纸
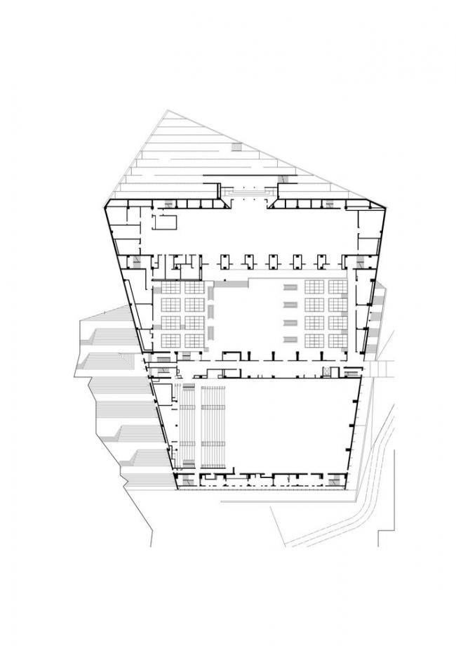
一层平面图
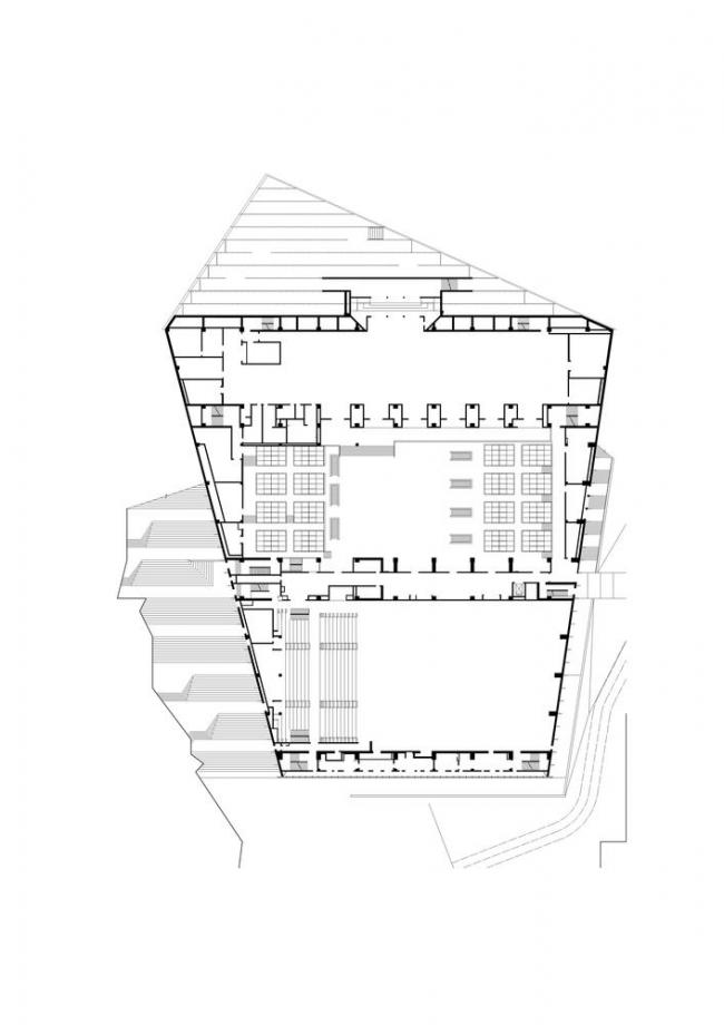
1.5层平面图
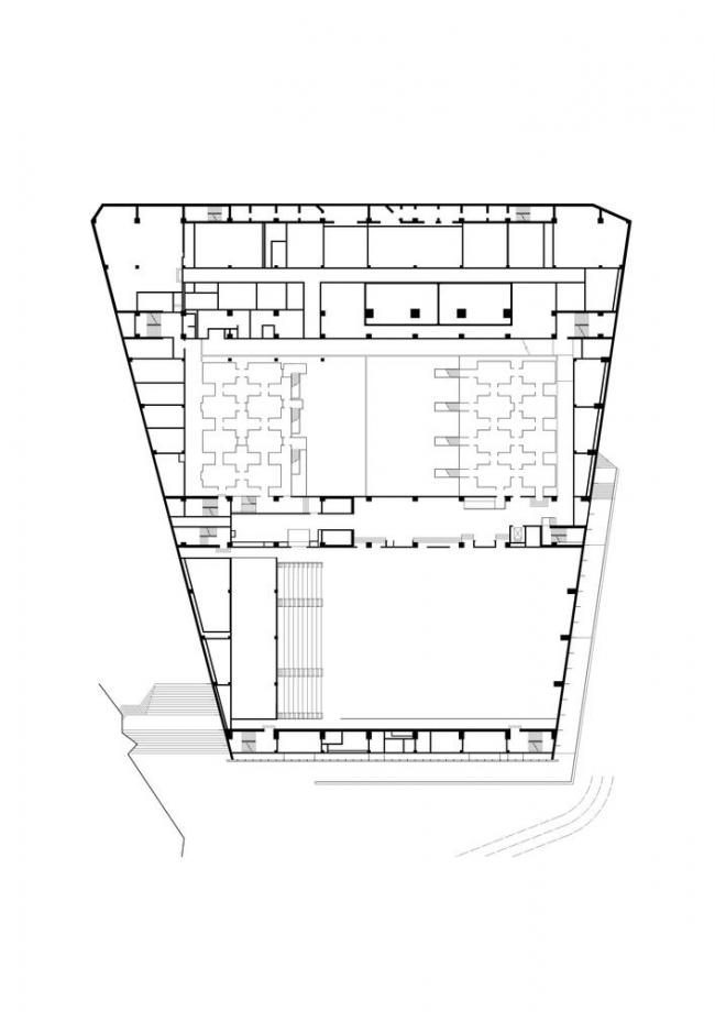
二层平面图
立面图
剖面图
剖面图
东立面百叶、马赛克尺寸图
西立面百叶、马赛克尺寸图
南立面马赛克颜色及门窗、百叶颜色布置图
屋顶马赛克布置图
项目信息
建筑师:朱小地工作室·BIAD
地址:又见敦煌剧场,敦煌,甘肃省,中国
类别:剧院
主创建筑师:朱小地
设计团队:回炜炜、贾琦、房宇巍、黄古开
建筑面积:19900.0 平方米
项目年份:2016
摄影师:舒赫,易都
厂家:Taiwan Glass, Seed

BIM建筑网
























