人们因建筑而有了居所,因打开门窗才看见了世界。CIVRO形象展厅位于上海越界旧厂房,CROX闊合为其打造了一个充满无限框景的概念空间。
设计的目的是在旧的建筑空间植入展示功能,建筑师希望介入最少的设计来提升原始空间迷人的特色,利用最简单线条,赋予其生命的意义。这些线条如同人生道路上所走过的足迹,在不同空间内贯穿,延伸出无限的框景。
CIVRO展厅里,“线”穿梭里外,没有界限,蔓延出无数种空间构成的方式,形成一种自由开放的格局,并结合不同的使用情境,使空间属性充满弹性。
CIVRO旗舰(BIM)店是在绿地上的一栋红砖仓库,灵动的白色框条,勾勒出优雅与个性,游走的线条在庭院内构成不同的休息区域,也组成了主要建筑的入口结构体。这些线条再往内部连接,构建出大小不同的空间,建筑、室内与景观也因此融合成一个完整的空间序列。
本次改造的方式带有创新意识,重新定义了上海旧建筑再利用的逻辑。将CIVRO铝框产品变为主要的建筑材料,结构型态本身形成了空间,同时也完成了展示需求,兼顾功能与美观。
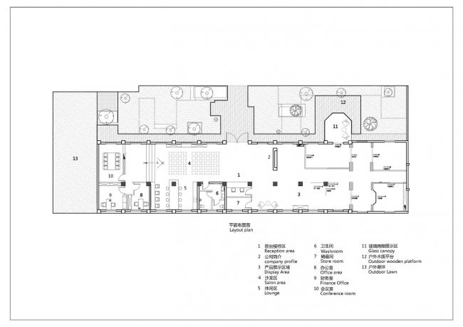
顺着线条进入内部展厅,白色铝框架构的接待区如被切开的白色盒子,成为视觉的交点。内部被划分出两种不同的空间性质——建筑的东面为主要的产品展示厅,白色框架组建成不同的墙(BIM工程师)体,形成大小不同的展间。西面为会议交谊厅,框架式的天花可因集会、展览、发布……等不同空间的利用方式而作出变化。
设计整体呈现出白色基调,配合光影弥散了一种神秘宽广的框景感,借由原始的柱体、墙壁衍生出互动的交错关系,跳脱常规的展厅模式,唤醒整个人与空间的交互情绪。
一幅画面就是一道风光,在生活中我们走动着,用眼来定格,而门与窗事是建筑用来交流的眼,闊合CROX便以无限框架创造出万千无一的景。
图纸
爆炸图
平面图
项目信息建筑师 CROX闊合
地址 上海, 中国
类别 商业建筑
设计团队 林琮然、李本涛、周颖、黄培耿
建筑面积 850.0 m2
项目年份 2018
厂家 Siemens, Nippon
客户 希洛CIVRO系统铝门窗
撰文 C.R.LIN

BIM建筑网
























