建筑整体
“自然界中的所有物质,山脉,溪流和空气,包括我们都是由光所构成的。光是物质的制造者,物质的目的是投下阴影,而影子属于光。”正如路易斯康所说,我们用光做导演,影子做主角,进行空间叙事。引导人们体验个性、独特的光影空间。
光与影对建筑简洁有力的雕刻 摄影:曾江河
建筑在镜面水景中的倒影与廊道中光线经过金属网帘后斑驳的影子相互辉映摄影:曾江河
静谧、优雅的休闲空间摄影:曾江河
项目选址在南京江宁片区规划中的一处城市公园中。用地局促,周边环境杂乱喧嚣。我们用一个看似简单的方案缓解紧张的用地:一个方盒子,一片镜面水景,和一条L型回廊。L型回廊将不规则地块划为停车场。建筑在镜面水景中的倒影,与廊道中光线经过金属网帘后斑驳的影子巧妙地融合。光与影将空间不断地雕刻、延伸,赋予空间动态的序列感和静谧的个性。
廊道倒影与镜面水景摄影:曾江河
形体生成——一个方形盒子、一片镜面水景和一条L形回廊
光影形塑
人们经过光影的洗礼,转身的瞬间建筑的形象即映入眼帘。设计力求建筑室内外及景观材料统一,旨在让建筑空间体验呈现清晰的逻辑。我们以高透玻璃、超白U型玻璃、石材及铝板覆盖建筑外观,反复推敲透明、半透明、实体三种界面之间的比例,探讨光影之下虚与实、轻与重之间的关系。
细部实景呈现摄影:曾江河
首层玻璃高透低反,意在消隐,衬托建筑的雕塑感。超白U型玻璃在光线下呈现温润的半透明质感,展示出优雅的艺术气质。浅灰色石材连续的横向纹理伴随光与影的变化,仿佛记录着时间的流逝。由白色铝板雕刻而成的“时光之窗”位于二层,用静态框架记录了光影的路径,达到时间与空间的延续、串连。
U玻后温柔的光线,禅意的庭院景观,动态光影空间相互交织摄影:曾江河
光影空间
斯蒂芬·霍尔曾说:“光线可以塑造空间氛围,也使空间产生一种不可确定的性格,形塑出在行经空间时短暂的即时性经验体会。”光作为建筑空间的灵魂,建筑室内设计了光之接待厅、光之展示区、光之休闲区三种形态各异的光空间。引介光与影,构筑向量秩序。探寻光影的变幻、空间的透明性、以及光影空间中材料的诗意表达。
光影空间——3个光空间摄影:曾江河
光影空间一
光影空间二
光影空间三
“光之接待厅”中上下两层空间的人们被一条线性、精巧的两层通高空间联系在一起,产生了空间对话。当光从屋顶线形的天窗洒下来时,空间与材料的诗意在不经意间呈现出来。
光之接待厅首层看向屋顶线形天窗摄影:曾江河
光之接待厅二层回看一层,光影空间与材料的诗意表达摄影:曾江河
光之接待厅——线性、精巧的两层通高空间
“光之展示区”的屋顶天窗呈方形,光线经过折形铝板形成数条光影,宣泄而下。光线经过浅灰色横纹石材的折射和漫反射在四周富有韵律的短墙间漫游,赋予空间博物馆的独特气质。
散发艺术气质的展示区摄影:曾江河
光(BIM工程师)之展示区首层具有独特的博物馆气质摄影:曾江河
光之展示区二层的光影空间摄影:曾江河
光之展示区——方形的两层通高空间
“光之休闲区”以大尺度的长方形边厅将二层走廊空间与首层休闲区空间叠合在一起。天窗下的折形铝百叶巧妙地隐藏了屋顶的纵向钢梁,将光线过滤。产生的动态光影伴随时间的流动,在空间中舞动,记录着时间与空间的交织、互动。空间顿时安静,感受不到咫尺之外城市中的车马喧嚣。
午后的二层走廊空间摄影:曾江河
天窗光线经过折形铝百叶过滤产生动态的光影效果摄影:曾江河
折形铝百叶巧妙地隐藏纵向结构横梁
光之休闲区——二层走廊空间与首层休闲空间完美叠合、对话
光影序列
沿永胜路的城市界面,建筑巧妙借景,越过景墙以一种极致、安静的水平姿态,与嘈杂、喧嚣的城市对话。
建筑以一种极致、安静的水平姿态与嘈杂、喧嚣的城市对话摄影:曾江河
院落空间中,建筑与景观之间以借景和移步换景的方式,让狭小的场地空间小中见大,丰富空间体验。
建筑与院落景观相互辉映摄影:曾江河
折线形廊道的多次转折及精心设计的片段化场景,在光影的不断变幻中,让人们不经意之间对即将到达的场所产生期待。
折线形廊道延长了人们的行进路径摄影:曾江河
随着人流的延伸,映入眼帘的便是接待厅了。光影在两层通高的石墙上不断变幻,将人们引向身后等待多时的展示区。离开展示区,短墙间渗透出来的光线接向休闲区。豁然开朗的通高空间伴着温柔的光线散发出的静谧氛围,宝贵得如同盛宴后的清茶,让之前的光影变幻得以慢慢回味。休闲区尽端的折线形旋转楼梯雕塑感十足,暗示着通往二层的重要流线。
光影不断变换的接待区石墙摄影:曾江河
俯瞰折线形旋转楼梯与休闲区摄影:曾江河
深咖色的折线形旋转楼梯与周边的灰调对比鲜明摄影:曾江河
折线形旋转楼梯的二层入口摄影:曾江河
结语
希望这栋藏于喧嚣闹(BIM培训)市中的建筑可以唤起人们对生活本质的探寻。建筑,化繁为简,让光在空间中叙事。引导人们在光与影之间穿梭,感受时间与空间的对话,细品生活美好。
二层生活体验中心的回廊空间摄影:曾江河
项目图纸
一层平面图
二层平面图
东立面图
南立面图
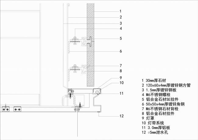
1-1节点图
2-2节点图
3-3节点图
4-4节点图
5-5节点图
6-6节点图
项目信息
建筑师:南京天华
地址:永胜路与天行路交叉口,南京,江苏,中国
主创建筑师:张婧,周昂昂,王明
设计团队:路晓彤,潘仕亮
建筑面积:1445.0 平方米
项目年份:2018
摄影师:曾江河
项目类型:商业建筑

BIM建筑网











































