「觀芷·翠陌」民宿位于浙江杭州闹市区,原本是历史保护建筑「义泰昌布号」,与著名老街「河坊街」仅几步之遥。
原建筑为传统砖木结构的三进宅院,由于房龄已有百余年且没有得到很好的修缮保护,饱经沧桑的老宅已残破不堪。
前期工作
我们面临的问题非常严峻——雕花门窗早已腐坏,房顶多处渗水,院落中处处是半人高的杂草,难以行走。而其中最关键的是原先的木结构日晒雨淋,通往二层的木质楼梯破损严重,地板也有多处破洞,难以满足改造后所需求的承受力。
改造后
如何在尽量保护原建筑的前提下,完成修缮改造并满足现代人的居住需求成为我们最大难题。考虑到客户及市场需求,经过缜密思考和讨论,设计师决定“不破坏不拆除,以修复加固为主”,保留古宅外观和结构,完成人、自然与建筑的融合统一。
原建筑
改造后
建筑外观
由于建筑古老且具有重要历史文化意义,因此我们仅对外观进行维护及修缮。「觀芷·翠陌」是标准的江南古民居建筑风格,“四水归堂”布局,木梁承重,砖砌护墙。
我们仅对墙面局部修复,重新粉刷,屋顶破碎的青瓦也被替换重铺、刷洗干净,最大程度保护原始的建筑外貌。
公共空间
庭院一进:通过古老木门进入门厅,正对的是一小八仙桌,稍加隔档。胡桃木博古架齐梁而立,呈阶梯状。
前台为水泥现浇覆黄铜台面,顶部铺满细密毛竹,暖黄的灯光投射出朦胧的美。
宅院一进四面围合,中间种一方青竹。走道两旁放置古老的石长凳,供客人休憩谈天。夏日夜晚,一杯茶,一首诗,听飒飒的竹音,聆听久远的古宅历史。
庭院二进:宅以水为血脉。
在传统建筑理念里,无水不成景。因而设计师将这一理念带入此次设计中,水作为一个柔软的纽带,连通古宅前后空间。踏过一汪清池,进入庭院二进。
拾级而下,浅细的白砂石铺满地面。大小不一的青石板拼成主通道,两边是仔细修缮过重新组装上的雕花门窗。
庭院三进:连接二、三进的公共空间为一层的集中休憩区。
正中放置一张约4米的长桌,供住店客人饮茶休闲,兼具茶艺表演的功能。
三进空间还包含一个半敞开吧台及餐厅,可满足多种聚会需求。
二层公区:沿着木质楼梯而上,进入二层的公共空间。
古老的砖木结构老宅通常层高较高,搭配现代的金属灯具,显得空间开阔而细节精致。
客房
客房共8间,设计师依然极力保持原始建筑的古朴美好,意图唤起入住者追溯历史、回复本真。
由于客户对佛学与古文化的喜好,每间房的主题也颇有意境。
缔欢-影音主题
琼窗倚榭簇勾栏,蜜意酣情各缔欢。
—「提宋院本金陵图」
「清」乾隆
缔欢房内沙发正对一面可推拉的的木隔栅,拉开即为投影屏。
缔欢房内沙发正对一面可推拉的的木隔栅,拉开即为投影屏。
芳时-泳池主题
游泳属芳时,平生自云毕。
—「拟古诗十二首」
「唐」韦应物
扶桑-日式主题
遥指来从初日外,始知更有扶桑东。
—「同崔载华赠日本聘使」
「唐」刘长卿
扶桑房内地面铺以榻榻米,房内大多摆饰、器皿均有百年历史,它们跨越广阔的东海,从东京运来,使入住者身临其境。
净业-禅修主题
念念时时修净业,临终佛定来迎接。
—「渔家傲」
「宋」可旻
凤台-亲子主题
放逐今来涨海边,亲情多在凤台前。
—「寄外甥苗武仲」
「唐」徐铉
载瞻-星空主题
载瞻星辰,载歌幽人,流水今日,明月前身。
—「二十四诗品」
「唐」司空图
载瞻房保留原有天窗,夜晚降临,可透过顶部的天光看见满天繁星。
清襟-观景主题
扫君园林地,泽我清凉襟。
—「寄崇德里居作」
「唐」马戴
随幽-观景主题
园林与城市,闾里随人幽。
—「夏日寻蓝田唐丞登高宴集」
「唐」储光羲
「觀芷·翠陌」项目从设计至施工完成耗时一年余,从原有的残旧老宅摇身一变,成为现今清河坊街区的新地标。
保护中国传统古建筑与打造满足现代人生活及审美需求的居所并无冲突,同时她与旁边著名的历史老街「河坊街」形成一个具(BIM建筑)有连续性的、完整的南宋文化圈。
市井的喧嚣与禅意的宁静,现代的城市感与古代的文人气息完美交融,这也是设计师眼中「觀芷·翠陌」应有的样子。
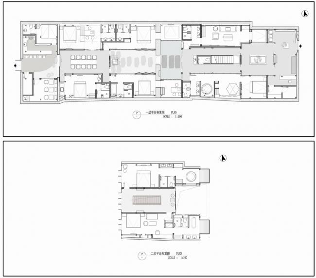
图纸
原始结构
最终平面
项目信息
设计公司:杭州卧野空间设计有限公司
项目名称:觀芷·翠陌民宿酒店
设计师:主案设计师-苏静
参与设计师-王娟、LISA、33
设计时间:2017.9-2018.10
完工时间:2018.11
项目地点:浙江省杭州市上城区打铜巷25号
(BIM工作)
项目面积:500 ㎡
主要材料:老青砖、硅藻泥、青石板、黄铜

BIM建筑网








































































