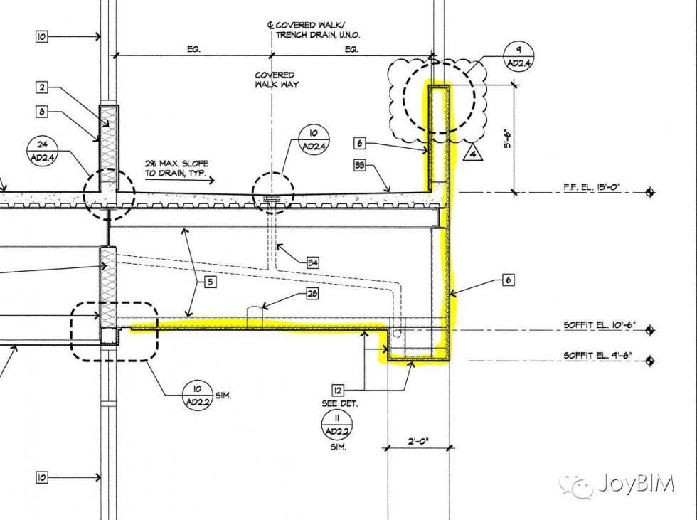
我以前在一些会议上曾做过关于BIM 5D的讲座,每次讲座我都会拿出下面的这张图给大家看,让大家思考一下,如果让你用BIM做这个黄色加粗Cement Finishes和Metal Panel的算量和造价,你会怎么做。

这张图来自于我4年前参与过的一个项目,那是我们公司最早开始试行BIM算量和造价的一个项目,而当时我们公司的预算员就指着这个细节问我:“你们BIM模型能到这个深度吗?BIM软件懂定额吗?”我反问他:“我们需要到达这个深度吗?BIM软件需要懂定额吗?”这是当时我们推广BIM 5D时遇到的众多困难和阻力缩影之一。所以这里来聊聊美国某总包在推广5D时的一些经历和经验。
首先说明的是,那个时候美国的DB项目开始逐渐流行,我们公司用来做5D试点的项目都是DB项目,及总包承担了设计阶段的Pre-Con的业务,而所有设计模型也是由设计方提供。对于传统的Hard-Bid或者国内流行的DBB过程,我会在以后的文章里详细分享关于这两种模式的BIM 5D施行过程。这里先来看看DB项目。
公司在最初的几个5D试行项目上都配了两个人,一个BIM Coordinator,一个传统的Estimator,及预算员。Estimator负责预算工作,BIM Coordinator负责BIM和传统预算的语言“转换”。
在5D实施中,我作为BIM Coordinator和我们预算员的任务是:1、用Vico Office作为工具,以设计单位提供的BIM模型为基础,对设计过程中的工程量和总价做控制;2、逐步把公司Timblerline的算量和造价数据库转化到Vico Office中,并将传统的MasterFormat转化成更适合BIM的UniFormat;3、制定出规范建筑师BIM模型的标准、Naming System标准、以及针对BIM算量各个构件的计算规则;4、企业数据库的形成。
于是我们在工作的过程中,就出现了由第一张图片引起的讨论。我对预算员说,如果是传统的工作方式你会怎么算Cement Finishes和Metal Panel的量?他说我会用OST上对着这个截面算出这两个材料的单位量,接着再在平面图纸上算出使用这个截面的总长度,两者一乘便得到了工程量,然后我在Timberlinel里可以套上各种施工时的损耗率和其它定额,最后得出准确的量和造价。
仅接着他反问道,你们BIM模型能到这样的深度吗?我说,需要吗?算这个量,模型对应了三个构件:Parapet,Exterior Wall和Soffits。Parapet的Metal Stud的量我可以直接从构件的外表面积自动得到,而Cement Finishes的面积我可以定义从构件的三个面的面积总和得到;Exterior Wall的外部Cement Finishes直接是它的单面面积,而内部Cement Finishes我可以用Exterior Wall的长度乘以高度来得到;同理,Soffits我可以直接用它的面积对应这张图的细节来得到相应的工程量。得到了计算工程量后,我按照你的损耗量计算技术及其他定额套进去,我也得到了同样的结果。并且在过程的同时,我还得到了Parapet,Exterior Wall和Soffits这三个构件的计算规则,它们可以成为我们数据库的一部分,以后我们做类似工程时,就可以直接拿出来稍微修改下使用了。
我同事听了若有所思,说对,但这样的话BIM算量不就不是自动的,得涉及到不少人工工作了?我说对呀,BIM算量本来就没法自动的,我们必须有你这样预算经验丰富的人在才能将BIM 5D施行下去啊。并且在用BIM的同时还必须以二维图纸结合,虽然图纸是BIM模型生成的,但是BIM的深度目前还不能达到二维图纸细节的深度。熟悉图纸和预算过程,在模型中快速选取自己需要的几何信息,就能提高工作效率了。
在和我的同事协作的过程中,他不断地告诉我预算的知识和需要添加的系数及定额,而我则不断地把它转化为BIM Process。在工作到最后的时候,我同事说,我觉得我不需要你我自己也能用模型做estimatingl了。我说这就对了 🙂
BIM在DB项目中应用的一个重要优势就是迭代模型的使用。当我们在一个项目上制定出所有构件的计算规则后,设计再有模型修改时,我们直接导入新模型,Vico Office检测到模型的修改,自动更新了工程量和造价,这对我们对项目的总价控制控制管理起到了很大的作用。
在推广5D的过程中面临的另外一个难题就是模型的问题。许多人都有过这样的感受:建筑设计的模型没法在施工上使用。同样,在美国总包身上也会遇到这样的问题:建筑师的模型永远都是为了出图方便而建,他们不会考虑总包做4D、5D时的需求。我们在收到建筑师模型时,遇到最多的两个问题就是:构件命名混乱和建模的不规范,这两个问题都影响我们5D的效率。由于是不同的利益方,所以总包绝对不能期望建筑师无条件为自己做出改变。
所以我们根据自己的需求创建了一个Revit Template给建筑师用,建筑师可以直接从我们Template开展设计,项目所有会用到的构件属性都已在Template中规范好,建筑师也省去了不少前期准备工作。有免费和高效的工作模板,建筑师当然很乐意使用了。
另外我们还制定了详细的建模标准供建筑师参考,或者说供我们修改模型时参考。总之,不管制定多详细的建模标准,从建筑师那里收到的模型肯定会有让我们不满意的地方,所以我们内部也有个标准,根据经验总结出建筑师在BIM模型最容易马虎的地方,以及对算量准确性影响最大的地方。这样收到建筑师模型后,我们可以快速检查他们的模型并修改成符合算量要求的模型。
不过也有例外的情况,比如一些很大的建筑事务所,如Gensler或者RTKL之类,他们本身就有自己Revit Template,而这些Template完全从根据建筑师自己需求而建,说服他们使用新的适应于施工的Template是件比登天还难的事情了。这个时候该怎么办了,其实这个时候就是看你总承包管理和协调甚至是合同约束的能力了,:-) 这已超出技术的范畴了。
在5D施行过程中还有一个很重要的工作就是企业数据库的建立。美国传统的总包公司基本都有个Timberline的数据库,这个数据库基本都是企业无数项目所积累下来的成果。Timberline的数据库向BIM系统的转化绝不是简单的导出导入的过程,它是从材料清单向构件清单的转换过程(及MasterFormat向Uniformat的转换过程),是针对BIM模型特点调整计算规则的过程,是跟4D任务串联改进的一个过程(我在以后的文章中会详细阐述这点),更是一个企业更改数据库管理习惯的一个标准化过程。如果在施行5D的过程中,一个企业没有一个强大的高度标准化的数据库做支持,那企业的5D施行必将是失败的。而这个数据库的形成是靠企业花时间在无数项目实践上所积累出来的。
所以一个企业级的BIM 5D应用,不是靠买软件来实施成功的,而是靠中途无数的经验积累而成功的。可惜的是现在许多企业不愿意沉下心来做这项工作,也没有意识到大数据对企业未来发展的重要性。我想这两点才是5D BIM施行中最大的困难吧。

BIM建筑网


