冰山公寓位于奥胡斯前端港口的黄金地段,它位于奥胡斯东部地区,作为奥胡斯的新兴发展区,共有208套公寓。像许多其他破旧的工业港区一样,奥胡斯的旧有集装箱港口正在变成一个充满活力的新社区。
冰山公寓是首批完工的项目之一,该地区建成后将拥有7,000名居民,并提供12,000个工作场所。其总占地面积为80万平方米,是欧洲许多大型的港口城市发展区之一。
冰山公寓的灵感源自该地点的特殊位置,在这里可以欣赏到奥胡斯湾的壮丽景色。因此,一项基础的任务是为每个单独的公寓提供最大化的视野和日照条件,同时尊重内陆的城市环境。
冰山公寓不是遵循由封闭式建筑群占主导地位的总(BIM教程)体规划,而是布置为四个L形翼体量,将中间的街道空间朝向水面开放。为了获得最佳的日光条件和海湾景观,建筑体积被锯齿状线条切割分散。
屋顶上升和下降形成建筑的山峰和山谷,在各个体积上形成视觉通道,就像浮动的冰山一样,不断折射。因此,即使是居住在后翼体量的居民也可以拥有别致的风景和视野。将每个建筑物分成顶部和山谷的设计原则有助于使建筑物的规模适应周围环境和内部空间。不是被将集合公寓视为向内封闭的街区,而是将建筑群体验和空间形成为开放式结构,从而创造出更多的建筑吸引力。
在选定的区域内,设计师将建筑物的结构朝向街道,以创造一个以港口为导向的特征和规模。在其他区域,结构向上延展,以创造更多的城市品质空间。城市和港口以一种通俗的艺术风格相遇相融。
从这种简单的算法中得到的变化和壮观的形式使得人们可以在复杂的内部适应各种不同的住宅类型。外部几何形状通过建筑物向上改变,同时也在平面中遵循这样的变化,不仅两层的城镇住宅和经济实惠的小户型公寓这样变化,位于“山顶”的奢华平层顶级住宅也是如此。
各种组合各异的阳台,形状在方向上的扭转,不同样式的住宅以及自住和租赁公寓的组合模式皆是旨在创造多样化的城市社会环境,形成一个生动的当地社区——不仅仅是一个系列的住房排列,而是让建筑群成为一个有生命力的邻里社区。
图纸
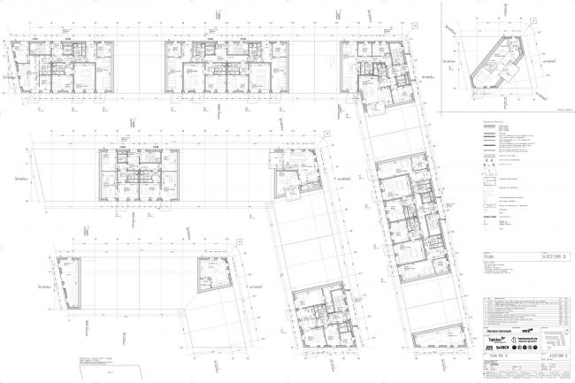
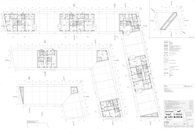
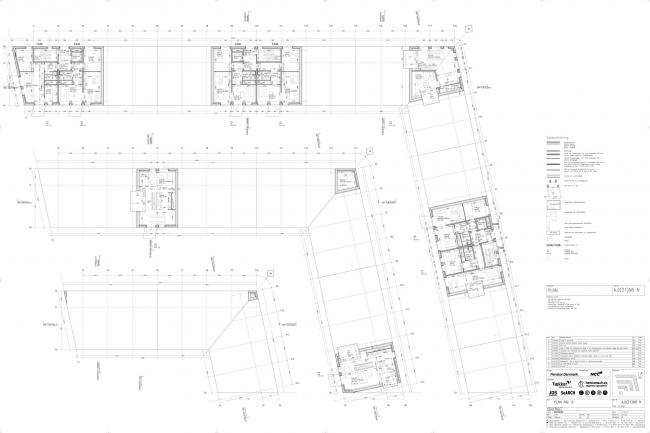
总平面图
底层平面图
首层平面图
二层平面图
三层平面图
四层平面图
五层平面图
六层平面图
七层平面图
八层平面图
九层平面图
十层平面
十一层平面图
屋顶层平面图
立面图
剖面图
A栋建筑立面图
B栋建筑立面图
C栋建筑立面图
D栋建筑立面图
查看详细图纸可点击链接(链接:https://pan.baidu.com/s/1pFzSZmd9rvJeqVXn55qzHQ 提取码:lxy9 )
项(BIM培训)目信息
建筑师:CEBRA,JDS,Louis Paillard Architects,SeARCH
地点:Mariane Thomsens Gade,8000 Aarhus C,丹麦
区域:22000.0平方米
项目年份:2013 年
建筑摄影师:Mikkel Frost,Soeren Kjaer
制造商:Troldtekt
合作者:NCC,TækkerRI,Hamiconsult
委托方:PensionDanmark

BIM建筑网






































