资料来源:上海天华建筑设计有限公司
作者:李伟兴
实习编辑:程洁
装配式混凝土居住建筑和公共建筑全过程设计实践汇总
案例1:面砖反打PC剪力墙住宅设计
█项目基本情况
基地面积:10.43万m2;总建筑面积:约36万m2;容积率:2.9;
住宅比例:70%;
PC比例:住宅4层及以上采用PC,标准层PC率为34%,折合整栋PC率为25%
█ 户型标准化
█立面标准化
立面简洁,元素归并,风格统一。
█立面分析
考虑到立面底部基座及女儿墙屋顶构架的造型复杂,复制率低。底部基座及女儿墙以上部分不考虑PC预制构件。标准层做PC,同一位置不会出现不同构件,构件复制率高。
平面PC布置方案
本项目为装配式整体式剪力墙结构体系,南北外挂PCF,东西山墙预制剪力墙;
在制作了凸窗、阳台、设备平台、楼梯、预制剪力墙及PCF的情况下,本项目PC外墙50%以上,标准层预制率可达到34%。
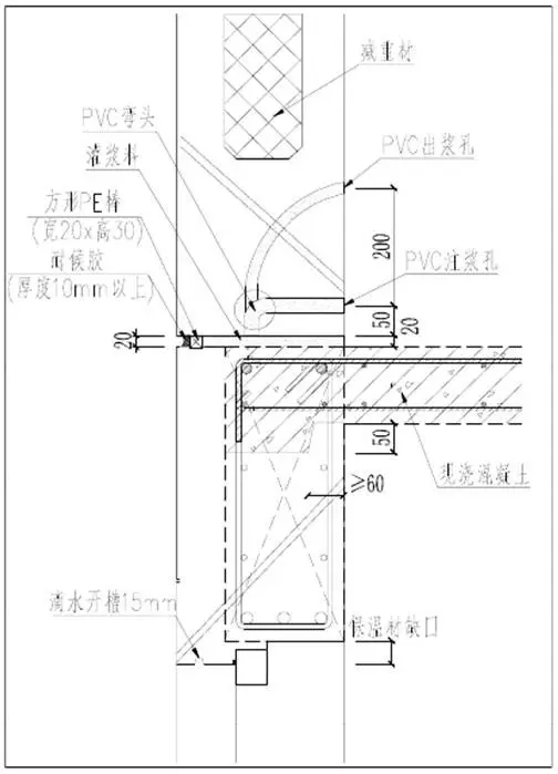
█ PC建筑防水设计——窗周防水
预埋框料要求:铝合金窗框;
框料宽度一般50-60mm;
窗脚埋深20mm以上;
泄水孔须外露;
中梃外凸50mm以内;
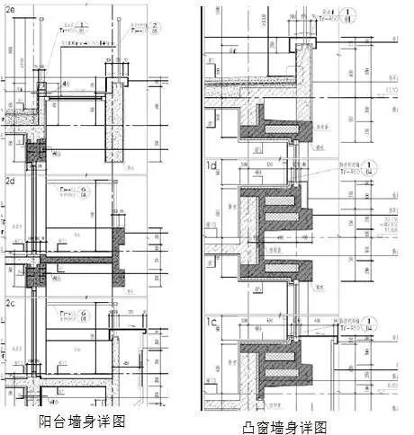
█PC安装施工——PC板的连接及防水
▲PCF构件竖向缝与水平缝做法
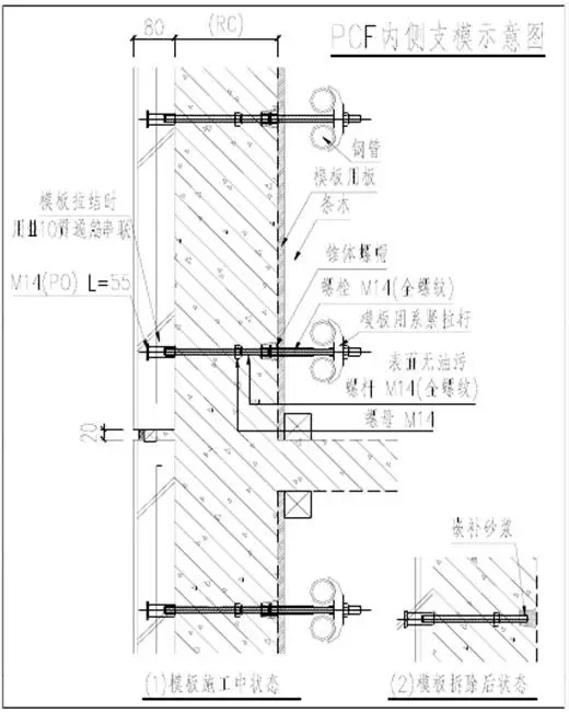
█PC安装施工——PC板内侧支模
▲PCF内模拉结螺杆
█PC安装施工——窗与结构的连接
▲预制飘窗板锚固节点
▲预制平板窗锚固节点
█ PC安装施工——免外脚手架做法
▲外架三角撑
▲防护架安装就位
▲两层外防护架周转
案例2:石材反打PCF剪力墙住宅设计
█ 项目基本情况
PC率=PC方量/地上混凝土总方量:1#、4#、6#为15%,3#楼为15.1%,8#楼为15.3%。
1#,3#,4#,6#楼梯采用工厂预制;8#楼梯采用传统现浇。
PCF+石材板的总厚150mm,石材厚度30mm。
▲PCF外模内浇墙体及凸窗
▲PCF外墙及凸窗现场安装
▲PC结合铝模技术应用
▲PC结合铝模技术应用▲爬架与穿插施工
▲石材反打生产流程
█ 石材破损解决方案
对PC石材破损程度不同,采用不同的修补方式:对于小于3的破损,直接采用相同颜色的石材专用胶进行修补;对于3cm以上的破损,采用切割石材拼块修补,并对修补部位进行拉拔试验。
▲石材胶修补
▲修补部位拉拔试验
案例3:夹心保温PC剪力墙住宅设计
█项目基本情况
占地面积:76314.60平方米
用地性质:住办(宅83-85%,公15-17%)
容积率:2.65
地上计容建筑面积:202233.69平方米
建筑限高:80M(局部100M)
预制装配率:30%
█ 建筑平立面设计
高层的立面具有典型的三段式特征
底层三层为干挂石材和铝板打造的基座
主体材料为深色的仿石材涂料
柱子直通至三层,强化竖向特征
梁的位置以深色铝板饰面
整个基座庄严沉稳
在高层住宅上强调建筑的线条与体块的对比,完善体量的同时,又不失变化,使整个建筑高贵典雅、自然又极富韵律感。
█ 装配式设计要点
预制夹心保温剪力墙结构设计所依据的标准及图集:
1、行业标准《装配式混凝土结构技术规程》(JGJ1-2014)
2、上海市标准《装配整体式混凝土居住建筑设计规程》(DG/TJ08-2071-2015)
3、上海市标准《预制混凝土夹心保温外墙板应用技术规程》(DG/TJ08-2158-2015)
4、行业设计指导《装配式建筑系列标准应用实施指南》(装配式混凝土结构建筑)
5、国标图集《预制混凝土剪力墙外墙板》(15G365-1)、《装配式混凝土结构连接节点构造(剪力墙》(15G310-2)
6、上海市标准图集《装配整体式混凝土构件图集》(DBJT08-121-2016)
7、企业标准:HALFEN、斯贝尔、佩克、Thermomass、利物宝等
构件种类:预制空调板,预制剪力墙,预制飘窗,预制平窗,预制楼梯
类型及数量:21种,共44块,除飘窗外均为简单构件。
构件立面范围:下部三层为底部加强区,剪力墙不宜做PC,其余构件PC预制
最重预制构件:为预制剪力墙,约5.5吨
█ 建筑立面PC拆分
立面PC设计难点:
1、高层住宅考虑附赠价值,外窗采用预制凸窗
2、预制凸窗结合方案造型,做了复杂的线脚处理
3、阳台造型在侧墙增加有规律的体块凹凸变化
▲哈芬不锈钢连接件布置的技术要求
█ 夹心保温剪力墙的工厂生产
▲保温板分块铺放
▲内叶墙板钢筋绑扎、埋件固定
█ 工法楼设计安装
工法展示楼:
1、将9号楼中的中间户和公共部位单独摘取出来,单独各专业深化,现场搭建3层高工法楼。
2、工法楼一层现浇,立面采用干挂石材;二层和三层预制,立面采用仿石涂料。
采用BIM软件进行了三维建模及构件拆分,并模拟现场安装工序进行了预拼装。
▲现场完成效果
█ 高层楼栋施工安装
▲现场完成效果
案例4:节段柱预应力框架会所设计
█ 项目基本情况
该项目位于上海青浦区蟠中路及蟠祥路交叉口处,为上海中建集团虹桥生态商务商业社区项目配套的销售中心。装配整体式框架结构,共两层,底层层高4.8米、二层层高4.2米,平屋顶建筑,建筑面积1154平方米。
█ 建筑平面图—底层
█ 建筑平面图—二层
█ PC结构设计概况
基础现浇,±0.000以上采用装配整体式框架,基础预留与柱连接钢筋,柱纵筋采用灌浆套筒连接方式。
构件拆分为预制柱、预制预应力框架叠合梁、预制叠合楼层次梁、预制楼梯板、预制叠合楼板、预制檐口板。
预制楼板采用单向叠合板,板宽小于3米。模型计算中需注意楼板传力方向。
主次梁连接采用牛腿支承的简支方式,模型中次梁两端全部设为铰接。
水平向跨度为12.6、10.8、12.6米,由于建筑空间要求较高,梁高受到限制,采用后张法有粘结预应力梁,梁高800。
▲通过BIM建模进行碰撞检查及预拼装。预制率在60%以上
█ 现场制作及安装
▲预制节段柱的吊装
▲预制节段柱的安装就位
▲二层楼面吊装完成
▲现浇框架梁柱节点
▲主次梁节点
█ 现场建成效果
案例5:装配整体式办公综合楼设计
█ 项目基本情况
建筑面积6100平方米,地上5层,建筑总高度22.1m
主要建筑功能为办公、展示及厂区配套服务用房
各层层高分别为:底层层高5高5.0m,二~五层均4.2m
大楼整体立面采用玻璃幕墙+外挂PC墙板
█ 设计项目概况
结构体系:装配整体式框架结构,抗震等级为三级
预制范围:预制外挂墙板、预制柱、预制叠合梁、预制预应力空心板叠合
楼板(局部钢筋桁架叠合板)、预制楼梯、预制清水混凝土内墙、NALC
加气混凝土轻质条板、预制女儿墙等
单体建筑预制率:83%左右
█ 建筑设计—柱网标准化
柱网尺寸是装配式框架建筑标准化设计的关键,标准化柱网基本决定了预制叠合梁和叠合板的布置方式和种类数量。
平面布局采用了6.9m×6.9m的标准化柱网尺寸,奠定了装配式建筑设计的基本模数。标准化柱网使得楼板跨度和开间种类不超过3种,预制柱、梁、板的种类大大减少。
█ 建筑设计—立面设计
█ 预制结构设计—预制体系
考虑到本项目为预制装配式示范项目,为进一步体现装配式建筑工业化建造的优势,尽量减少现场湿作业,设计遵循预制构件范围最大化原则来进行装配结构体系设计。预制范围如下:
框架柱(-0.200~屋顶)
主、次梁(二~屋顶层)(采用叠合梁做法)
楼板(局部采用钢筋桁架叠合楼板,其余均采用预应力空心板叠合板)
内隔墙(预制清水混凝土内墙、预制陶粒混凝土内墙、NALC加气混凝土轻质条板)
楼梯(预制梯段+预制门架);
外立面(预制外挂墙板+玻璃幕墙)
█ 预制结构设计—体系特点
预制结构体系主要特点:
框架柱从基础顶面~屋顶全高预制
办公房间无次梁布置,采用预应力空心板叠合板
部分大跨度框架梁采用先张法预应力预制叠合梁
外立面采用预制外挂墙板+玻璃幕墙交错布置
█ 预制结构设计—先张法预应力预制梁
构件生产制作采用长线法,预应力筋采用了1860级高强低松弛钢绞线
大部分预应力钢绞线置于梁底替代部分普通纵筋
为解决施工工况的梁面抗裂问题,在预制梁顶部也布置了4根钢绞线
梁底外排纵筋仍采用普通钢筋伸入梁柱节点,伸入节点纵筋数量同时满足计算和构造要求
█ 预制结构设计—预应力圆孔板叠合板
基本实现无次梁平面布置,大大减少了预制构件和连接数量,可有效降低建造成本、提高施工效率
在满足受力要求的前提下,可大幅减轻楼盖重量,从而减少结构整体自重,减小地震力及基础反力
施工工况可以不需在板底设置临时支撑,即做到实际意义的板底免支撑施工,具有节装配式住宅材、省人力等优点
对于大跨度构件,采用预应力技术可有效提高构件抗裂性能,可大幅节省钢筋用量
█ 连接节点设计
▲框架梁柱节点
▲主次梁牛担板连接节点
▲预制梯板及半平台门架
▲预制楼梯梁(抗扭)
案例6:双T板框架结构商业广场设计
█ 项目基本情况
1.项目位于闵行颛桥,独栋4层购物中心、框架结构平面尺寸为77mX166m(宽度x长度)
2.采用装配整体式框架结构,主要预制构件为预制钢筋桁架板、预制叠合梁、预制楼梯、预制叠合双T板底板,预制率30%
3.主体建筑设计单位:中建上海院;PC顾问及深化设计:上海天华
█ 双T板项目案例
▲关键连接节点做法
▲工厂生产场景
▲工法楼设计安装
▲类似项目建成效果
问题思考
装配式建筑的理解:“成品建筑+工业化建造”
建筑工业化的“初心”:
两提:“提高建筑品质、提高建造效率”—企业
两减:“减少人工用量、减少环境污染”—政府
建筑、结构、机电、装修设计的一体化和同步性
设计必须深入了解下游环节的构件生产、运输、施工等条件,掌握技术关键:“拆分+连接+细节”
“预制+预应力”是绝配,可有效提高构件抗裂性能、减小自重、节省钢筋、降低成本
作者简介:
李伟兴
副总工程师
博士,教授级高工
上海市建筑工业化专家委员会委员
建筑工业化创新联盟技术委员会委员
CCPA协会预制混凝土构件分会理事
E-mail:liweixing@thape.com.cn

BIM建筑网








































































