中房建筑总建筑师张继红介绍中房《装配式保障房标准房型及通用构件研究》成果。
保障房标准房型研究
■ 设计标准的统一
■ 预制装配式的适用体系
■ 标准户型的模数化、模块化
■ 大空间灵活分隔
01、前期调研
调研在建或已报建的项目户型80 余个:
① 已交付、在建调研项目:11个开发企业、8个保障房基地的17个地块,预制率15~40%,结构体系以预制整体式剪力墙为主;
② 设计阶段案例调研项目:11个开发企业、7个保障房基地的22个地块,单体预制装配率要求为40%
02、房型优化:使用功能优化
灵活大空间
套内零走道
减少自身遮挡
改善中间套通风
南向利用最大化
▼ 住户需求
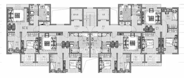
▼ 灵活大空间
▼ 南侧外墙齐平,自身零遮挡
▼ 内走道、中套有通风
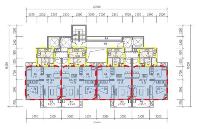
03、房型优化:结构优化
统一功能模块
统一开间模数
统一构件尺寸
减少外墙变化
▼ 统一功能模块
▼ 统一房间开间
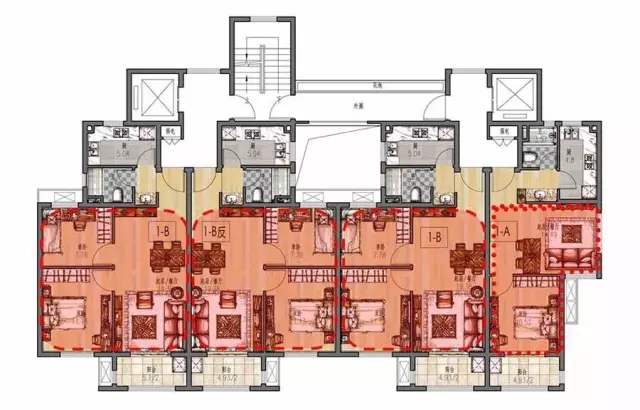
04、房型汇编:标准户型模板
设计原则
通过户型模块化设计,满足组合的多样性、灵活性和场地适用性
应用说明
■ 套型面积(只包含楼层公摊面积)控制在55/75/95的保障房项目
■ 套型面积微调时,建议面宽不变进深调整,可不影响标准构件的应用
■ 核心筒模块仅为示意,可根据单项工程调整 ,但楼梯尺寸可统一
■ 空调机板构件断面统一,位置和长度根据立面形式可调整
■ I型和III型为边套设计,套型配比更灵活
▼ 房型模块
▼ 单元组合拼接系列
研究目标:
房型标准化
推动建筑工业化
真正实现节能减排
(欢迎各大媒体转载,全面宣传推广装配式建筑!转载请注明出处)
微信公众号:xuebim
关注建筑行业BIM发展、研究建筑新技术,汇集建筑前沿信息!
← 微信扫一扫,关注我们+

BIM建筑网














