作者:曹启光
作者单位:北京建谊投资发展集团有限公司
一、项目介绍
1.基本情况
北京丰台区成寿寺B5地块定向安置房项目是全国装配式建筑科技示范项目,北京市首个装配式钢结构住宅项目的示范工程。本项目总用地面积6691.2㎡,拟建4栋9~16层装配式钢结构住宅,总建筑面积31685.49㎡,其中地上建筑面积20055.49㎡(包含住宅建筑面积18655.49㎡,配套公建面积1400.00㎡),地下建筑面积为11630.00㎡,绿地率30%,容积率3.0。本项目采用开发、设计、施工运维全生命周期管理模式。
工程采用装配化全钢结构,所有钢柱、钢梁及钢筋桁架楼承板均为工厂化生产,现场装配化安装,比传统现浇混凝土结构缩短工期50%以上。在确保施工质量的前提下,绝对建造时间仅用60天。目前已完成封顶,正处于二次结构施工阶段。
2.工程概况
工程名称:丰台区成寿寺B5地块定向安置房;
建设单位:北京建都置地房地产开发有限公司;
设计单位:北京高能筑博建筑设计有限公司;
施工单位:北京建谊建筑工程有限公司;
监理单位:北京市曙晨工程建设监理有限责任公司;
合同工期:2016.2.18—2017.6.30;
质量目标:北京市结构长城杯金杯、竣工长城杯金杯;
结构形式:装配式钢结构;
建筑耐火等级:地下一级、地上二级;
混凝土强度等级:基础筏板、地下室外墙C40P8,钢筋桁架叠合楼板C30
抗震烈度:工程设防烈度8度;抗震等级Ⅰ级
地下防水:混凝土自防水部位,基础筏板、地下室外墙及相连框架柱均为抗渗混凝土,抗渗等级P8;防水材料部位,采用高密度聚乙烯(HDPE)自粘胶膜防水卷材。
3.装配式技术应用情况
3.1 建筑专业—标准柱网及部品部件
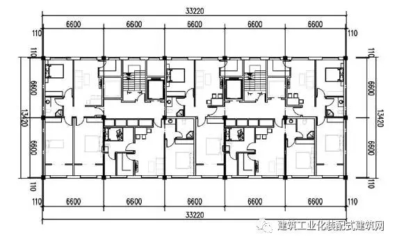
本项目本着钢结构装配化理念进行户型设计,住宅的柱网统一为6.6mx6.6m,这样设计大大提成了钢结构加工周期,工厂预制率达到100%。根据标准化的模块,再进一步进行标准化的部品设计,形成标准化的钢结构楼梯构件、预制PC外墙、预制蒸压砂加气条板内、外墙大大减少结构构件数量,为建筑规模量化生产提供基础,显著提高构配件的生产效率,有效地减少材料浪费,节约资源,节能降耗。
3.2 结构专业
装配式钢结构
采用钢框架-钢板剪力墙结构形式,主楼标准柱网6.6m*6.6m,地上采用400方管箱型柱、 地下采用450方管箱型柱,车库标准柱网8.1m*8.1m,采用450圆管柱、内灌C50自密实混凝土,地上采用H350*150焊制H型钢梁,抗侧力构件采用阻尼器和钢板剪力墙。梁偏心布置保证室内无梁无柱。
桩墙一体
本工程地下室外墙采用现浇混凝土,无肥槽,使用单侧支模架进行单侧支模。次梁通过地下室外墙中预留的连接板进行连接。外墙钢筋通过与钢柱连接板焊接连接,混凝土浇筑完成后钢柱与外墙及支护桩形成一体。
钢结构节点
楼板
预制叠合楼板
钢筋桁架楼承板
墙板
ALC板
PC外挂板
3.3 水暖专业
管线综合
装配式建筑的设计应是涵盖主体结构、水暖电专业、装饰装修集成一体的装配式设计,采用BIM三维软件将建筑、结构、水暖电、装饰等专业通过信息化技术的应用,将水暖电位与主体装配式结构、装饰装修实现集成一体化的设计,并预先解决各专业间在设计、生产、装配施工过程中的协同及碰撞问题。
二、装配式建筑与传统项目施工区别与挑战
1.装配式钢结构VS现浇钢筋混凝土结构(以柱为例)
钢管混凝土柱(一柱三层)施工流程:测量定位—地脚螺栓预埋—钢柱吊装—校核调整—地脚螺栓紧固焊接—钢梁安装—操作平台搭设—浇筑混凝土。
现浇钢筋混凝土柱施工流程:测量定位—底板起端钢筋留设—柱钢筋绑扎—模板安装—模板校核—操作平台搭设—混凝土浇筑—模板拆除。
装配式钢结构VS现浇钢筋混凝土结构
2.地下室外墙单侧支模与双侧支模对比(桩墙一体技术优势)
单侧支模:
施工流程:模板拼接→模板钻孔→吊环安装→模板吊装到位→安装固定背楞槽钢→安装固定单侧支架→安装预埋件系统→调节支架垂直度→安装加强钢管→安装上操作平台.
施工工艺:(1)外墙防水施工。(2)弹墙、柱位置线、贴海绵条。(3)涂刷脱模剂。(4)模板的吊装。(5)支撑架安装。(6)平台架的安装。(7)支撑架钢管连接。(8)模板拆除。
双侧支模:
施工流程:先吊入角模→吊入一侧模板、就位、调垂直度→穿拉杆→就位另一侧模板→穿对拉螺栓,调整垂直度→处理节点(安装模板连接器等、围挡梁位等)。
施工工艺:(1)弹墙、柱位置线、贴海绵条。(2)涂刷脱模剂。(3)两面模板的吊装。(4)安装角模。(5)穿墙螺栓随大模板孔位设置。(6)斜支腿的安装。(7)平台架的安装。(8)内墙与顶板接槎的处理。(9)防止内模整体移位的措施(10)模板拆除 (11)外侧防水施工。
材料对比:
(1)单侧支模模板的特点:模板规格标准化、模数化、板面平整,模板之间拼接简单,拼缝严密,使用灵活,轻便, 通用性、互换性好,可多次周转使用,拼装方便,可用人工拆装;工具化,与连接件和支撑件配套,连接紧固、安全可靠,拆装简便灵活。单侧支模所用的各种材料较少,节约成本。
(2)单侧支撑架的特点:支撑体系简单、稳定、可操作性强,支撑架还可以根据工程模板高度随时接高,并采用租赁方式提供,降低施工成本。双侧支模的材料繁多,现场零乱。
(3)防水材料:与混凝土反应形成皮肤式超强结合,完全防止水分渗入防水卷材和结构之间的间隙(即“窜水”)。无需使用保护板,铺装施工后即可在其上行走。简单处理即可加放浇注骨架钢筋。可耐受基层移位。可耐受大多数的回填划切功能。可在潮湿基面施工。使用寿命长。
施工整体性对比
单侧支模的施工速度快,工程结构整体性好,混凝土表面平整光洁,缩短工期,机械化程度高,大大减轻了工人劳动强度,具有良好的综合技术经济效益。材料种类少,数量少,适合整齐码放,提高现场的安全文明施工。同时它也是“以钢代木”成效卓著的墙体模板体系,具有巨大的社会效益。满足多层和高层建筑的施工要求,具有较好的经济效益和社会效益,是一种简单便捷的绿色环保产品,适合于模板租赁和建筑施工等行业的推广应用。
3.钢筋桁架楼承板与传统现浇钢筋混凝土楼板
钢筋桁架楼承板相对于普通钢筋混凝土楼板的优势:
施工便捷:在施工现场,可以将钢筋桁架楼承板直接铺设在钢梁上,然后进行简单的钢筋工程,便可浇筑混凝土。使用该模板不需要架设木模及脚手架,底部镀锌压型钢板仅做模板用,不替代受力钢筋,故不需考虑防火喷涂及防腐维护的问题。
提高工程质量:钢筋排列均匀,上下两层钢筋间距及混凝土保护层厚度能充分得到保证,为提高楼板施工质量创造了有利条件。当浇筑混凝土形成楼板后,具有现浇板整体刚度大、抗震性能好、抗冲击性能好、防水性能好等众多优点。
节省人工:由于钢筋桁架楼承板不需要传统工艺的放线、安装满堂红架管、安装U托、铺设主次龙骨、铺设模板,检查平整度,以及拆模、拆架管等工序,所以省去了大量的人工,对于缩短工期起到重要作用。
节省材料:钢筋桁架楼承板具有可以直接铺设的特点,节省了模板,架管,木方等耗材的使用,在节省材料、控制成本方面有显著优势。
三、基于BIM的虚拟施工优化及管理
目标:
简约:简单留给用户、后台综合管控、精致的标准化部品部件、住宅产品标准化、组装方式简单。
快捷:用数据进行设计,用数据进行生产、工厂化加工(不受季节影响)、现场组装、干作业、施工速度快,工程时间节省50%。
优质:双模检验,内置标准可视化过程监控,通过协同共享平台、广纳优质人才资源、部品部件资源,甄选优良部品部件,产品更优质。
价廉:资源整合,平台经济,成本降低30%,设计施工数据一体化,高效的生产效率、批量生产带来综合成本的降低。
基于BIM的虚拟施工管理:
(1)粗放式管理向精细化管理转变:过往项目管理过程中,在经济投入、成本控制、人员管理、质量监管等生产环节中没有一套合理有效的运行体制,管理中只是为了完成某一既定目标,而没有一个科学有效的过程。而工程项目精细化管理体系包含一系列管理制度和办法。BIM技术的引入,使得虚拟施工成为可实施项,在施工之前,将施工模型、劳动力模型、进度模型、质量模型、安全模型、成本模型建立完成,以指导现场施工。它使得岗位分工越来越精细化,工程质量的精细化对现代管理的必然要求,是建立在常规管理的基础上,并将常规管理引向深入的基本思想和管理模式,是一种以最大限度地减少管理所占用的资源和降低管理成本为主要目标的管理方式。
(2)前台管理向后台管控转变:以“大后台、小前端”的项目管理方式,项目成本管控、质量管理、安全管理、技术支持、虚拟施工模型指导等更多的依托于后台管理与支撑,以便于前台更加快捷、高效的执行。前、后台工作利用同一个平台,包括:微信平台、企业邮箱、建华一体机、BIMcloud等。根据各岗位工作内容相互对接与协同。达到精细化、标准化的目的。
团队管理:
后台虚拟团队——前台执行团队——产业化工人团队。
产业化领导成员——产业化项目班子——产业化工人。
建谊集团成立组以装式钢结构住宅产业化,采用BIM模型及云平台管理模式,组件一支产业化团队,打造精品 过程管理。
钢结构住宅产品的实施落地源于模型及虚拟的支撑、大数据的支撑、标准的支撑、岗位工作流的支撑以及内外部资源的整合利用。BIM技术的实施应用离不开平台的支持。
四、项目实施过程
1.钢构件制作
(一)、钢构件加工工艺流程
钢梁加工工艺流程
钢柱加工工艺流程
(二)、钢结构施工工序
原材料进场及检测—下料—组立—焊接—螺栓紧固节点补漆—测量校正—放线吊装—喷涂油漆。
2.钢结构安装
(一)、样板领路
本工程严格执行样板引路、过程精品、一次成优”原则。为搞好装配式钢结构住宅产业化工程,在丰台区丽泽桥东管世家院内首先进行钢结构住宅产业化样板楼工程。
样板楼
样板楼楼板安装
样板楼钢梁安装
(二)、构件现场安装
(三)、项目施工流水段划分
(四)、钢柱垂直度测控
计算好靶标的纵横坐标,标高,将靶标粘贴到钢柱对应位置。然后将坐标、标高数值输入天宝仪器内。激光对准靶标中心,天宝仪器自动显示钢柱左右偏差及标高误差。
(五)、钢柱现场吊装实景
(六)、现场安装过程
穿临时螺栓校正后固定,不少于2个且不少于螺栓总数的1/3
焊缝端部设置引弧板、衬垫板
焊缝质量均匀、无气泡、夹渣现象
结构构件中心位置调整后,安装高强螺栓及焊接
在钢柱安装、调整后,采用二次灌筑法,将缝隙填实
3.桩墙一体技术的实施
(一)、方案研讨
结合本工程施工图纸,项目部技术负责人牵头,组织项目部人员及产业化工人进行方案研讨。就模板配置、尺寸及细部节点多次进行技术交流,利用BIM模型从各备用方案中选取最优方案。
(二)、虚拟施工
1、模型部位:地下三层五段外墙(4-20轴/U轴),标高-11.9m/-9.25m。
2、使用BIM软件:revit、ArchiCAD。
3、成果文件:*.rvt、*.pln。
(三)、施工方案编写
包括混凝土工程施工方案及报审表模板工程施工方案等。
(四)、模型交底
根据虚拟施工绘制的模型,结合施工方案,对产业化工人进行模型交底。
同时利用模型中添加的信息,安排相对应的作业人员。针对施工过程中的难
点和重点控制项目,着重进行技术、安全交底。
(五)、现场施工检验
现场严格按照“三检”及交接检制度,对钢筋、模板、钢结构预埋件、机电预留
预埋等进行分步验收和交接检验,整理检验批及原始记录。在施工过程中进行过程检验,严格控制工程质量。对于每一个细节高标准、严要求,打造过程精品。
钢筋现场验收
模板垂直度检验
墙柱尺寸及垂直度检验
4.施工资料管理
(一)、编制施工组织设计和各项施工方案
(二)、方案交底和技术交底
(三)、试验资料
(四)、质量管理资料
严格执行样板领路及“三检”制度。每一道工序,施工前先做样板,自检必须及时真实,互检必须严格,交接检如发现质量问题坚决不进行下一道工序。每道检查验收都必须有记录有负责人、责任人签字。班组检查合格后及时填写模板工程自检评定表,填写报验单。根据报验单质检部门及时组织相关部门进行验收。
五、钢结构装配式项目施工重难点
1.钢结构图纸深化
解决措施:
采用ARCHICAD软件整体建模,提取分区域模型和材料采购清单。在此基础上,典型复杂节点设计先由专门的结构设计部进行设计及有限元计算分析,然后由CAD深化设计部门结合现场安装及制作运输的分段、构件组装、焊接工艺和以往的设计经验,进行零件图设计。
2.测量控制、焊接和安全防护
难点:
钢梁主体结构标高各异,主体结构大跨度,测量控制具有一定的难度;焊接量大,焊接质量要求高;高空作业多,安全防护成为本工程的重点之一。
解决措施:
配备高精度测量仪器Trimble对控制点进行三维坐标控制;对大跨度桁架进行变形计算,采取预调、预偏措施。采用二氧化碳半自动气体保护焊技术,严格按焊接工艺评定做好焊接试验;严格按焊接作业方案和焊接工艺指导书的操作程序进行焊接施工管理。
3.钢结构加工及安装误差的消除
难点:
如何消除构件在吊装过程中因自重产生的变形、因温差造成的缩胀变形、因焊
接产生收缩变形等造成的误差累积,是钢结构施工测量需重点考虑的问题。
解决措施:
安装:对于测量范围大,我司选用更为精密的仪器对标高及轴网进行测放,对于累积误差我司将采用前期加工预留,后期安装时纠偏的方法进行修正,并加强焊接控制。
工厂超声检测
焊接工序控制
现场超声检测
解决措施:
加工:在钢结构加工过程中,由监理及施工单位派专人驻厂。
本工程在正负零标高处涉及到钢柱由450*450变为400*400,需准确定位,并全进行无损检测,保证变径处的质量。
注:本文根据公众号“装配式建筑大讲堂”内容整理,为该公众号装配式建筑大讲堂第六期,也是第一期装配式建筑大讲堂线上直播活动的最后一节。本期有幸邀请到了北京建谊集团首个钢结构装配式住宅项目的项目经理曹启光先生为大家详尽解读了北京市首座钢结构装配式建筑施工管理分享,如想了解全部课件信息,请自行下载学习。装配式住宅
课件下载方式:关注装配式建筑大讲堂微信公众号,回复shigong07即可获取课件下载链接,公众号二维码:
(欢迎各大媒体转载,全面宣传推广装配式建筑!转载请注明出处)

BIM建筑网






















































