建造在盆唐东部的Naver Imae幼儿园总共有在校学生300人。学校利用一片横跨场地十多米的斜坡建造了与学院同规模的花园,为了达到法规中要求的20%的建筑绿地率,事务所打算采用新型的幼儿园设计方案。
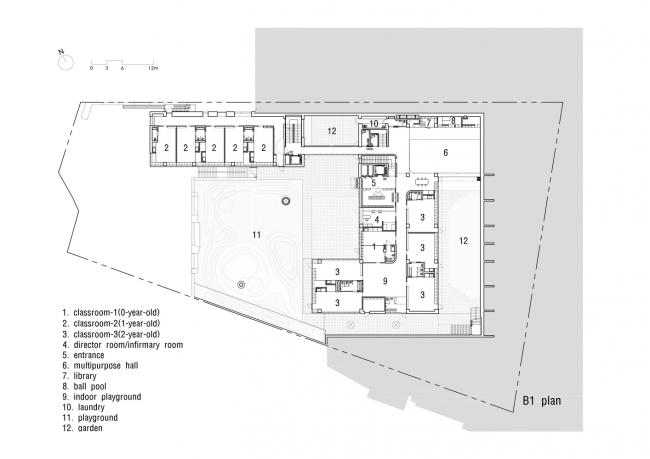
建筑根据自然渐变的场地地形被分成三层:最底层为停车场和后勤服务设施;上面两层为幼儿园功能用房。学校通过对所有停车位和公交车转弯的控制来为孩子们提供安全的生活环境。在规划期间以有效的方式利用斜坡场地可以使地下空间获得与一层内同等条件的自然光照射量。除了顶层之外,所有楼层都与地面直接联系,这意味着几乎每个幼儿园教室都有前院。300名学生被分散在三个不同的建筑单元内,彼此通过地下的台基相连。
这三座建筑从东到西排列成一排,将游乐场置于中间,让温暖阳光的照入园内。教室之间使用模块化的组件形成休息室和游戏室。随着建筑物的高度随着斜坡逐渐升高,幼儿园自然而然地与周围山景相融合。素色水泥砖和清水混凝土饰面共同成为周围自然环境的背景,与周围的绿色相一致。
图纸
一层平面图
二层平面图
三层平面图
地下一层平面图
地下二层平面图
立面图01
立面图02
剖面图01
项目信息
建筑设计:D•LIM Architects
项目区位:韩国,京畿道
团队成员:Yeonghwan Lim, Sunhyun Kim
设计团队:Park Raehoon, Park Jisun, Shin Aeri, Kim Jungtae, Park Jinsun
建筑面积:5356平方米
项目时间:2017年
项目摄影:Joonhwan Yoon
制造商:LG Z:IN, Durastack
景观设计:STUDIO L
结构工程:Eun Structural engineering
机械工程:HITEC Engineering Co.,Ltd
承包商:HALLA CORPORATION
业主方:NAVER

BIM建筑网



































