这座由 Patterson 事务所设计的夏季住宅坐落在新西兰激流岛陡峭的海岸山坡上。这里以优良的葡萄园而知名,比如大名鼎鼎的Cable Bay,ManOWar 和 Passage Rock 。
这里的葡萄园受到激流岛温带海洋性气候的影响,并具有一些罕见的横跨整个岛屿像静脉一样的黄铁矿石地质带。这些条件让这里的葡萄主要是以赤霞珠、墨尔乐和马尔贝克为主,并具有独特的激流岛风味。而该住宅使用了当地特有的黄铁矿石作为建筑材料也具有特殊的意义。
黄铁矿是一种高密度、色彩丰富的硬岩。住宅的岩石体块就像一座桥,两边都是开放的,既面向海滩,又能够照到午后的阳光。下面的主起居区就稳妥地设置在东面朝向海洋的宽敞的泳池露台,和西面像洞穴一样的庭院之间的区域里。业主经常将这个洞穴空间作为户外电影院使用。
卧室套房设置在上面,比例得当,精致浪漫。从百叶窗看出去是海滩上清澈的海水和成排的树林。
该住宅设计成具有可持续性的“绿色”建筑,采用了创新的空气加热系统为整个住宅提供高效的温控系统,另外还设置了现场废物处理站和雨水回收以及储存设施。
项目图纸
总平面图
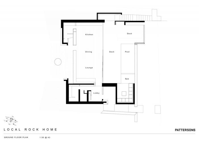
入口层平面图
一层平面图
二层平面图
三层平面图
东立面图
南立面图
西立面图
北立面图
项目信息
建筑师:Pattersons
地址:新西兰,奥克兰,激流岛
设计总监:Andrew Patterson
项目经理:Peter Scott
建筑面积:395.0 平方米
项目年份:2010
摄影师:Simon Devitt
项目团队:Davor Popadich, Shane Taylor, Andrew Patterson
室内设计:Jenny Marshall
景观设计:Suzanne Turley
建筑商:Davidson Construction Ltd
工程师:Holmes Consulting Ltd

BIM建筑网




















