“莲华住宅” 是一座旧房改造设计,位于福冈县前朝仓镇中心,由一座有着 70 年历史的碾米厂改造而成。它经过翻新以适应现代生活方式,旨在展现建筑翻新的魅力与可能性。
一座长期以来深受当地居民喜爱和支持的碾米厂,被改造成了一座现代住宅,在保留其历史和魅力的同时,充分利用了建筑本身的特色。
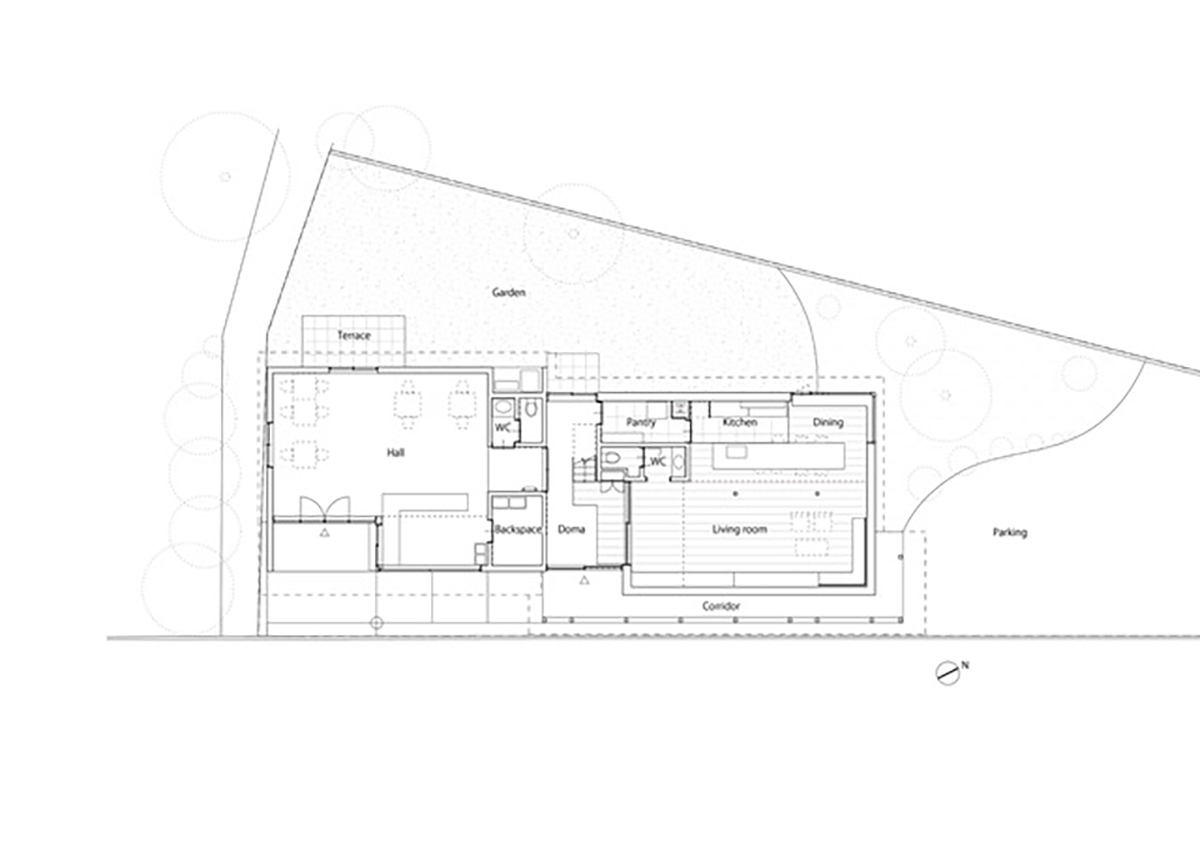
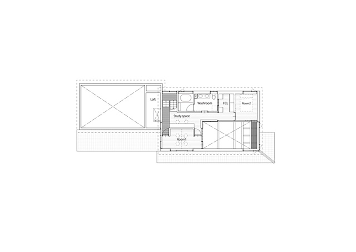
这座建筑原本是一家碾米厂,由一栋用于碾米的单层建筑和一栋主要用作仓库的双层建筑组成。由于作为独立住宅其规模较大,双层部分被改造成了住宅,而单层部分则被设计为零售空间,向社区开放。
目前,日本各地正在建造许多样板房,但其中许多在大约五年后就会被重建,因为其设计不再新颖且显得陈旧。针对这种情况,我们力求打造一座可持续发展的样板房,它能受到当地社区的喜爱,并且与 “额外加分” 的样板房概念相互呼应。
5″ />
微信公众号:xuebim
关注建筑行业BIM发展、研究建筑新技术,汇集建筑前沿信息!
← 微信扫一扫,关注我们+

BIM建筑网
























