海口市作为中国最南端的省会城市,被大海包裹着,就像秋天温暖的被窝,可以闻到淡淡的南瓜香。设计师的设计思路是想在不使用经典海洋蓝色的情况下,创造一个与海口地理环境紧密联系的影院。最终设计师决定选用砖块作为设计主题,因为砖块是由沙子制成的,且沙子也是海洋环境生态的重要组成部分,所以其具有可持续性。
进入这个空间,你完全可以在脑海中自行构建一个有趣的故事。砖块因其本身特性可以创造出美丽且耐久的空间,砖块被精准地搭放成波浪的样子,波浪一层接一层,从任何角度都能看得一清二楚。该影城项目占据了一栋楼,有不少窗口,所以白天的时候,阳光可以照进空间内,自然光线形成的光影效果打在砖红色的波浪上,丰富了视觉效果和空间质感。照明灯具和通风口被巧妙安置于波浪间隐秘的角落,抬头寻找,才能找到它们。其实每块砖的尺寸是一样的,但是通过调整数量便搭成了弧度大小不一的波浪形。再往影城大堂深处走,会发现除了天花的波浪造型,地面也是翻涌的波浪,并进一步形成可供客人休息等候的桌椅。
砖块堆砌成墙,精心排列,就像图书馆里被整齐摆放的书籍。虽然近看砖块的表面粗糙颗粒度大,但是当整个空间都被涂上托帕石橙黄的色调后,气氛却呈现出柔和的感觉。无论是光线较暗的时候还是有阳光、灯光的时候,大堂的设计精髓都可以被人捕捉到。地面的小波浪在侧面涂成了灰色,与整体空间颜色稍微做区分,让人很远之外都能辨认出小波浪的造型。灯光在波浪上回荡,这一切不仅仅是为了美观,也是为了防止客人被绊倒。如果你环顾四周,就能看到波浪形的柜台,所有的曲线都向不同的方向倾斜。
影城内专门设有儿童活动区,供与家长一起来看电影的小朋友们休闲玩耍消磨时光。圆柱管道蜿蜒穿梭于天花,色块由柔软绒布制成并模仿砖块整齐排布。这些颜色与空间氛围相得益彰,给人温暖幸福之感。环绕着天花圆柱灯光环照亮天花的层次感。设计师手绘的很多可爱公仔被编织成手工地毯,它们做着不同的动作如漂浮、跳舞、跳跃……整个儿童活动区被柔和的色彩和活泼可爱的图案包围着,设计师考虑到电影院也是孩童经常光顾的地方,所以特意为空间增添趣味和活力元素。
该影城共有 13 个影厅, 且影城內还拥有全球最大的 LED 荧幕。影厅的空间设计与影城其他空间保持一致。当你走入其中一个影厅,便被墙身和地板上飞舞的色彩所吸引,就像一支画笔在空间内随意舞动挥洒。空间内的颜色和质地也可以从其他空间中感知到。立体的织物剪裁利落,充满艺术感。设计师用大胆前卫的色彩搭配来创作出层次感丰富的波涛造型。另一个影厅将模仿虎皮百合花瓣和粗糙砖块的元素进行无限重复,形成很有冲击力的空间纵深感。灯带至上而下的照明就像书籍页边线,平整而绵延。墙身的装饰一直延申至影厅天花顶部,曲线的轮廓留有足够的空间,高度也保证了空间的安全,不至于伤害进入空间的人。从美感的角度来看,空间的造型与温暖的毯子一样环绕着岛屿的南海的微妙相似之处,波潮相拥时的温暖,就像欢愉的情绪一般。
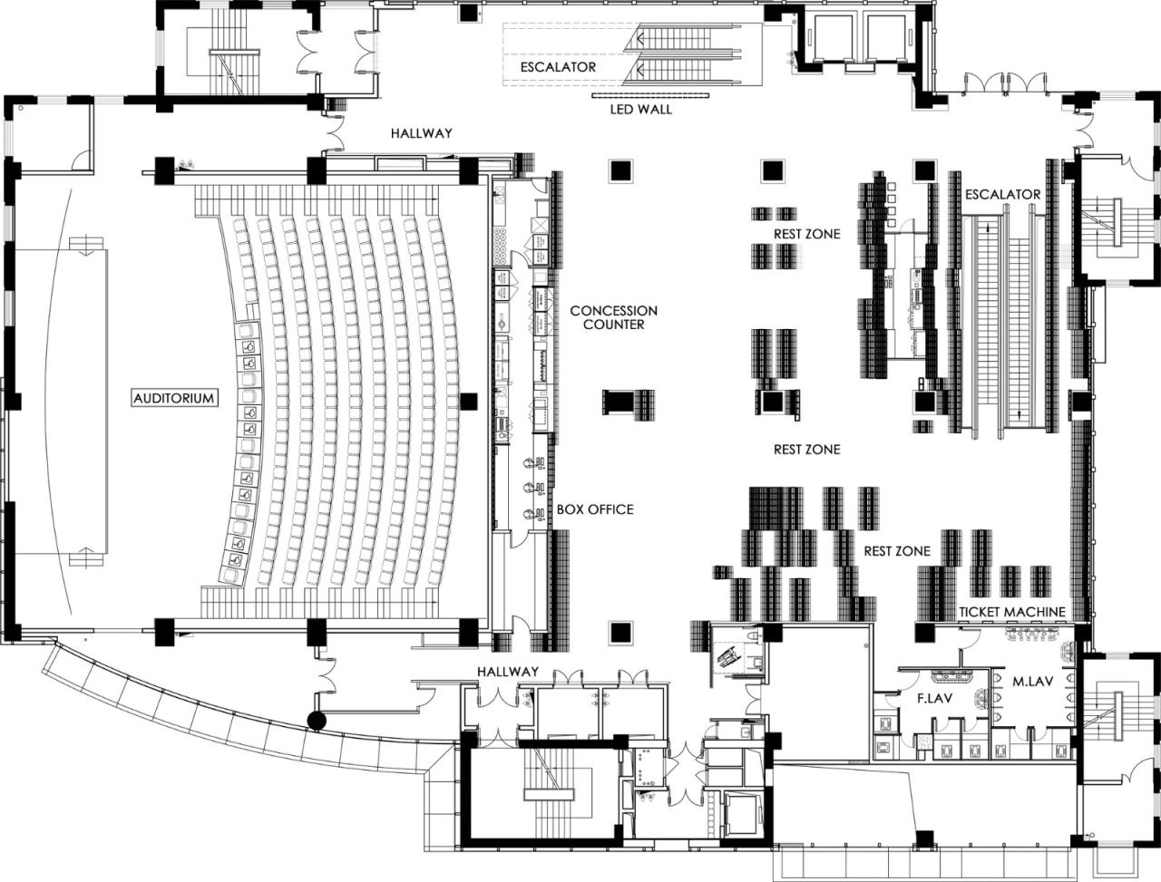
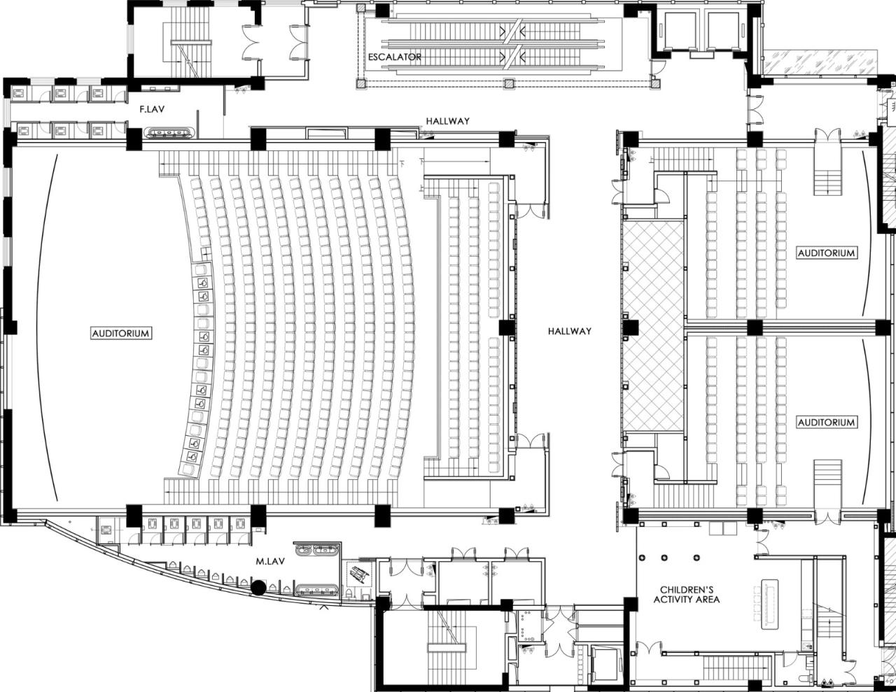
项目图纸
△平面图
△平面图
△平面图
项目信息
建筑师:壹正企划
面积:6006m²
项目年份:2024
摄影师:雷坛坛
厂家: 普迅饰柜有限公司,湖北曾楚建设有限公司,紹興美博智能影音有限公司
主创建筑师:罗灵杰,龙慧祺
设计团队:壹正企划
委托方:海南新天地银兴电影有限责任公司
地点:海口

BIM建筑网















