△鸟瞰图
△稻田透视
01 由来
业主张先生毕业于同济大学,热爱建筑,他一直有个愿望—-闲适的乡村能更宜居、更美丽。张先生的老宅在上海金山,属于边缘地带,农村建设千篇一律,相比一条马路之隔的浙江农村,建设明显滞后。所以他想做个特别的现代建筑,通过伫立的建筑告诉村民们房子可以有不同的样子,也为本村风貌的改变出一点点力。
△项目视频
在设计之初,张先生就给他翻建的宅子起好了名字“濬蒙”,濬通浚,是疏通疏导的意思,蒙就是启蒙,名字来源于张先生的太爷爷,早年在乡里办过一个学堂就叫“濬蒙”,学堂已经不复存在,名字还留在县志里,所以他用这个名字来纪念他的太爷爷。
△南立面
△东南透视
△北立面白天景
△东北立面
02 空间布局
设计方坚信建筑、室内、景观密不可分,所以在设计之初充分考虑三者的关系,结合场地空间宽大的属性,按密斯所提出的十字构图布局,在不同空间最大限度引入不同方向的景观,客餐厅通过大面积的落地玻璃窗来模糊边界,以生机盎然的稻田乡野景观勾勒出家的氛围,以极少的室内装饰消除杂乱信息的干扰,回归空间本质,达到最真实最原始的空间状态,当主人回到第二居所时,纯粹静谧的空间可以调动人的感知,去感受光影、时间和四季的变化。
△鸟瞰图
△东南立面
△入口
△客厅白天景
△客厅
△西餐厅
03 形体与材料
建筑形体在结合当地法规限制下,以简洁大气厚重内敛的现代主义风格呈现,避免过度装饰与刻意的设计感,采用山东白麻与意大利火山岩二种石材干挂对比的形式,保持纯粹的颜色与体块去回应乡野环境。
△东面草坪
△立面局部
△立面细节
△东立面
△东南立面
室内运用石材、木头、混凝土、抹灰、白色乳胶漆、亚麻和皮革等,它们都是可持续的,并且会随着时间的变化而更有质感。
作为第二居所,设计不追求奢华,追求真实和自然,平静和简约且温馨柔和的空间体验。
设计团队回收了部分原房子拆下来的大门,板凳等物件,重新改造后变成艺术品挂在墙上,作为老宅的部分记忆。
△客厅
△西餐厅
△中餐厅
△西餐厅
△中餐厅
△草坪夜景透视
04 光影
光是空间中最好的装饰,在楼梯间、卫生间与北侧的书房顶部设计了采光天窗,客厅挑空空间设计了西侧高窗。光与空间互相作用,在建筑空间中的光随着时间而变化方向与形状,阳光照射下的空间不仅提供了亮度,光影还会影响体验者的情绪以及对时间的感知。
△采光天窗
△楼梯间
△书房
05 结尾
房子盖好后,设计师问张先生:”你改变家乡的愿望实现了吗?““那肯定没有,还需要努力,来参观的人很多,邻居整体接受度没原本想的高,但坚信美的东西最终是人们喜欢的,交给时间吧。”
△北立面
△北立面夜景局部
△立面局部
△立面局部
△鸟瞰图
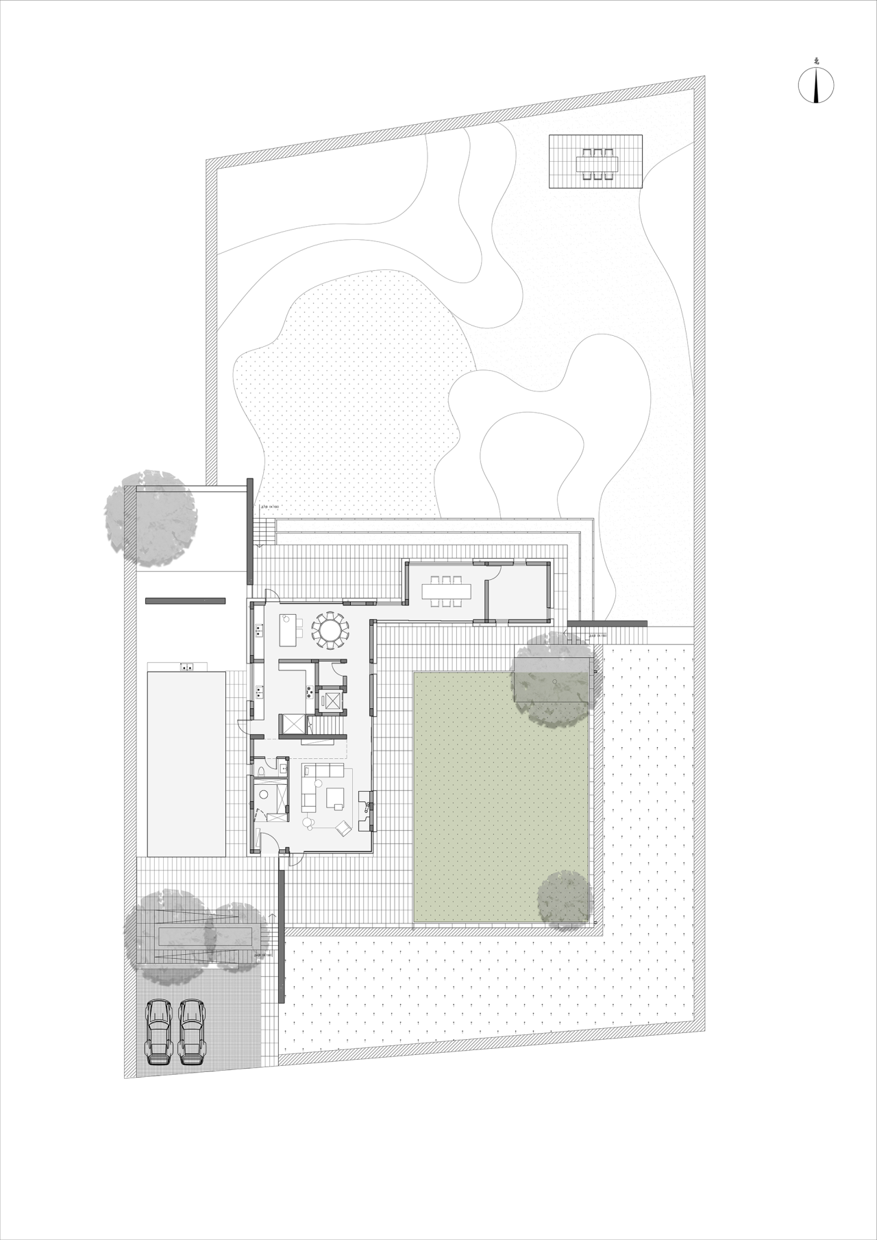
项目图纸
△1F平面彩图 © 陆启水建筑师事务所
△2F平面彩图 © 陆启水建筑师事务所
△3F平面彩图 © 陆启水建筑师事务所
△剖切彩图 © 陆启水建筑师事务所
△模型 © 陆启水建筑师事务所
项目信息
项目名称:上海濬蒙
设计时间:2022年10月
完成时间:2024年6月
设计公司:陆启水建筑师事务所
公司网站:lqs-a.com
设计内容:建筑设计、室内设计
项目功能:自建私宅
建筑面积:450平方米
主创建筑师:陆启水 马卿
设计团队:孙义群 陆启跃 章仕杰 李国斌 谢树藤 张晨
建筑摄影:知筑影像 Arch Nango

BIM建筑网










































