这是一个旧建筑的改造,改造后作为一处以度假为目的建筑空间。原有的建筑是一个混凝土的框架结构,坐落在北方海边的一片密林深处,周围的自然景观独立且安静,几百米的密林之外便是宽阔的大海。
原有建筑沿着刺槐密林边缘线性分布,主体被拉长至百米,且建筑的南侧和东侧均伴有优质水景。但原有建筑的室内布局为单侧走廊,存在大量冗长的过道空间。立面处理也十分封闭局促,建筑周边低缓延绵的微坡景观被托斯卡纳风情的细碎竖条开窗切分得支离破碎。得天独厚的原生景观被毫不吝惜地拒之门外。
△原始建筑样貌
改造的目的是打破孤立且封闭的建筑立面,使得建筑的内部空间与外部优美的自然环境建立密切的联系,同时重新组织内部的使用关系,创造一个全新的度假生活方式,并且尽可能的将自然引入室内。
为了确保空间的灵活性,原始的柱网被视为有秩序的网格,在原始的网格中重新定义空间,部分结构柱或被刻意消隐在隔间墙内,或被刻意暴露,使得新空间具有足够的灵活性和新秩序。
△爆炸图 © TAOA陶磊建筑
△局部 © TAOA陶磊建筑
△局部2 © TAOA陶磊建筑
为了使建筑能更充分的和周围建立联系,改建采用三种策略。一是利用混凝土框架结构的特点,将一层原有的填充外墙拆除,将内部吊顶高度调整为统一的标高,并向四周延伸出挑为外部的雨棚,建立了一条横贯整个建筑的水平线。
△立面图 © TAOA陶磊建筑
这条抽象的水平线之上的石头外墙塑造了坚固且沉重的体量,更反衬下部的空与透。透过长长的挑檐看出去,远处松散的自然建立了一定的秩序,使其抽象化,形成一线浓缩的景观带,将周围环绕的野性景观收集到同一组合之中。
△环境 © TAOA陶磊建筑
二来为了更好的与自然的融合,在原始建筑中剔除了局部使用面积,使其成为内院,将自然由外部引向室内。第三种策略是给新建筑设计了一部分可以使原建筑松散的形态联系为一个整体的院墙,将外部的自然包裹进建筑的内部,建筑的边界在新改造的空间中是刻意被模糊的。
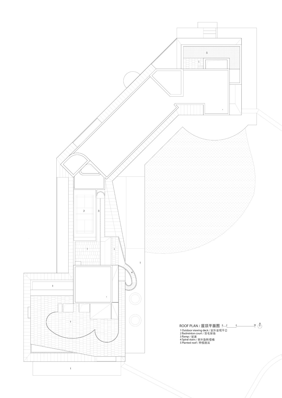
建筑的上部顺应原始建筑体型特性,分为两个独立的部分,一部分是公共的客房区,另一部分作为相对私密的私人居所,中间布置了一个露天羽毛球场。建筑的屋顶在这样的环境中是可贵的,它提供了多样的景观视角和空间体验。
在建筑的中段设计了一个醒目的室外楼梯和坡道,这不仅是消防疏散的需要。更重要的是将二层以上的空间和地面建立了一个直观的联系,可以在上下的日常交通中移步换景,游走于自然之中。
△剖面图 © TAOA陶磊建筑
建筑外墙被设计成米黄色石材,作为北方,米黄色的石头更容易让人在寒冷的冬季联想到一丝暖意,这样的选择同时也是业主的美好期待,这也正反映了北方人和这片土地的共同性格,坚实的外墙,厚重的体量。
设计团队在设计中结合原有轮廓将其转变为更具有雕塑般的形体,在这片充满野性的密林中,石头的建筑格外安静且有力量。
设计过程,即是理想化的愿景与现实之间的对峙过程。这种过程中的抗争使设计团队避免了一种简单的内在决定论或是简单的外在形式,希望通过自然的介入,使原有的建筑摆脱过去贫瘠的功能主义。
一个旧建筑的改造也是对一个局部旧世界的改造,内部的结构保留与重新组织,使其更有内在的逻辑。更多逻辑维度的叠加,形成了建筑的丰富性以及鲜明的个性,希望能带来全新的建筑体验,彻底改变原有建筑封闭且刻板的印象,向自然开放的同时,仍可以保有北方建筑的厚重与力量,与北方的地域、性格相一致,最后再将其融于自然,归于自然,成为自然。
项目图纸
△总平面图 © TAOA陶磊建筑
△总平面图 © TAOA陶磊建筑
△二层平面图 © TAOA陶磊建筑
△三层平面图 © TAOA陶磊建筑
△四层平面图 © TAOA陶磊建筑
△屋顶平面图 © TAOA陶磊建筑
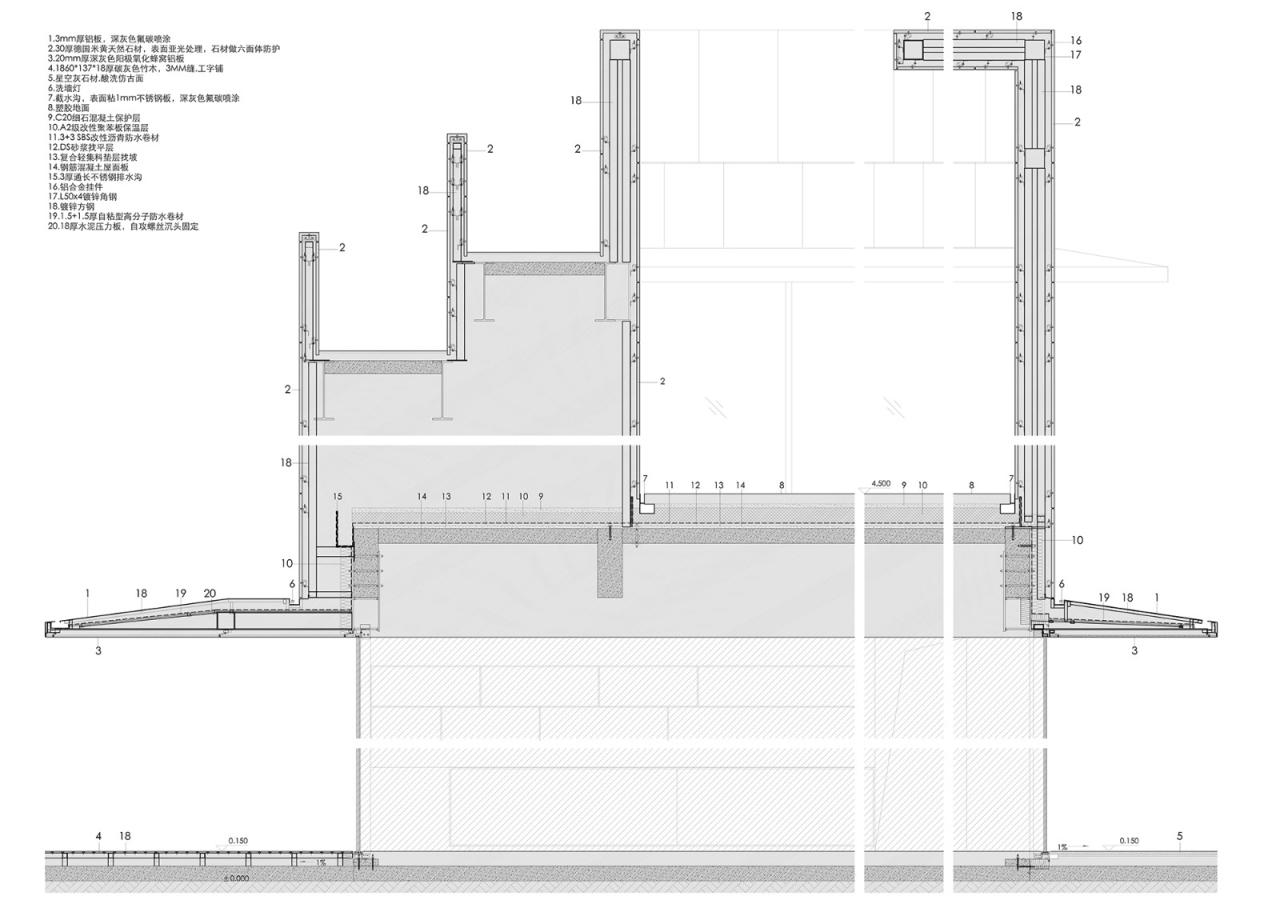
△墙身 © TAOA陶磊建筑
△陶瓷墙面 © TAOA陶磊建筑
项目信息
项目名称:如是海·尚空间
项目类型:度假康养空间
项目地点:秦皇岛如是海
设计单位:TAOA陶磊建筑
主创建筑师:陶磊
设计团队完整名单:陶磊、陈真、孟祥瑞、陶冶、崔翔、张梦莹、何晓甜、高文卓、刘红(实习)
项目业主:宏兴集团
完工时间:2023.9
建筑面积:4050㎡
甲方团队:宏兴文旅
施工图设计:TAOA陶磊建筑
室内设计:TAOA陶磊建筑、CCD
景观设计:TAOA陶磊建筑
照明顾问:Lucent空间艺术中心(深圳) 赵宁
项目摄影:陶磊
材料品牌:温莎米黄石材、大庄户外竹地板、能亮手工砖

BIM建筑网



















































