新北市艺术博物馆坐落于莺歌河与大汉溪交汇处。此地地势平缓,北面为龟仑山,南面则可眺望大汉溪与雪山山脉。设计灵感源自该地区丰富的历史与文化,设计团队在该项目中融入了砖砌建筑的古朴韵味以及摇曳生姿的芦苇等元素,打造出了一个现代且富有前瞻性的建筑形态。
设计团队巧妙地将自然与人工元素融为一体。其独特的外观由一系列高低错落、长短不一的喷砂铝管与垂直分割的三色铝板交错排列而成。从远处看,这线性的屏幕宛如风中摇曳的芦苇,模糊而美丽,它巧妙地在外墙上反射出不断变化的自然环景观,以其独特的建筑外观吸引着人们,使人们能够体验大自然瞬息万变的美景。
该项目的地面层呈现出艺术街道与雕塑露台的网络布局,仿佛一个巨大的“村落”。这座新博物馆遵循“向所有人开放”的博物馆理念。游客可以自由漫步于户外露台,这里设有咖啡馆、工作室和餐厅,空间布局与当地的老街如出一辙。来这这儿的人们还可以参与各种艺术活动,驻足欣赏户外装置艺术,或是沿着砖铺小径登上山顶,俯瞰美景。
“村落”之上,钢结构美术馆凌空而建,其刚硬的矩形体量隐身于由无数高低不一的垂直管组成的立面之后,这些垂直管仿佛摇曳的芦苇丛。大跨度结构系统确保了展览空间的灵活性。一个巨大的楼梯引领游客通往二楼的高架大厅,游客由此可进入四种类型的展示空间:一般展厅、大型展厅、国际展厅和专题展览区。屋顶上设有花园餐厅,用餐的客人可在此欣赏大汉溪的壮丽景色。该项目的另一设计亮点是设置了一条通往运营管理中心和藏品库的独立通道,这条通道大大加快了日常管控与安保团队的执行效率。
开放的艺术村落采用原始的混凝土材质,展现了由大汉溪侵蚀形成的地理特征。建筑的混凝土墙面上印有斜向排列的雪松木板纹理,与顶部和侧面的粗糙凿面形成鲜明对比。粗旷的颗粒状混凝土墙与砖铺路面创造出蜿蜒而富有动感的空间布局,营造出一个与自然交织的艺术空间。
场地入口处的景观桥采用耐候钢建造,随着时间的推移会呈现出独特的色彩和纹理。在这片自然环境中,它与美术馆的外观相得益彰,作为起点引导着游客深入探索博物馆。
项目图纸
△一层平面图
△屋顶示意图
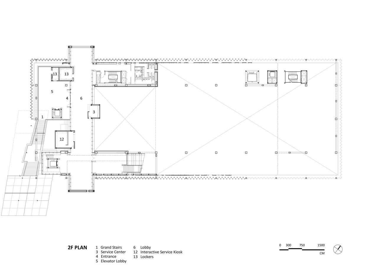
△二层平面图
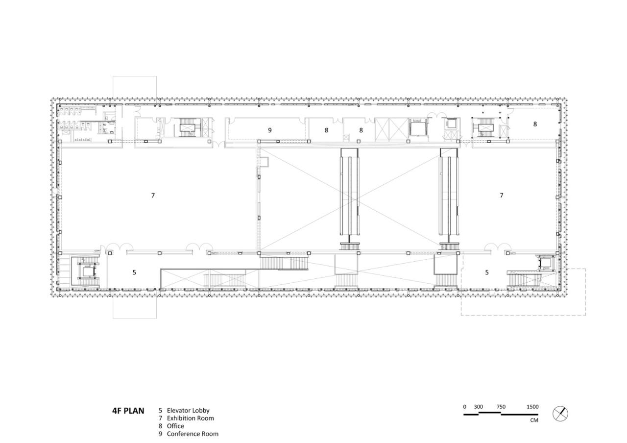
△四层平面图
△六层平面图
△剖面图
△剖面图
△立面图
△墙身结构大样图
△墙身结构大样图
项目信息
建筑事务所:大元建筑工场
面积:32641m²
项目年份:2023 年
摄影师:Shephotoerd Co., Iwan Baan, Shawn Liu Studio
主持建筑师:姚仁喜
委托方:Cultural Affairs Department, New Taipei City Government
巡检建筑师:Glen Lu
设计团队:Kuo-Chien Shen, Chien-Yi Wu, Winnie Wang, Meng-Fan Yang, Shwo-Huey Yeh, Ming-Hung She, William Ho, Ke-Huan Wen, Eric Jap, Hui-Chi Chen, Po-Yen Tai, Young Kang, Yen-Ling Hsu, Wei-Hsuan Lin, Cindy Huang
施工检查小组:Jun-Ren Chou, Tien-Sheng Tsai, Sky Lin, Jun-Shun Wang, Willy Yu, Tien-Yu Lo, Bill Chen, Ming-Nan Lee
声学顾问:Xu-Acoustique, Shen Milsom & Wilke
立面设计:马可卢设计技术有限公司
景观施工:禾拓规划设计顾问有限公司
承包商:Joyear Group Construction Co., Ltd.
舞台设计:Creative Solution Integration Ltd.
照明顾问:Chroma33 Architectural Lighting Design Inc.
景观设计:SWA 景观设计公司
地点: 台湾新北

BIM建筑网



























