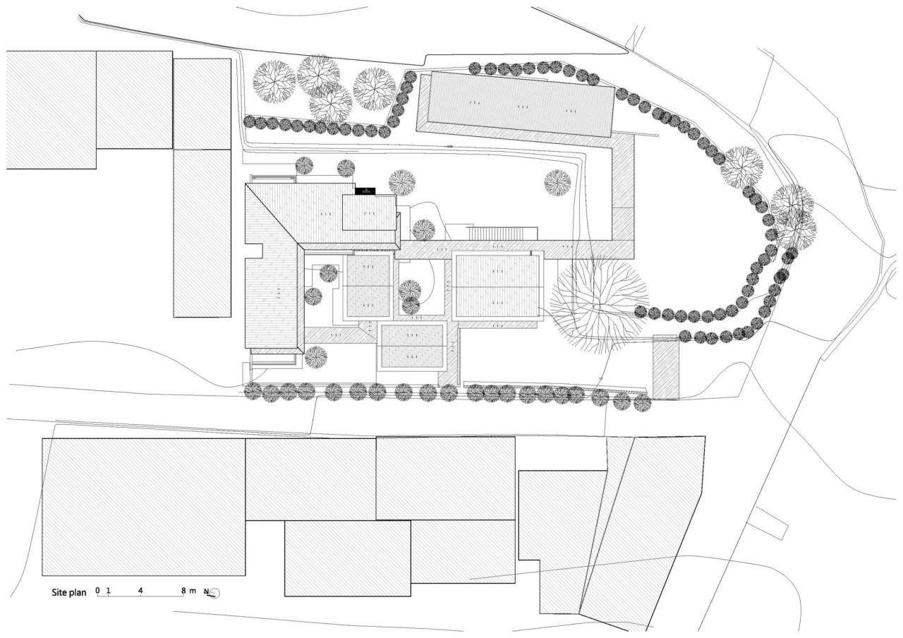
在山脚下,建筑师为一个家庭设计了一组住宅,类似于一个定居点。村庄的地形从西向东缓缓上升,场地位于较高的东侧,可俯瞰整个社区,四周环绕着山景。
设计团队利用分散的建筑体量来回应由地形塑造的场地地块,创造出多层次、独特的户外庭院空间,这些空间与当地地形、现有植被和周围景观相协调。
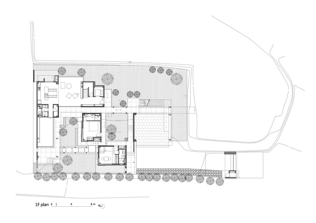
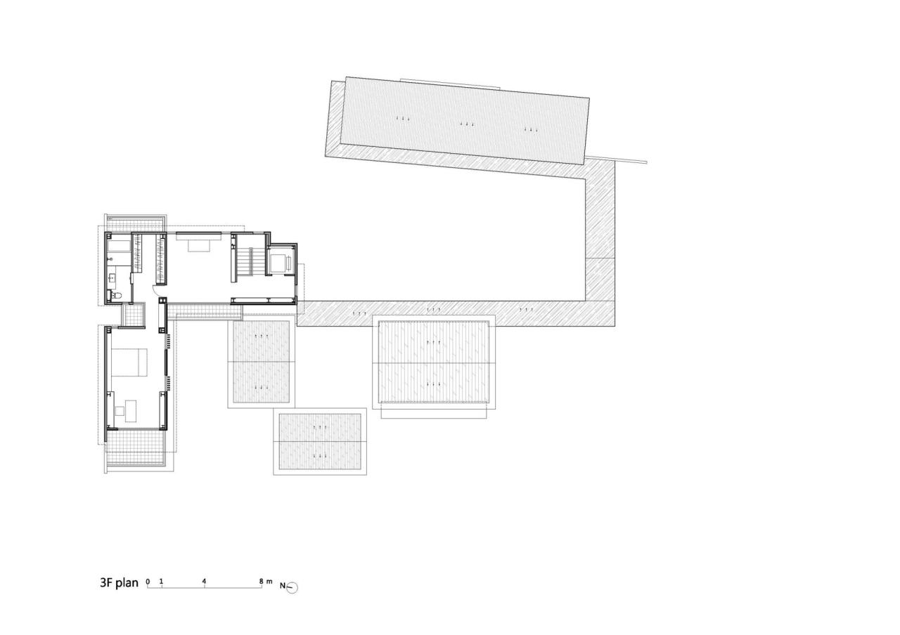
这些建筑主要采用钢结构,搭配多层外墙和屋顶系统,提供了出色的隔热效果。此外,设计团队还融入了错落的屋檐和遮阳篷,以适应当地多雨和晴朗的气候。
连接建筑的走廊将室内与室外区分开来,同时茂密的庭院穿插于建筑之间,让光线和微风穿梭于院落之中。在这个家中,家庭成员可以共同生活,同时也拥有自己的私人空间。虽然住宅规模较大,但它与村庄和山景完美融合,与它们并肩而居。
项目图纸
△总平面图
△一层平面图
△二层平面图
△三层平面图
△立面图
△立面图
△剖面图
△剖面图
△剖面图
△剖面图
项目信息
建筑师:Matthew Lloyd Architects
面积:776m²
项目年份:2023
摄影师:Yu-Chen Chao
主创建筑师:Chun Yen Chen
设计团队:Jui Ti Chen
地点:南投市
微信公众号:xuebim
关注建筑行业BIM发展、研究建筑新技术,汇集建筑前沿信息!
← 微信扫一扫,关注我们+

BIM建筑网



























